Maison neuve, 117 m² - Châteaubourg (35220)

352 000 €
Châteaubourg (35220)

Proposée par MAISONS DE L'AVENIR – 4 pièces - 3 chambres - terrain 331 m²

MAISONS DE L'AVENIR
MAISONS DE L'AVENIR
(96 avis)
  • Demande d'information
MAISON À CONSTRUIRE : ceci est une annonce d'une maison neuve à construire.
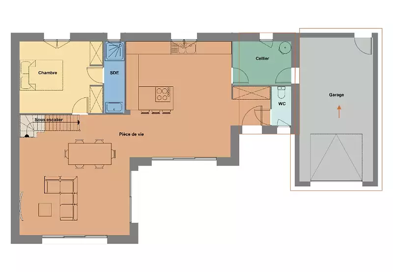
Châteaubourg : maison T4 (117 m²) à vendre
Idéalement située - À découvrir à Châteaubourg (35220) : maison neuve 4 pièces à vendre, 2 niveaux, 117 m² et 331 m² de terrain. Son intérieur inclut trois chambres, une cuisine et deux salles de bains.
À dix minutes : gare (Châteaubourg), établissements scolaires, tennis, commerces, boulangeries, supermarchés, boucherie-charcuterie et épicerie. Nationale N157 à 2 km. Rennes à 21 km.
Cette maison de 4 pièces est proposée à l'achat pour 352 000 €.
Prenez contact avec Dimitri MESAS (tél : 02-99-83-07-20) pour obtenir de plus amples informations sur la maison, sur les démarches à suivre ou sur les modalités de vente. Maisons de l'Avenir Pacé vous accompagne à toutes les étapes de votre projet et dans tous vos projets immobiliers.
Référence : DM2407507_3
Terrain proposé par un partenaire foncier selon disponibilités et autorisation de publicité au prix de 91 114 €. Hors droit d'enregistrement et frais de notaire. Terrain + Maison proposés au prix de 260 886 € (Hors branchements et raccordements, papiers peints, peintures, revêtement de sol dans les chambres. Tarif modifiable sans préavis). Etiquette énergie : A. Différents modèles disponibles pour ce terrain. Assurances et garanties du constructeur (RC professionnelle, décennale, dommage ouvrage, garantie de remboursement de l'acompte, livraison à prix et délai convenu) : https://www.maisonsdelavenir.com/mentions-legales/.

Les informations sur les risques auxquels ce bien est exposé sont disponibles sur le site Géorisques : www.georisques.gouv.fr


Prix
  • Prix total : 352 000 €
  • Prix du modèle de maison : 260 886 €
  • Prix du terrain : 91 114 €

Terrain
  • Surface : 331 m²

Maison
  • Surface : 117 m²
  • Pièces : 4
  • Chambres : 3
  • Garage : 1

  • Être rappelé par un conseiller
  • Demander plus d’infos
  • Demande d'information
Châteaubourg (35220)

Programmes à proximité

VILLA D'ANNELISE
VILLA D'ANNELISE
Châteaubourg (35220)

Appartements de 3 à 4 pièces
Livraison 1er trimestre 2026

LE GARRY
LE GARRY
Châteaubourg (35220)

Appartements de 2 à 5 pièces
Livraison 2ème trimestre 2027

LE CLOS DE LA METAIRIE
LE CLOS DE LA METAIRIE
Brécé (35530)

Appartements de 2 à 4 pièces
Livraison 4ème trimestre 2027

LE DOMAINE DE LA CLOSERIE
LE DOMAINE DE LA CLOSERIE
Brécé (35530)

Appartements de 3 pièces
Livraison 2ème trimestre 2027

CASSIOPEE
CASSIOPEE
Châteaugiron (35410)

Appartements de 3 à 4 pièces
Livraison 2ème trimestre 2026

VIVALDI
VIVALDI
Acigné (35690)

Appartements de 2 à 3 pièces
Livraison 2ème trimestre 2028

Contacter MAISONS DE L'AVENIR pour recevoir plus d'informations

Remplissez le formulaire ci-dessous, vos informations sont transmises directement au constructeur qui vous contactera par email ou par téléphone afin de traiter votre demande. En savoir plus.

Voir tous nos programmes immobiliers neufs à Châteaubourg