Maison neuve, 141 m² - Charnay-lès-Mâcon (71850)
450 000 €
Charnay-lès-Mâcon (71850)
Proposée par DEMEURES CALADOISES MÂCON – 4 pièces - 3 chambres - terrain 656 m²
|
|
| Demeures Caladoises Mâcon |
| (64 avis) |
- Demande d'information
- Prendre rendez-vous
MAISON À CONSTRUIRE : ceci est une annonce d'une maison neuve à construire.
Terrain Constructible Viabilisé à Vendre – 656 m² à Charnay Les Mâcon
Rare opportunité dans un cadre privilégié !
Proximité immédiate du centre ville, ce terrain de 656 m² situé dans un lotissement intimiste de 7 lots vous offre calme, confort et proximité avec toutes les commodités (écoles, commerces…).
Vous rêvez de construire votre maison ?
Créez votre projet 100 % sur-mesure, adapté à votre budget, vos envies et votre style de vie. Ensemble, concevons votre future maison conforme à la réglementation RE 2020, avec une étude personnalisée gratuite et sans engagement.
Exemple de projet :
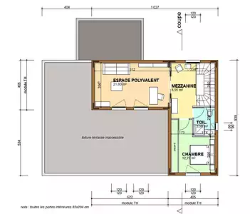
Sur ce terrain, Demeures Caladoises vous propose une superbe maison de 141 m², avec prestations haut de gamme incluses. Ce modèle est entièrement personnalisable selon vos goûts.Ne manquez pas cette opportunité de vivre dans un environnement paisible tout en restant proche de tout !
Référence : EA-00444
Terrain proposé et vendu par notre partenaire foncier selon disponibilités, le constructeur n'étant pas mandaté pour réaliser la vente du terrain.
Prix terrain inclus : 128 000 € Frais de notaire non inclus : €
Prix maison inclus : 322 000 € VRD non inclus : € Hors aménagements extérieurs (extensions, terrasse, piscine etc), papiers peints, peintures, moquettes dans les chambres (tarif en vigueur au 20 mai 2025, modifiable sans préavis, prix variables suivant les prestations souhaitées). Hors frais d’hypothèque.
Différents modèles disponibles pour chaque terrain.
Assurance RC professionnelle/décennale/dommage ouvrage groupe Aviva.
Garantie de remboursement de l'acompte/livraison à prix et délai convenu CGI.Tarif en vigueur au 20 mai 2025. Les informations sur les risques auxquels ce bien est exposé sont disponibles sur le site Géorisques : www.georisques.gouv.fr
Rare opportunité dans un cadre privilégié !
Proximité immédiate du centre ville, ce terrain de 656 m² situé dans un lotissement intimiste de 7 lots vous offre calme, confort et proximité avec toutes les commodités (écoles, commerces…).
Vous rêvez de construire votre maison ?
Créez votre projet 100 % sur-mesure, adapté à votre budget, vos envies et votre style de vie. Ensemble, concevons votre future maison conforme à la réglementation RE 2020, avec une étude personnalisée gratuite et sans engagement.
Exemple de projet :
Sur ce terrain, Demeures Caladoises vous propose une superbe maison de 141 m², avec prestations haut de gamme incluses. Ce modèle est entièrement personnalisable selon vos goûts.Ne manquez pas cette opportunité de vivre dans un environnement paisible tout en restant proche de tout !
Référence : EA-00444
Terrain proposé et vendu par notre partenaire foncier selon disponibilités, le constructeur n'étant pas mandaté pour réaliser la vente du terrain.
Prix terrain inclus : 128 000 € Frais de notaire non inclus : €
Prix maison inclus : 322 000 € VRD non inclus : € Hors aménagements extérieurs (extensions, terrasse, piscine etc), papiers peints, peintures, moquettes dans les chambres (tarif en vigueur au 20 mai 2025, modifiable sans préavis, prix variables suivant les prestations souhaitées). Hors frais d’hypothèque.
Différents modèles disponibles pour chaque terrain.
Assurance RC professionnelle/décennale/dommage ouvrage groupe Aviva.
Garantie de remboursement de l'acompte/livraison à prix et délai convenu CGI.Tarif en vigueur au 20 mai 2025. Les informations sur les risques auxquels ce bien est exposé sont disponibles sur le site Géorisques : www.georisques.gouv.fr
- Prix
-
- Prix total : 450 000 €
- Prix du modèle de maison : 322 000 €
- Prix du terrain : 128 000 €
- Terrain
-
- Surface : 656 m²
- Maison
-
- Surface : 141 m²
- Pièces : 4
- Chambres : 3
- Salle de bains : 1
- Garage : 1
- Être rappelé par un conseiller
- Demander plus d’infos
- Demande d'information
Charnay-lès-Mâcon (71850)
Maisons à proximité
Maison neuve, 113 m²
Charnay-lès-Mâcon (71850)
Charnay-lès-Mâcon (71850)
Maison de 5 pièces
Maison neuve, 79 m²
Charnay-lès-Mâcon (71850)
Charnay-lès-Mâcon (71850)
Maison de 4 pièces
Maison neuve, 130 m²
Charnay-lès-Mâcon (71850)
Charnay-lès-Mâcon (71850)
Maison de 6 pièces
Maison neuve, 120 m²
Charnay-lès-Mâcon (71850)
Charnay-lès-Mâcon (71850)
Maison de 5 pièces
Maison neuve, 92 m²
Charnay-lès-Mâcon (71850)
Charnay-lès-Mâcon (71850)
Maison de 4 pièces
Maison neuve, 100 m²
Charnay-lès-Mâcon (71850)
Charnay-lès-Mâcon (71850)
Maison de 4 pièces
Programmes à proximité
L'YDEAL
Mâcon (71000)
Mâcon (71000)
Appartements de 2 à 5 pièces
Livraison 1er trimestre 2027
TERRE DE SIENNE
Belleville-en-Beaujolais (69220)
Belleville-en-Beaujolais (69220)
Appartements de 3 à 4 pièces
Livraison 4ème trimestre 2025
FAUBOURG REPUBLIQUE
Belleville-en-Beaujolais (69220)
Belleville-en-Beaujolais (69220)
Appartement
Livraison 3ème trimestre 2024
Central Parc
Belleville-en-Beaujolais (69220)
Belleville-en-Beaujolais (69220)
Appartements de 2 à 4 pièces
Livraison 4ème trimestre 2027
Contacter DEMEURES CALADOISES MÂCON pour recevoir plus d'informations
Remplissez le formulaire ci-dessous, vos informations sont transmises directement au constructeur qui vous contactera par email ou par téléphone afin de traiter votre demande. En savoir plus.
Voir tous nos programmes immobiliers neufs à Charnay-lès-Mâcon