Maison neuve, 90 m² - Challans (85300)

267 000 €
Challans (85300)

Proposée par LMP CONSTRUCTEUR – 4 pièces - 3 chambres - terrain 349 m²

LMP CONSTRUCTEUR
LMP CONSTRUCTEUR
(66 avis)
  • Demande d'information
MAISON À CONSTRUIRE : ceci est une annonce d'une maison neuve à construire.
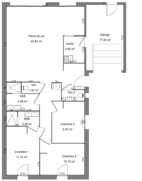
Maison de 4 pièces (90 m²) en vente à Challans
En centre-ville - À Challans (85300), maison neuve à vendre de 4 pièces, 90 m² sur 349 m² de terrain. Son intérieur est composé de trois chambres, d'une cuisine et de deux salles de bains.
Proche gare (Challans), établissements scolaires, crèches, bassins de natation, tennis, commerces, boulangeries, supermarchés, poissonneries et boucheries-charcuteries. Océan Atlantique à 17 km.
Cette maison de 4 pièces est proposée à l'achat pour 267 000 €.
. LMP Constructeur Challans vous accompagne à toutes les étapes de l'achat et dans toutes vos démarches.
Référence : TM2306442_3
Terrain proposé par un partenaire foncier selon disponibilités et autorisation de publicité au prix de 78 000 €. Hors droit d'enregistrement et frais de notaire. Maison proposée, avec un contrat de construction de maison individuelle, dans le cadre de la loi du 19/12/1990, au prix de 189 000 € (Hors branchements et raccordements, papiers peints, peintures, revêtement de sol dans les chambres, qui sont chiffrés dans les travaux qui restent à charge du client. Tarif modifiable sans préavis). Étiquette énergie : A. Différents modèles disponibles pour ce terrain. Assurances et garanties du constructeur comprises (RC professionnelle, décennale, dommage ouvrage).

Les informations sur les risques auxquels ce bien est exposé sont disponibles sur le site Géorisques : www.georisques.gouv.fr


Prix
  • Prix total : 267 000 €
  • Prix du modèle de maison : 189 000 €
  • Prix du terrain : 78 000 €

Terrain
  • Surface : 349 m²

Maison
  • Surface : 90 m²
  • Pièces : 4
  • Chambres : 3
  • Garage : 1

  • Être rappelé par un conseiller
  • Demander plus d’infos
  • Demande d'information
Challans (85300)

Programmes à proximité

Les Jardins Bois Soleil
Les Jardins Bois Soleil
Challans (85300)

Appartements de 1 à 3 pièces
Livraison 4ème trimestre 2027

PASSAGE HORTENSE
PASSAGE HORTENSE
Challans (85300)

Appartements de 3 à 4 pièces
Livraison 3ème trimestre 2026

La Belle Epoque
La Belle Epoque
Challans (85300)

Appartements de 2 à 4 pièces
Livraison 3ème trimestre 2027

Villa Pauline
Villa Pauline
Challans (85300)

Appartements de 3 à 4 pièces
Livraison 2ème trimestre 2026

MAESTRIA
MAESTRIA
Challans (85300)

Appartements de 4 à 5 pièces
Livraison 4ème trimestre 2025

Aulnéa
Aulnéa
Challans (85300)

Appartements de 2 à 4 pièces
Livraison 2ème trimestre 2028

Contacter LMP CONSTRUCTEUR pour recevoir plus d'informations

Remplissez le formulaire ci-dessous, vos informations sont transmises directement au constructeur qui vous contactera par email ou par téléphone afin de traiter votre demande. En savoir plus.

Voir tous nos programmes immobiliers neufs à Challans