Maison neuve, 128 m² - Chalifert (77144)

625 000 €
Chalifert (77144)

Proposée par MAISONS EVOLUTION – 4 pièces - 3 chambres - terrain 400 m²

MAISONS EVOLUTION
MAISONS EVOLUTION
  • Demande d'information
MAISON À CONSTRUIRE : ceci est une annonce d'une maison neuve à construire.
.
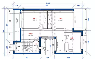
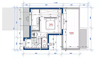
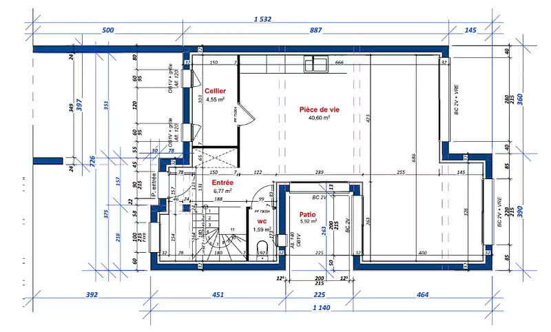
Belle et grande maison de 145 m² habitables avec garage intégré (transformable en chambre sur demande) idéalement située sur la commune de CHALIFERT
Elle est composée de 4 ou 5 chambres (dont une spacieuse suite parentale) de 2 ou 3 salles de bains, de deux WC d'une véritable entrée et d'un grand salon-séjour lumineux avec cuisine ouverte donnant sur un cellier puis sur le garage.
Le plus : une belle terrasse à l'étage pour profiter des beaux jours !
Les plans sont modifiables selon vos souhaits, en agence ou visioconférence. Nous vous proposons un véritable accompagnement de qualité tout au long de votre projet.
Dessinons ensemble votre future maison !Annonce proposée par un Agent Commercial Partenaire.
Référence : SS2290854_7
Terrain proposé par un partenaire foncier selon disponibilités et autorisation de publicité au prix de 280 000 €. Hors droit d'enregistrement et frais de notaire. Maison proposée, avec un contrat de construction de maison individuelle, dans le cadre de la loi du 19/12/1990, au prix de 345 000 € (Hors branchements et raccordements, papiers peints, peintures, revêtement de sol dans les chambres, qui sont chiffrés dans les travaux qui restent à charge du client. Tarif modifiable sans préavis). Étiquette énergie : A. Différents modèles disponibles pour ce terrain. Assurances et garanties du constructeur comprises (RC professionnelle, décennale, dommage ouvrage).

Les informations sur les risques auxquels ce bien est exposé sont disponibles sur le site Géorisques : www.georisques.gouv.fr


Prix
  • Prix total : 625 000 €
  • Prix du modèle de maison : 345 000 €
  • Prix du terrain : 280 000 €

Terrain
  • Surface : 400 m²

Maison
  • Surface : 128 m²
  • Pièces : 4
  • Chambres : 3

  • Être rappelé par un conseiller
  • Demander plus d’infos
  • Demande d'information
Chalifert (77144)

Programmes à proximité

Le Dandy
Le Dandy
Chessy (77700)

Appartements de 2 à 5 pièces
Livraison 2ème trimestre 2028

Le Liberty
Le Liberty
Chessy (77700)

Appartements de 2 à 5 pièces
Livraison 1er trimestre 2028

Les Allées des Trois Ormes Chapitre 2
Les Allées des Trois Ormes Chapitre 2
Coupvray (77700)

Appartements de 2 à 3 pièces et maisons de 4 à 6 pièces
Livraison 2ème trimestre 2027

LES HAUTES MAISONS - 05
LES HAUTES MAISONS - 05
Coupvray (77700)

Appartement et maison
Livraison 3ème trimestre 2025

SOLEA
SOLEA
Coupvray (77700)

Appartements de 1 à 5 pièces
Livraison 4ème trimestre 2027

L'Épistolière
L'Épistolière
Coupvray (77700)

Appartements de 4 pièces
Livraison 2ème trimestre 2026

Contacter MAISONS EVOLUTION pour recevoir plus d'informations

Remplissez le formulaire ci-dessous, vos informations sont transmises directement au constructeur qui vous contactera par email ou par téléphone afin de traiter votre demande. En savoir plus.

Voir tous nos programmes immobiliers neufs à Chalifert