Maison neuve, 110 m² - Bourgneuf (17220)

375 501 €
Bourgneuf (17220)

Proposée par MAISONS PRIVAT AGENCE DE LA ROCHELLE (17) – 4 pièces - 3 chambres - terrain 390 m²

Maisons Privat Agence de La Rochelle (17)
Maisons Privat Agence de La Rochelle (17)
  • Demande d'information
MAISON À CONSTRUIRE : ceci est une annonce d'une maison neuve à construire.
Sur ce terrain, nous vous proposons cette maison neuve : la Blainium, une maison résolument moderne et très singulière.
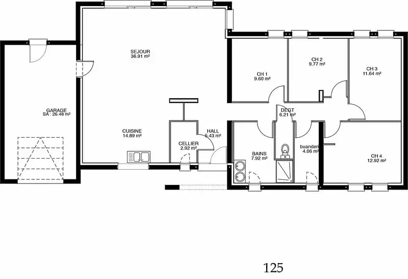
La Blainium, une maison de plain-pied contemporaine, propose une façade très stylée et originale avec ses jeux de toiture et de façades. Par ailleurs, ses grandes fenêtres laissent entrer généreusement la lumière extérieure. Cette demeure est disponible en plusieurs variantes, dans des dimensions allant de 85 à 125 m². En configuration 3 ou 4 chambres, avec ou sans bureau, dressing, salle d'eau privative, notre seule limite c'est votre imagination.
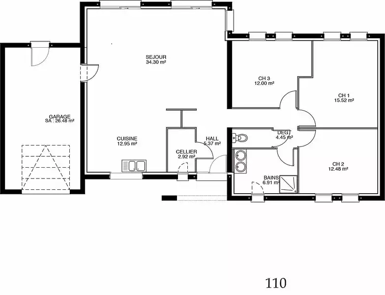
Avec une surface de 110 m², cette maison dispose de 3 chambres et de 4 pièces. En partie jour, vous disposerez d’un hall d'entrée qui donne sur un vaste séjour, une cuisine ouverte qui se prête à accueillir un grand îlot central, et un cellier. Le garage pratique d'accès est accolé. Parmi les caractéristiques principales, vous trouverez un toit plat, un garage accolé, un dressing et une suite parentale.
Les options les plus demandées par nos clients sont également disponibles : menuiseries en aluminium, enduit bi-ton, plancher chauffant et double garage.
Cette maison neuve est basse consommation et conforme à la RE2020, vous garantissant ainsi une habitation éco-responsable et économique.
Maisons Privat, constructeur centenaire avec les meilleurs avis clients de la région, vous permet de vivre votre rêve dans une maison unique. Posséder une maison neuve exceptionnelle n'a jamais été aussi accessible.
La Blainium permet de vivre son rêve dans une maison unique. Cette habitation vous permettra de réaliser votre rêve : posséder une maison neuve exceptionnelle.
Référence : 62084

Les informations sur les risques auxquels ce bien est exposé sont disponibles sur le site Géorisques : www.georisques.gouv.fr


Prix
  • Prix total : 375 501 €
  • Prix du modèle de maison : 245 601 €
  • Prix du terrain : 129 900 €

Terrain
  • Surface : 390 m²

Maison
  • Surface : 110 m²
  • Pièces : 4
  • Chambres : 3

  • Être rappelé par un conseiller
  • Demander plus d’infos
  • Demande d'information
Bourgneuf (17220)

Programmes à proximité

Le Clos du Chemin Vert
Le Clos du Chemin Vert
La Jarrie (17220)

Appartements de 3 à 5 pièces et maisons de 5 à 6 pièces et locaux commerciaux
Livraison 4ème trimestre 2026

Bel'Hameau
Bel'Hameau
Puilboreau (17138)

Appartements de 2 à 3 pièces
Livraison 1er trimestre 2028

L'Azuré
L'Azuré
Aytré (17440)

Appartements de 2 à 5 pièces
Livraison 3ème trimestre 2027

LE PARC DE L'ENVOLEE
LE PARC DE L'ENVOLEE
La Rochelle (17000)

Appartements de 1 à 3 pièces et maison de 3 pièces
Livraison 4ème trimestre 2028

Melitée
Melitée
La Rochelle (17000)

Appartements de 2 à 4 pièces
Livraison 2ème trimestre 2027

Cap Roscella
Cap Roscella
La Rochelle (17000)

Appartements de 1 à 4 pièces
Livraison 2ème trimestre 2026

Contacter MAISONS PRIVAT AGENCE DE LA ROCHELLE (17) pour recevoir plus d'informations

Remplissez le formulaire ci-dessous, vos informations sont transmises directement au constructeur qui vous contactera par email ou par téléphone afin de traiter votre demande. En savoir plus.

Voir tous nos programmes immobiliers neufs à Bourgneuf