Maison neuve, 150 m² - Bourgneuf (17220)

505 986 €
Bourgneuf (17220)

Proposée par MAISONS ELYSEES OCEAN AGENCE D’AIGREFEUILLE-D’AUNI – 4 pièces - 3 chambres - terrain 331 m²

Maisons Elysees Ocean Agence d’Aigrefeuille-d’Auni
Maisons Elysees Ocean Agence d’Aigrefeuille-d’Auni
  • Demande d'information
MAISON À CONSTRUIRE : ceci est une annonce d'une maison neuve à construire.
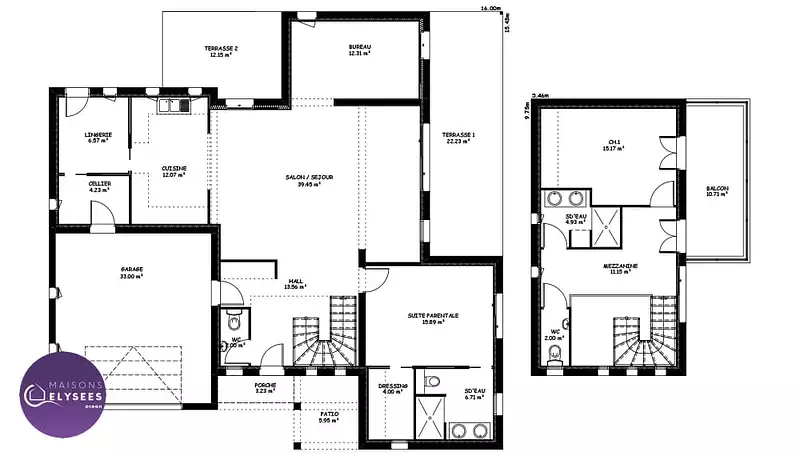
Sur ce terrain, nous vous proposons cette maison neuve, modèle Mathes, conçue par le constructeur Elysees Ocean, reconnu pour ses excellents avis clients. Cette maison de 150 m², basse consommation et conforme à la RE2020, est idéale pour ceux qui recherchent confort et modernité.
La maison Mathes se distingue par ses brises soleils généreux qui protègent le séjour et la mezzanine de l'étage des surchauffes estivales, tout en permettant une luminosité optimale en toute saison. À l'entrée, un jardin japonais accueille les visiteurs, offrant une atmosphère paisible et raffinée, protégée par une casquette généreuse.
Dès l'entrée, vous serez impressionné par un escalier magistral qui mène à une mezzanine, bordée de deux murs rideaux aux verres traités pour préserver l'intimité des habitants. Cet escalier luxueux, avec son limon central en acier, ses marches en bois et son garde-corps mêlant verre et acier, est un véritable chef-d'œuvre architectural.
La maison dispose de 3 chambres, dont une suite parentale, et de 4 pièces au total, offrant un espace de vie harmonieux et fonctionnel. La collection Plénitude, à laquelle appartient ce modèle, met l'accent sur l'harmonie de la lumière et le bien-être des occupants.
Les options les plus demandées par nos clients, telles que les menuiseries en aluminium, sont également disponibles pour personnaliser votre future maison selon vos goûts et besoins.
Ne manquez pas cette opportunité unique de devenir propriétaire d'une maison neuve, moderne et économe en énergie, construite par Elysees Ocean, le constructeur de confiance avec les meilleurs avis clients de la profession.
Référence : 20497

Les informations sur les risques auxquels ce bien est exposé sont disponibles sur le site Géorisques : www.georisques.gouv.fr


Prix
  • Prix total : 505 986 €
  • Prix du modèle de maison : 383 086 €
  • Prix du terrain : 122 900 €

Terrain
  • Surface : 331 m²

Maison
  • Surface : 150 m²
  • Pièces : 4
  • Chambres : 3

  • Être rappelé par un conseiller
  • Demander plus d’infos
  • Demande d'information
Bourgneuf (17220)

Programmes à proximité

Le Clos du Chemin Vert
Le Clos du Chemin Vert
La Jarrie (17220)

Appartements de 3 à 5 pièces et maisons de 5 à 6 pièces et locaux commerciaux
Livraison 4ème trimestre 2026

Bel'Hameau
Bel'Hameau
Puilboreau (17138)

Appartements de 2 à 3 pièces
Livraison 1er trimestre 2028

L'Azuré
L'Azuré
Aytré (17440)

Appartements de 2 à 5 pièces
Livraison 3ème trimestre 2027

LE PARC DE L'ENVOLEE
LE PARC DE L'ENVOLEE
La Rochelle (17000)

Appartements de 1 à 3 pièces et maison de 3 pièces
Livraison 4ème trimestre 2028

Melitée
Melitée
La Rochelle (17000)

Appartements de 2 à 4 pièces
Livraison 2ème trimestre 2027

Cap Roscella
Cap Roscella
La Rochelle (17000)

Appartements de 1 à 4 pièces
Livraison 2ème trimestre 2026

Contacter MAISONS ELYSEES OCEAN AGENCE D’AIGREFEUILLE-D’AUNI pour recevoir plus d'informations

Remplissez le formulaire ci-dessous, vos informations sont transmises directement au constructeur qui vous contactera par email ou par téléphone afin de traiter votre demande. En savoir plus.

Voir tous nos programmes immobiliers neufs à Bourgneuf