Maison neuve, 105 m² - Bourg-en-Bresse (01000)

290 000 €
Bourg-en-Bresse (01000)

Proposée par MAISONS ALAIN MÉTRAL – 4 pièces

 Maisons Alain Métral
Maisons Alain Métral
  • Demande d'information
MAISON À CONSTRUIRE : ceci est une annonce d'une maison neuve à construire.
Maisons Alain Métral vous propose ce joli projet de construction en relation avec FONCIA sur la commune de BOURG.
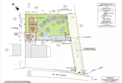
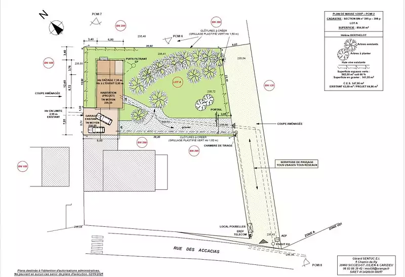
Le terrain plat fait 854 m² (LOT A), il est issu d'une division parcellaire.
Terrain plat.
Il est vendu non viabilisé et le PC est en passe d'être accepté.
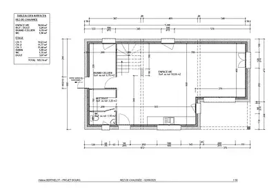
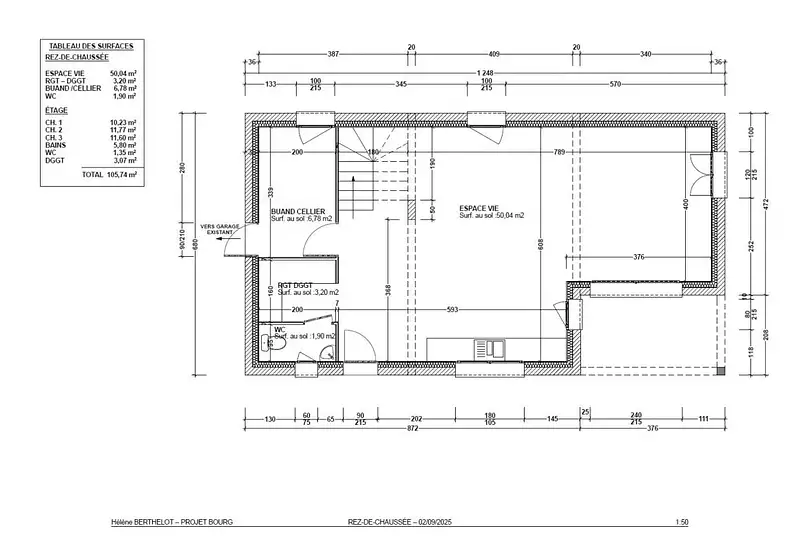
Nous avons imaginé pour vous une maison inversé de 105 m² + un Garage déjà présent sur la parcelle.
Au RDC une pièce de vie d'une surface de 50 m² avec cuisine en OPEN-SPACE, un Cellier / Buanderie et un WC suspendu indépendant.
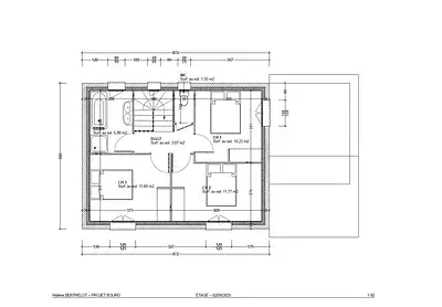
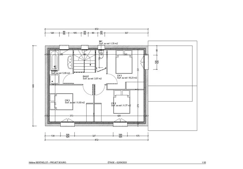
L'étage est complété par 3 chambres, une salle de bain et un WC suspendu indépendant.
Sanitaires et meuble vasque Jacob Delafon, carrelage en 60X60, faïence en 30x60, menuiserie ext anthracite avec des volets motorisés aluminium.
Le système de chauffage est géré par une pompe a chaleur DAIKIN alimentant un plancher chauffant / rafraichissant au sol (ou autre système au choix ).
Nous définirons ensemble le style architectural de votre maison, son agencement, l'emplacement souhaité sur le terrain…
Nous réalisons exclusivement des projets sur-mesure.
Terrain en accord avec notre partenaire foncier, sous réserve de disponibilité.
Prix hors frais de notaire, hors VRD, hors taxes, hors aménagement Ext.
Photos non contractuelles. Projet conforme à la RE2020.

Les informations sur les risques auxquels ce bien est exposé sont disponibles sur le site Géorisques : www.georisques.gouv.fr


Prix
  • Prix total : 290 000 €
  • Prix du modèle de maison : 170 000 €
  • Prix du terrain : 120 000 €

Maison
  • Surface : 105 m²
  • Pièces : 4

  • Être rappelé par un conseiller
  • Demander plus d’infos
  • Demande d'information
Bourg-en-Bresse (01000)

Programmes à proximité

Les Balcons d'Annie
Les Balcons d'Annie
Bourg-en-Bresse (01000)

Appartements de 1 à 4 pièces
Livraison 3ème trimestre 2026

J.O.U.R
J.O.U.R
Bourg-en-Bresse (01000)

Appartements de 2 à 5 pièces
Livraison 2ème trimestre 2027

Coeur Citadelle
Coeur Citadelle
Bourg-en-Bresse (01000)

Appartements de 2 à 5 pièces
Livraison 4ème trimestre 2027

Le Clos des Maraîchers
Le Clos des Maraîchers
Bourg-en-Bresse (01000)

Appartements de 2 à 4 pièces
Livraison 3ème trimestre 2027

TILIA
TILIA
Bourg-en-Bresse (01000)

Appartements de 2 à 4 pièces
Livraison 4ème trimestre 2026

Espace Milliat
Espace Milliat
Bourg-en-Bresse (01000)

Appartements de 1 à 4 pièces
Livraison 3ème trimestre 2025

Contacter MAISONS ALAIN MÉTRAL pour recevoir plus d'informations

Remplissez le formulaire ci-dessous, vos informations sont transmises directement au constructeur qui vous contactera par email ou par téléphone afin de traiter votre demande. En savoir plus.

Voir tous nos programmes immobiliers neufs à Bourg-en-Bresse