Maison neuve, 127 m² - Bey (01290)
338 000 €
Bey (01290)
Proposée par MAISONS FRANCE CONFORT – 4 pièces - 3 chambres - terrain 753 m²
|
|
| MAISONS FRANCE CONFORT |
| (48 avis) |
- Demande d'information
- Prendre rendez-vous
MAISON À CONSTRUIRE : ceci est une annonce d'une maison neuve à construire.
VENTE : maison de 4 pièces (127 m²) à Bey
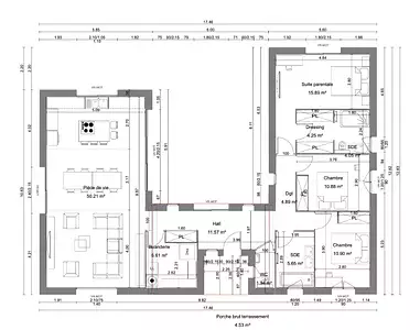
Proche de Bourg-en-Bresse - À Bey (01290), maison neuve en vente de 4 pièces, 127 m² sur 753 m² de terrain. Conçue de plain-pied, elle propose trois chambres, une cuisine et deux salles de bains.
À dix minutes : gares, établissements scolaires, crèche, marchés, bibliothèques, tennis, bassins de natation, commerces, boulangeries, supermarchés, supérettes et boucheries-charcuteries. Accès autoroutes A406, A6 et A40 et nationale N79 à 10 km.
Cette maison de 4 pièces est proposée à l'achat pour 338 000 €.
N'hésitez pas à prendre contact avec Sébastien GABRILLARGUES (tél : 06-81-77-73-67) pour obtenir de plus amples informations sur la maison ou sur les démarches à suivre. Maisons France Confort Bourg-en-Bresse est là pour vous accompagner à toutes les étapes de votre projet.
Annonce proposée par un Agent Commercial Partenaire.
Référence : SG2585_2
Terrain proposé par un partenaire foncier selon disponibilités et autorisation de publicité au prix de 87 000 €. Hors droit d'enregistrement et frais de notaire. Terrain + Maison proposés au prix de 251 000 € (Hors branchements et raccordements, papiers peints, peintures, revêtement de sol dans les chambres. Tarif modifiable sans préavis). Etiquette énergie : A. Différents modèles disponibles pour ce terrain. Assurances et garanties du constructeur (RC professionnelle, décennale, dommage ouvrage, garantie de remboursement de l'acompte, livraison à prix et délai convenu) : https://www.maisons-france-confort.fr/mentions-legales/. HEXAOM Services est enregistré auprès de l'ORIAS en tant que Courtier en financement, Niveau 1, sous le numéro 14001345.
Les informations sur les risques auxquels ce bien est exposé sont disponibles sur le site Géorisques : www.georisques.gouv.fr
Proche de Bourg-en-Bresse - À Bey (01290), maison neuve en vente de 4 pièces, 127 m² sur 753 m² de terrain. Conçue de plain-pied, elle propose trois chambres, une cuisine et deux salles de bains.
À dix minutes : gares, établissements scolaires, crèche, marchés, bibliothèques, tennis, bassins de natation, commerces, boulangeries, supermarchés, supérettes et boucheries-charcuteries. Accès autoroutes A406, A6 et A40 et nationale N79 à 10 km.
Cette maison de 4 pièces est proposée à l'achat pour 338 000 €.
N'hésitez pas à prendre contact avec Sébastien GABRILLARGUES (tél : 06-81-77-73-67) pour obtenir de plus amples informations sur la maison ou sur les démarches à suivre. Maisons France Confort Bourg-en-Bresse est là pour vous accompagner à toutes les étapes de votre projet.
Annonce proposée par un Agent Commercial Partenaire.
Référence : SG2585_2
Terrain proposé par un partenaire foncier selon disponibilités et autorisation de publicité au prix de 87 000 €. Hors droit d'enregistrement et frais de notaire. Terrain + Maison proposés au prix de 251 000 € (Hors branchements et raccordements, papiers peints, peintures, revêtement de sol dans les chambres. Tarif modifiable sans préavis). Etiquette énergie : A. Différents modèles disponibles pour ce terrain. Assurances et garanties du constructeur (RC professionnelle, décennale, dommage ouvrage, garantie de remboursement de l'acompte, livraison à prix et délai convenu) : https://www.maisons-france-confort.fr/mentions-legales/. HEXAOM Services est enregistré auprès de l'ORIAS en tant que Courtier en financement, Niveau 1, sous le numéro 14001345.
Les informations sur les risques auxquels ce bien est exposé sont disponibles sur le site Géorisques : www.georisques.gouv.fr
- Prix
-
- Prix total : 338 000 €
- Prix du modèle de maison : 251 000 €
- Prix du terrain : 87 000 €
- Terrain
-
- Surface : 753 m²
- Maison
-
- Surface : 127 m²
- Pièces : 4
- Chambres : 3
- Être rappelé par un conseiller
- Demander plus d’infos
- Demande d'information
Bey (01290)
Maisons à proximité
Maison neuve, 83 m²
Bey (01290)
Bey (01290)
Maison de 4 pièces
Maison neuve, 108 m²
Bey (01290)
Bey (01290)
Maison de 5 pièces
Maison neuve, 120 m²
Bey (01290)
Bey (01290)
Maison de 6 pièces
Maison neuve, 79 m²
Bey (01290)
Bey (01290)
Maison de 4 pièces
Maison neuve, 87 m²
Bey (01290)
Bey (01290)
Maison de 4 pièces
Maison neuve, 100 m²
Bey (01290)
Bey (01290)
Maison de 5 pièces
Programmes à proximité
L'YDEAL
Mâcon (71000)
Mâcon (71000)
Appartements de 2 à 5 pièces
Central Parc
Belleville-en-Beaujolais (69220)
Belleville-en-Beaujolais (69220)
Appartements de 2 à 4 pièces
Livraison 4ème trimestre 2027
TERRE DE SIENNE
Belleville-en-Beaujolais (69220)
Belleville-en-Beaujolais (69220)
Appartements de 4 pièces
Livraison 4ème trimestre 2025
FAUBOURG REPUBLIQUE
Belleville-en-Beaujolais (69220)
Belleville-en-Beaujolais (69220)
Appartement
Livraison 3ème trimestre 2024
LES BALCONS DE LA DOMBES
Saint-Trivier-sur-Moignans (01990)
Saint-Trivier-sur-Moignans (01990)
Appartements de 3 à 4 pièces
Livraison 2ème trimestre 2027
Les Allées Fleurie
Saint-Georges-de-Reneins (69830)
Saint-Georges-de-Reneins (69830)
Appartements de 2 à 4 pièces
Livraison 4ème trimestre 2027
Contacter MAISONS FRANCE CONFORT pour recevoir plus d'informations
Remplissez le formulaire ci-dessous, vos informations sont transmises directement au constructeur qui vous contactera par email ou par téléphone afin de traiter votre demande. En savoir plus.