Maison neuve - Benon (17170)
288 000 €
Benon (17170)
Proposée par MAISONS PRIVAT AGENCE DE LA ROCHELLE (17) – 4 pièces - 3 chambres - terrain 392 m²
|
|
| Maisons Privat Agence de La Rochelle (17) |
- Demande d'information
- Prendre rendez-vous
MAISON À CONSTRUIRE : ceci est une annonce d'une maison neuve à construire.
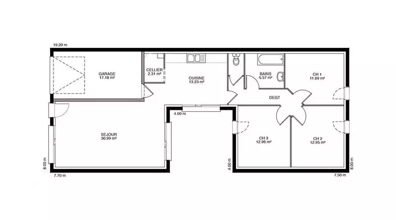
Sur ce terrain, nous vous proposons cette maison neuve : La Longium, une maison moderne de plain-pied design. Adaptée à une famille, ce magnifique pavillon moderne de plain-pied propose un plan de 96 m² articulé autour d'un patio central. Extrêmement élégante, cette maison offre un design moderne et un grand confort grâce à ses larges ouvertures.
Rien ne manque dans la Longium, pour un confort total. Vous disposerez d’un long garage intégré et de trois chambres. C’est un logis bien réparti et fonctionnel, comportant une grande pièce de vie traversante, dotée d’une cuisine ouverte.
Les options les plus demandées par nos clients sont disponibles : bardage bois et menuiseries aluminium, pour une touche esthétique et durable.
Cette maison neuve est basse consommation et conforme à la RE2020, garantissant des performances énergétiques optimales et un respect de l'environnement.
Le constructeur, Maisons Privat, est un constructeur centenaire avec les meilleurs avis clients de la région, assurant une qualité de construction irréprochable et un service client exemplaire.
Ne manquez pas cette opportunité unique de devenir propriétaire de la maison Longium, un véritable havre de paix moderne et éco-responsable.
Référence : 64759
Les informations sur les risques auxquels ce bien est exposé sont disponibles sur le site Géorisques : www.georisques.gouv.fr
Rien ne manque dans la Longium, pour un confort total. Vous disposerez d’un long garage intégré et de trois chambres. C’est un logis bien réparti et fonctionnel, comportant une grande pièce de vie traversante, dotée d’une cuisine ouverte.
Les options les plus demandées par nos clients sont disponibles : bardage bois et menuiseries aluminium, pour une touche esthétique et durable.
Cette maison neuve est basse consommation et conforme à la RE2020, garantissant des performances énergétiques optimales et un respect de l'environnement.
Le constructeur, Maisons Privat, est un constructeur centenaire avec les meilleurs avis clients de la région, assurant une qualité de construction irréprochable et un service client exemplaire.
Ne manquez pas cette opportunité unique de devenir propriétaire de la maison Longium, un véritable havre de paix moderne et éco-responsable.
Référence : 64759
Les informations sur les risques auxquels ce bien est exposé sont disponibles sur le site Géorisques : www.georisques.gouv.fr
- Prix
-
- Prix total : 288 000 €
- Prix du modèle de maison : 230 000 €
- Prix du terrain : 58 000 €
- Terrain
-
- Surface : 392 m²
- Maison
-
- Pièces : 4
- Chambres : 3
- Être rappelé par un conseiller
- Demander plus d’infos
- Demande d'information
Benon (17170)
Maisons à proximité
Maison neuve, 87 m²
Benon (17170)
Benon (17170)
Maison de 4 pièces
Maison neuve, 100 m²
Benon (17170)
Benon (17170)
Maison de 5 pièces
Maison neuve, 117 m²
Benon (17170)
Benon (17170)
Maison de 5 pièces
Maison neuve, 70 m²
Benon (17170)
Benon (17170)
Maison de 3 pièces
Maison neuve, 75 m²
Benon (17170)
Benon (17170)
Maison de 3 pièces
Maison neuve, 80 m²
Benon (17170)
Benon (17170)
Maison de 4 pièces
Programmes à proximité
Le Clos du Chemin Vert
La Jarrie (17220)
La Jarrie (17220)
Appartements de 3 à 5 pièces et maisons de 5 à 6 pièces et locaux commerciaux
Livraison 4ème trimestre 2026
Domaine Parc et Canal
Marans (17230)
Marans (17230)
Appartements de 1 à 3 pièces
Livraison 4ème trimestre 2027
Bel'Hameau
Puilboreau (17138)
Puilboreau (17138)
Appartements de 2 à 3 pièces
Livraison 1er trimestre 2028
Contacter MAISONS PRIVAT AGENCE DE LA ROCHELLE (17) pour recevoir plus d'informations
Remplissez le formulaire ci-dessous, vos informations sont transmises directement au constructeur qui vous contactera par email ou par téléphone afin de traiter votre demande. En savoir plus.