Maison neuve, 89 m² - Beaupréau (49600)
248 500 €
Beaupréau (49600)
Proposée par MAISONS BERNARD JAMBERT – 5 pièces - 3 chambres - terrain 410 m²
|
|
| MAISONS BERNARD JAMBERT |
- Demande d'information
- Prendre rendez-vous
MAISON À CONSTRUIRE : ceci est une annonce d'une maison neuve à construire.
Beaupréau : maison de 5 pièces (89 m²) à vendre
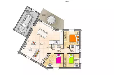
Idéalement située - À découvrir à Beaupréau (49600) : maison neuve 5 pièces en vente, 89 m² de surface sur 410 m² de terrain. Son intérieur comporte trois chambres, une cuisine et une salle de bains.
À proximité : établissements scolaires, crèche, bibliothèque, commerces, boulangeries, supermarché, boucherie-charcuterie et épiceries. Marché Place du 11 novembre le lundi matin. Autoroute A87 et nationale N249 à 19 km.
Cette maison de 5 pièces est à vendre pour la somme de 248 500 €.
.
Référence : MJ2355185_2
Terrain proposé par un partenaire foncier selon disponibilités et autorisation de publicité au prix de 59 000 €. Hors droit d'enregistrement et frais de notaire. Maison proposée, avec un contrat de construction de maison individuelle, dans le cadre de la loi du 19/12/1990, au prix de 189 500 € (Hors branchements et raccordements, papiers peints, peintures, revêtement de sol dans les chambres, qui sont chiffrés dans les travaux qui restent à charge du client. Tarif modifiable sans préavis). Étiquette énergie : A. Différents modèles disponibles pour ce terrain. Assurances et garanties du constructeur comprises (RC professionnelle, décennale, dommage ouvrage).
Les informations sur les risques auxquels ce bien est exposé sont disponibles sur le site Géorisques : www.georisques.gouv.fr
Idéalement située - À découvrir à Beaupréau (49600) : maison neuve 5 pièces en vente, 89 m² de surface sur 410 m² de terrain. Son intérieur comporte trois chambres, une cuisine et une salle de bains.
À proximité : établissements scolaires, crèche, bibliothèque, commerces, boulangeries, supermarché, boucherie-charcuterie et épiceries. Marché Place du 11 novembre le lundi matin. Autoroute A87 et nationale N249 à 19 km.
Cette maison de 5 pièces est à vendre pour la somme de 248 500 €.
.
Référence : MJ2355185_2
Terrain proposé par un partenaire foncier selon disponibilités et autorisation de publicité au prix de 59 000 €. Hors droit d'enregistrement et frais de notaire. Maison proposée, avec un contrat de construction de maison individuelle, dans le cadre de la loi du 19/12/1990, au prix de 189 500 € (Hors branchements et raccordements, papiers peints, peintures, revêtement de sol dans les chambres, qui sont chiffrés dans les travaux qui restent à charge du client. Tarif modifiable sans préavis). Étiquette énergie : A. Différents modèles disponibles pour ce terrain. Assurances et garanties du constructeur comprises (RC professionnelle, décennale, dommage ouvrage).
Les informations sur les risques auxquels ce bien est exposé sont disponibles sur le site Géorisques : www.georisques.gouv.fr
- Prix
-
- Prix total : 248 500 €
- Prix du modèle de maison : 189 500 €
- Prix du terrain : 59 000 €
- Terrain
-
- Surface : 410 m²
- Maison
-
- Surface : 89 m²
- Pièces : 5
- Chambres : 3
- Garage : 1
- Être rappelé par un conseiller
- Demander plus d’infos
- Demande d'information
Beaupréau (49600)
Maisons à proximité
Maison neuve, 82 m²
Beaupréau (49600)
Beaupréau (49600)
Maison de 4 pièces
Maison neuve, 89 m²
Beaupréau (49600)
Beaupréau (49600)
Maison de 4 pièces
Maison neuve, 49 m²
Beaupréau (49600)
Beaupréau (49600)
Maison de 3 pièces
Maison neuve, 78 m²
Beaupréau (49600)
Beaupréau (49600)
Maison de 4 pièces
Maison neuve, 110 m²
Beaupréau (49600)
Beaupréau (49600)
Maison de 6 pièces
Maison neuve, 106 m²
Beaupréau (49600)
Beaupréau (49600)
Maison de 5 pièces
Programmes à proximité
Les Jardins des Mauges
Cholet (49300)
Cholet (49300)
Appartements de 2 à 4 pièces
Livraison 4ème trimestre 2026
ORGANZA
Cholet (49300)
Cholet (49300)
Appartements de 3 pièces et maisons de 3 pièces
Livraison 2ème trimestre 2026
Les Jardins des Mauges II
Cholet (49300)
Cholet (49300)
Appartements de 1 à 3 pièces
Livraison 4ème trimestre 2027
Le Clos de la Roseraie
Mortagne-sur-Sèvre (85290)
Mortagne-sur-Sèvre (85290)
Appartements de 2 à 4 pièces
Livraison 1er trimestre 2028
Les Confluences
Chalonnes-sur-Loire (49290)
Chalonnes-sur-Loire (49290)
Appartements de 2 à 5 pièces
Livraison 4ème trimestre 2026
Contacter MAISONS BERNARD JAMBERT pour recevoir plus d'informations
Remplissez le formulaire ci-dessous, vos informations sont transmises directement au constructeur qui vous contactera par email ou par téléphone afin de traiter votre demande. En savoir plus.