Maison neuve, 70 m² - Ambillou (37340)

198 500 €
Ambillou (37340)

Proposée par CONSTRUCTIONS IDEALE DEMEURE – 3 pièces - 2 chambres - terrain 513 m²

CONSTRUCTIONS IDEALE DEMEURE
CONSTRUCTIONS IDEALE DEMEURE
  • Demande d'information
MAISON À CONSTRUIRE : ceci est une annonce d'une maison neuve à construire.
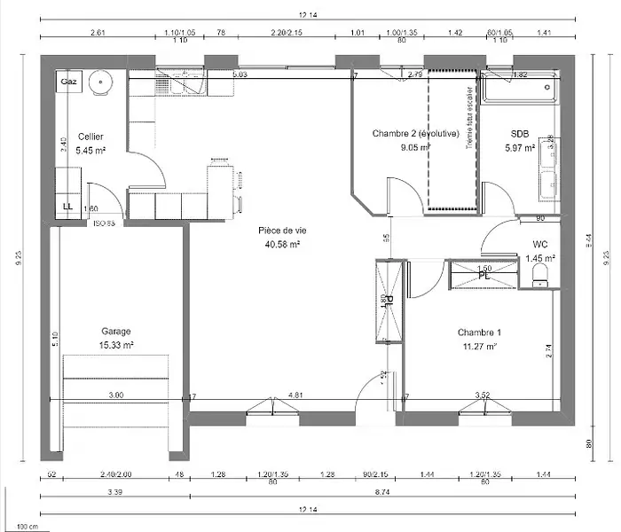
Charmante maison de 74m² de plain-pied offrant 2 chambres dont une évolutive de façon à agrandir la pièce à vivre une fois les combles aménagés.
Ce projet comprend également un garage de 15m² attenant au cellier, une salle de bain et des WC séparé.
CONSTRUCTIONS IDEALE DEMEURE a sélectionné avec un partenaire foncier un terrain pour construire cette maison.
Je reste disponible pour toutes demandes de renseignements, n'hésitez pas me contacter : Stéphane Digneton : °6.64.92.89.69.
Référence : SD2250794_7
Terrain proposé par un partenaire foncier selon disponibilités et autorisation de publicité au prix de 57 900 €. Hors droit d'enregistrement et frais de notaire. Maison proposée, avec un contrat de construction de maison individuelle, dans le cadre de la loi du 19/12/1990, au prix de 140 600 € (Hors branchements et raccordements, papiers peints, peintures, revêtement de sol dans les chambres, qui sont chiffrés dans les travaux qui restent à charge du client. Tarif modifiable sans préavis). Étiquette énergie : A. Différents modèles disponibles pour ce terrain. Assurances et garanties du constructeur comprises (RC professionnelle, décennale, dommage ouvrage).

Les informations sur les risques auxquels ce bien est exposé sont disponibles sur le site Géorisques : www.georisques.gouv.fr


Prix
  • Prix total : 198 500 €
  • Prix du modèle de maison : 140 600 €
  • Prix du terrain : 57 900 €

Terrain
  • Surface : 513 m²

Maison
  • Surface : 70 m²
  • Pièces : 3
  • Chambres : 2
  • Garage : 1

  • Être rappelé par un conseiller
  • Demander plus d’infos
  • Demande d'information
Ambillou (37340)

Programmes à proximité

Les Jardins de Musset
Les Jardins de Musset
Fondettes (37230)

Appartements de 3 à 5 pièces
Livraison 2ème trimestre 2026

LE DOMAINE DES LYS
LE DOMAINE DES LYS
Saint-Cyr-sur-Loire (37540)

Appartements de 1 à 4 pièces
Livraison 4ème trimestre 2027

La Saint-Cyrienne
La Saint-Cyrienne
Saint-Cyr-sur-Loire (37540)

Appartements de 2 à 4 pièces
Livraison 4ème trimestre 2026

APPARTEMENT TERRASSE/LIBERTE
APPARTEMENT TERRASSE/LIBERTE
La Riche (37520)

Appartement de 4 pièces
Livraison 3ème trimestre 2024

Les Dryades
Les Dryades
La Riche (37520)

Appartements de 3 à 4 pièces
Livraison 3ème trimestre 2025

EMBLEM
EMBLEM
La Riche (37520)

Appartements de 2 à 5 pièces
Livraison 1er trimestre 2026

Contacter CONSTRUCTIONS IDEALE DEMEURE pour recevoir plus d'informations

Remplissez le formulaire ci-dessous, vos informations sont transmises directement au constructeur qui vous contactera par email ou par téléphone afin de traiter votre demande. En savoir plus.

Voir tous nos programmes immobiliers neufs à Ambillou