Maison neuve, 89 m² - Yzeux (80310)
174 819 €
Yzeux (80310)
Proposée par BABEAU SEGUIN AGENCE D’AMIENS (80000) – SOMME – 5 pièces - 4 chambres - terrain 1 278 m²
|
|
| Babeau Seguin Agence d’Amiens (80000) – Somme |
- Demande d'information
- Prendre rendez-vous
MAISON À CONSTRUIRE : ceci est une annonce d'une maison neuve à construire.
Sur ce terrain, nous vous proposons cette maison neuve : la Focus Family. Conçue par Babeau-Seguin, constructeur offrant le meilleur rapport qualité/prix du marché, cette maison familiale à tout petit prix est idéale pour ceux qui souhaitent allier confort et économies.
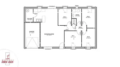
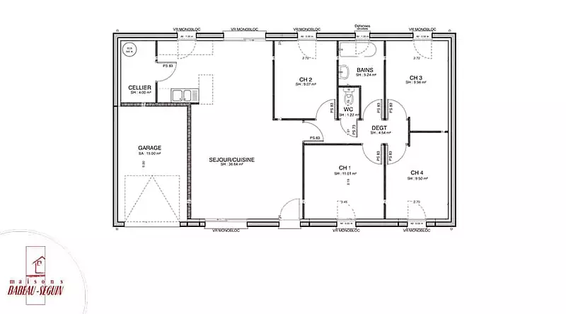
Avec une surface habitable de 89 m², la Focus Family vous offre un espace généreux et bien agencé. Elle comprend 4 chambres, parfaites pour accueillir toute votre famille, ainsi qu'un grand séjour traversant avec cuisine ouverte, pour un total de 4 pièces. Vous apprécierez également le garage intégré, pratique pour stationner votre véhicule ou pour du rangement supplémentaire.
L'enduit bi-ton de la façade apporte une touche moderne et élégante à cette maison. De plus, les options les plus demandées par nos clients, comme les menuiseries en aluminium, sont disponibles pour personnaliser votre future habitation selon vos goûts.
La Focus Family est une maison basse consommation, conforme à la réglementation environnementale RE2020. Elle est équipée des dernières innovations technologiques pour garantir une isolation thermique et phonique optimale, tout en étant économique et respectueuse de l'environnement.
Ne faites aucune concession sur la qualité avec cette maison low cost de luxe. Babeau-Seguin met tout son savoir-faire et son professionnalisme dans la construction de la gamme Focus, en utilisant les meilleurs matériaux et une charpente traditionnelle.
N'attendez plus pour réaliser votre projet de maison familiale à petit prix avec la Focus Family, une maison spacieuse, écolo et accessible à tous les budgets.
Référence : 90809
Les informations sur les risques auxquels ce bien est exposé sont disponibles sur le site Géorisques : www.georisques.gouv.fr
Avec une surface habitable de 89 m², la Focus Family vous offre un espace généreux et bien agencé. Elle comprend 4 chambres, parfaites pour accueillir toute votre famille, ainsi qu'un grand séjour traversant avec cuisine ouverte, pour un total de 4 pièces. Vous apprécierez également le garage intégré, pratique pour stationner votre véhicule ou pour du rangement supplémentaire.
L'enduit bi-ton de la façade apporte une touche moderne et élégante à cette maison. De plus, les options les plus demandées par nos clients, comme les menuiseries en aluminium, sont disponibles pour personnaliser votre future habitation selon vos goûts.
La Focus Family est une maison basse consommation, conforme à la réglementation environnementale RE2020. Elle est équipée des dernières innovations technologiques pour garantir une isolation thermique et phonique optimale, tout en étant économique et respectueuse de l'environnement.
Ne faites aucune concession sur la qualité avec cette maison low cost de luxe. Babeau-Seguin met tout son savoir-faire et son professionnalisme dans la construction de la gamme Focus, en utilisant les meilleurs matériaux et une charpente traditionnelle.
N'attendez plus pour réaliser votre projet de maison familiale à petit prix avec la Focus Family, une maison spacieuse, écolo et accessible à tous les budgets.
Référence : 90809
Les informations sur les risques auxquels ce bien est exposé sont disponibles sur le site Géorisques : www.georisques.gouv.fr
- Prix
-
- Prix total : 174 819 €
- Prix du modèle de maison : 129 819 €
- Prix du terrain : 45 000 €
- Terrain
-
- Surface : 1 278 m²
- Maison
-
- Surface : 89 m²
- Pièces : 5
- Chambres : 4
- Être rappelé par un conseiller
- Demander plus d’infos
- Demande d'information
Yzeux (80310)
Maisons à proximité
Maison neuve, 100 m²
Yzeux (80310)
Yzeux (80310)
Maison de 4 pièces
Maison neuve, 90,45 m²
Yzeux (80310)
Yzeux (80310)
Maison de 4 pièces
Maison neuve, 88,19 m²
Hangest-sur-Somme (80310)
Hangest-sur-Somme (80310)
Maison de 4 pièces
Maison neuve, 90 m²
Condé-Folie (80890)
Condé-Folie (80890)
Maison de 4 pièces
Maison neuve, 114 m²
Ailly-sur-Somme (80470)
Ailly-sur-Somme (80470)
Maison de 6 pièces
Programmes à proximité
FLOW
Amiens (80000)
Amiens (80000)
Appartements de 1 à 5 pièces
Livraison 4ème trimestre 2027
Résidence Hortea
Amiens (80000)
Amiens (80000)
Appartements de 1 à 3 pièces
Prochainement à Amiens
Amiens (80000)
Amiens (80000)
Appartements de 1 à 5 pièces
L'APARTÉ
Amiens (80000)
Amiens (80000)
Appartements de 2 à 4 pièces
Livraison 3ème trimestre 2028
L'ARCHIPEL
Amiens (80000)
Amiens (80000)
Appartements de 3 à 4 pièces
Livraison 4ème trimestre 2025
Tempo Nature
Amiens (80000)
Amiens (80000)
Appartement de 4 pièces et maisons de 4 pièces
Livraison 1er trimestre 2027
Contacter BABEAU SEGUIN AGENCE D’AMIENS (80000) – SOMME pour recevoir plus d'informations
Remplissez le formulaire ci-dessous, vos informations sont transmises directement au constructeur qui vous contactera par email ou par téléphone afin de traiter votre demande. En savoir plus.