Maison neuve, 150 m² - Villecerf (77250)

368 000 €
Villecerf (77250)

Proposée par MAISONS BALENCY – 6 pièces - 4 chambres - terrain 535 m²

MAISONS BALENCY
MAISONS BALENCY
  • Demande d'information
MAISON À CONSTRUIRE : ceci est une annonce d'une maison neuve à construire.
Villecerf (77250), en Seine et Marne :
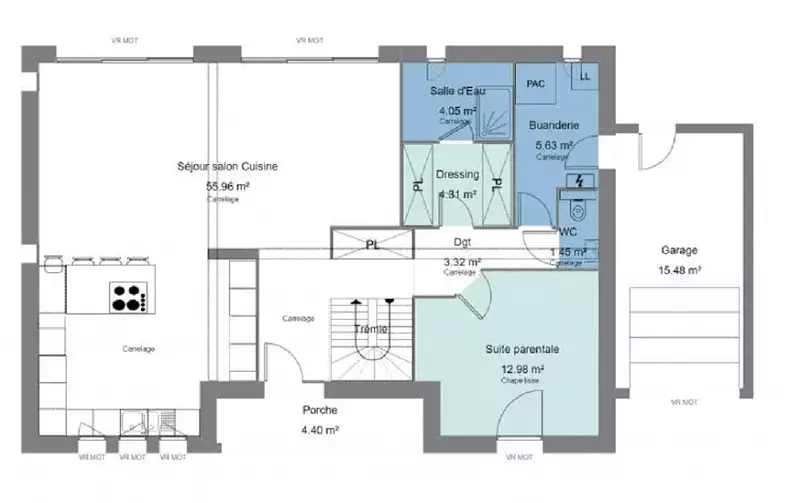
Demeure Contemporaine Haut-de-gamme de 150 m² à Bâtir sur un beau terrain de 535 m² par les Maisons Balency d'Ormoy.
Découvrez cette superbe maison contemporaine de 4 chambres et de 2 salles-de-bains à construire sur un grand terrain en lot avant à partir de 368 000 € !
Lignes épurées et belle luminosité caractérisent ce projet signé les Maisons Balency d'Ormoy.
Nos modèles sont personnalisables : concevez votre maison sur mesure ou adaptez l'un de nos modèles issus de notre catalogue, selon vos envies et votre style de vie. Toutes nos constructions respectent les dernières normes RE2020, garantissant un DPE A ou B et une performance énergétique durable.
Villecerf offre un cadre de vie paisible à proximité de Moret-Loing-et-Orvanne et de Fontainebleau. Vous trouverez à quelques minutes écoles, commerces, centre médical et supermarchés. La gare de Moret-Veneux-les-Sablons (ligne R) permet de rejoindre Paris-Gare de Lyon en environ une heure, idéale pour les actifs recherchant la tranquillité sans renoncer à la proximité de la capitale.
Maisons BALENCY - Agence d'Ormoy
23 chemin de Tournenfils, 91540 OrmoyAnnonce proposée par un Agent Commercial Partenaire.
Référence : PM2304758_2
Terrain proposé par un partenaire foncier selon disponibilités et autorisation de publicité au prix de 68 000 €. Hors droit d'enregistrement et frais de notaire. Maison proposée, avec un contrat de construction de maison individuelle, dans le cadre de la loi du 19/12/1990, au prix de 300 000 € (Hors branchements et raccordements, papiers peints, peintures, revêtement de sol dans les chambres, qui sont chiffrés dans les travaux qui restent à charge du client. Tarif modifiable sans préavis). Étiquette énergie : A. Différents modèles disponibles pour ce terrain. Assurances et garanties du constructeur comprises (RC professionnelle, décennale, dommage ouvrage).

Les informations sur les risques auxquels ce bien est exposé sont disponibles sur le site Géorisques : www.georisques.gouv.fr


Prix
  • Prix total : 368 000 €
  • Prix du modèle de maison : 300 000 €
  • Prix du terrain : 68 000 €

Terrain
  • Surface : 535 m²

Maison
  • Surface : 150 m²
  • Pièces : 6
  • Chambres : 4
  • Garage : 1

  • Être rappelé par un conseiller
  • Demander plus d’infos
  • Demande d'information
Villecerf (77250)

Programmes à proximité

Les Jardins du Grand Pont
Les Jardins du Grand Pont
Nemours (77140)

Appartements de 2 à 4 pièces
Livraison 4ème trimestre 2027

Résidence Le Fleury
Résidence Le Fleury
Nemours (77140)

Appartements de 3 pièces et maisons de 4 pièces
Livraison 4ème trimestre 2026

L'Allée Royale
L'Allée Royale
Fontainebleau (77300)

Appartements de 2 à 4 pièces
Livraison 4ème trimestre 2027

LE DOMAINE DE CASTILLE
LE DOMAINE DE CASTILLE
La Chapelle-la-Reine (77760)

Appartements de 2 à 3 pièces et maisons de 4 à 5 pièces
Livraison 1er trimestre 2027

Bois et Lumière
Bois et Lumière
Vaux-le-Pénil (77000)

Appartements de 2 à 4 pièces
Livraison 4ème trimestre 2026

Contacter MAISONS BALENCY pour recevoir plus d'informations

Remplissez le formulaire ci-dessous, vos informations sont transmises directement au constructeur qui vous contactera par email ou par téléphone afin de traiter votre demande. En savoir plus.

Voir tous nos programmes immobiliers neufs à Villecerf