Maison neuve, 98 m² - Vidauban (83550)

349 000 €
Vidauban (83550)

Proposée par MAISONS DE MANON – 4 pièces - 3 chambres - terrain 600 m²

MAISONS DE MANON
MAISONS DE MANON
(86 avis)
  • Demande d'information
MAISON À CONSTRUIRE : ceci est une annonce d'une maison neuve à construire.
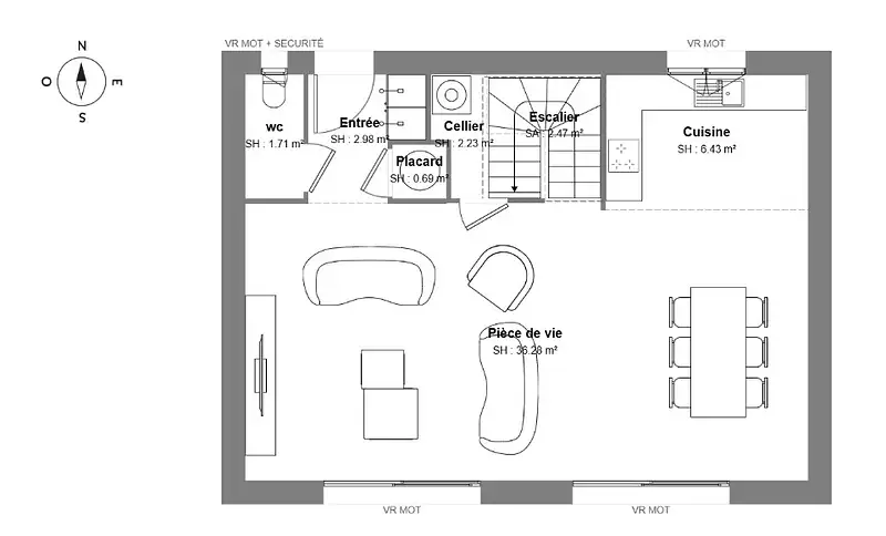
Idéalement située sur la commune de Vidauban, découvrez cette maison neuve à étage de 4 pièces, développant 98 m² habitables sur un terrain de 600 m².
Entre Draguignan et Le Luc et à 30 minutes de la mer, Vidauban est connue pour ses domaines viticoles et sa proximité du massif des Maures.
La maison se compose d'une belle pièce de vie avec cuisine ouverte, de deux chambres, d'une suite parentale avec salle d'eau et dressing, d'une salle de bain, de deux wc et d'un cellier. Le projet est implanté dans un quartier agréable, à moins de 5 minutes des commerces, offrant un cadre de vie pratique et confortable.
Proposé à partir de 349 000 €, ce projet comprend le terrain, la construction de la maison de 98 m² et les frais annexes estimés indispensables à la réalisation du projet.
(Hors frais de notaire, cuisine et peintures)
Pour un projet qui vous ressemble, les démarches ou les modalités de vente, contactez Lucile BERTHE au 06 23 96 86 94 - Maisons de Manon, Agence de Brignoles
Nous ferons de ce projet le vôtre, adapté à vos besoins, sur mesure.
Référence : LB2409050_3
Terrain proposé par un partenaire foncier selon disponibilités et autorisation de publicité au prix de 149 000 €. Hors droit d'enregistrement et frais de notaire. Terrain + Maison proposés au prix de 349 000 € (Hors branchements et raccordements, papiers peints, peintures, revêtement de sol dans les chambres. Tarif modifiable sans préavis). Etiquette énergie : A. Différents modèles disponibles pour ce terrain. Assurances et garanties du constructeur (RC professionnelle, décennale, dommage ouvrage, garantie de remboursement de l'acompte, livraison à prix et délai convenu) : HEXAOM Services est enregistré auprès de l'ORIAS en tant que Courtier en financement, Niveau 1, sous le numéro 14001345.

Les informations sur les risques auxquels ce bien est exposé sont disponibles sur le site Géorisques : www.georisques.gouv.fr


Prix
  • Prix total : 349 000 €
  • Prix du modèle de maison : 200 000 €
  • Prix du terrain : 149 000 €

Terrain
  • Surface : 600 m²

Maison
  • Surface : 98 m²
  • Pièces : 4
  • Chambres : 3

  • Être rappelé par un conseiller
  • Demander plus d’infos
  • Demande d'information
Vidauban (83550)

Programmes à proximité

Le Patio des Lys
Le Patio des Lys
Le Muy (83490)

Appartements de 3 à 4 pièces
Livraison 2ème trimestre 2027

Castanea
Castanea
La Garde-Freinet (83680)

Appartements de 2 à 4 pièces
Livraison 1er trimestre 2028

FLEUR DU NIL
FLEUR DU NIL
Draguignan (83300)

Appartement
Livraison 4ème trimestre 2026

Les Terrasses du Dragon
Les Terrasses du Dragon
Draguignan (83300)

Appartements de 2 à 3 pièces
Livraison 2ème trimestre 2028

Les Jardins de Novaia
Les Jardins de Novaia
Draguignan (83300)

Appartements de 2 à 3 pièces
Livraison 3ème trimestre 2028

Le domaine de la Fée
Le domaine de la Fée
Draguignan (83300)

Appartements de 2 à 3 pièces
Livraison 2ème trimestre 2026

Contacter MAISONS DE MANON pour recevoir plus d'informations

Remplissez le formulaire ci-dessous, vos informations sont transmises directement au constructeur qui vous contactera par email ou par téléphone afin de traiter votre demande. En savoir plus.

Voir tous nos programmes immobiliers neufs à Vidauban