Maison neuve, 98 m² - Vidauban (83550)

370 000 €
Vidauban (83550)

Proposée par MAISONS FRANCE CONFORT – 4 pièces - 3 chambres - terrain 602 m²

MAISONS FRANCE CONFORT
MAISONS FRANCE CONFORT
(244 avis)
  • Demande d'information
MAISON À CONSTRUIRE : ceci est une annonce d'une maison neuve à construire.
Exclusivité Maisons France Confort: projet de construction Vidauban
Vous souhaitez construire sur Vidauban? Venez visiter en exclusivité ce terrain plat de 602m² situé dans un quartier résidentiel vendu avec permis de construire (en cours de validation) pour une maison de 98m² de style bastide.
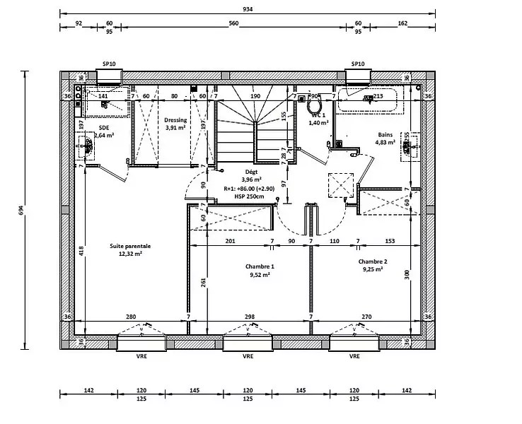
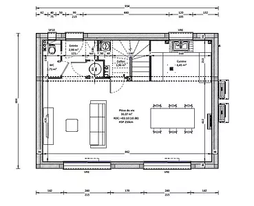
Vous pourrez profiter au rez-de-chaussée d'une agréable pièce de vie exposée Sud ouverte sur le jardin par ses deux baies vitrées.
A l'étage se trouve 2 chambres avec leur salle d'eau ainsi qu'une suite parentale avec dressing et salle d'eau.
Vous souhaitez en savoir plus sur ce projet? Contactez Natacha Espinosa au o6.o9.71.88.69
Le prix comprend : terrain, provision frais de notaire, construction, provision adaptation au sol, provision terrassement, provision viabilisation
Le prix ne comprend pas : taxes, aménagements intérieurs et extérieurs.
Référence : NE2310600_1
Terrain proposé par un partenaire foncier selon disponibilités et autorisation de publicité au prix de 150 000 €. Hors droit d'enregistrement et frais de notaire. Terrain + Maison proposés au prix de 220 000 € (Hors branchements et raccordements, papiers peints, peintures, revêtement de sol dans les chambres. Tarif modifiable sans préavis). Etiquette énergie : A. Différents modèles disponibles pour ce terrain. Assurances et garanties du constructeur (RC professionnelle, décennale, dommage ouvrage, garantie de remboursement de l'acompte, livraison à prix et délai convenu) : https://www.maisons-france-confort.fr/mentions-legales/. HEXAOM Services est enregistré auprès de l'ORIAS en tant que Courtier en financement, Niveau 1, sous le numéro 14001345.

Les informations sur les risques auxquels ce bien est exposé sont disponibles sur le site Géorisques : www.georisques.gouv.fr


Prix
  • Prix total : 370 000 €
  • Prix du modèle de maison : 220 000 €
  • Prix du terrain : 150 000 €

Terrain
  • Surface : 602 m²

Maison
  • Surface : 98 m²
  • Pièces : 4
  • Chambres : 3

  • Être rappelé par un conseiller
  • Demander plus d’infos
  • Demande d'information
Vidauban (83550)

Programmes à proximité

Le Patio des Lys
Le Patio des Lys
Le Muy (83490)

Appartements de 3 à 4 pièces
Livraison 2ème trimestre 2027

Castanea
Castanea
La Garde-Freinet (83680)

Appartements de 2 à 4 pièces
Livraison 1er trimestre 2028

FLEUR DU NIL
FLEUR DU NIL
Draguignan (83300)

Appartement
Livraison 4ème trimestre 2026

Les Terrasses du Dragon
Les Terrasses du Dragon
Draguignan (83300)

Appartements de 2 à 3 pièces
Livraison 2ème trimestre 2028

Le domaine de la Fée
Le domaine de la Fée
Draguignan (83300)

Appartements de 2 pièces
Livraison 2ème trimestre 2026

Les Jardins de Novaia
Les Jardins de Novaia
Draguignan (83300)

Appartements de 2 à 3 pièces
Livraison 3ème trimestre 2028

Contacter MAISONS FRANCE CONFORT pour recevoir plus d'informations

Remplissez le formulaire ci-dessous, vos informations sont transmises directement au constructeur qui vous contactera par email ou par téléphone afin de traiter votre demande. En savoir plus.

Voir tous nos programmes immobiliers neufs à Vidauban