Maison neuve, 95 m² - Vers-Pont-du-Gard (30210)

337 800 €
Vers-Pont-du-Gard (30210)

Proposée par MAISONS BALENCY – 5 pièces - 3 chambres - terrain 684 m²

MAISONS BALENCY
MAISONS BALENCY
(36 avis)
  • Demande d'information
MAISON À CONSTRUIRE : ceci est une annonce d'une maison neuve à construire.
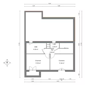
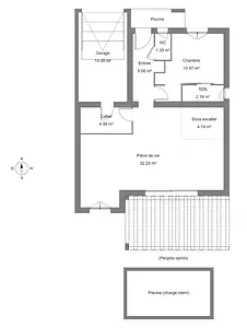
VENTE : maison de 5 pièces (95 m²) à Vers-Pont-du-Gard
Idéalement située - À Vers-Pont-du-Gard (30210), maison neuve à vendre de 5 pièces, 2 niveaux, 95 m² de surface sur 684 m² de terrain. Elle comporte trois chambres, une cuisine et deux salles de bains.
Proche écoles, crèche, tennis, boulangerie, commerce et bureau de poste. Autoroute A9 et nationale N100 accessibles à 7 km. Mer Méditerranée à 48 km. Nîmes à 21 km.
Cette maison de 5 pièces est proposée à l'achat pour 337 800 €.
Contactez notre agence (PIEL Pascale : O6-O1-26-64-83) pour toute information sur la maison, sur les modalités de vente ou sur les démarches à suivre. Maisons Balency Uzès est là pour vous accompagner dans tous vos projets immobiliers.
Référence : PP2247962_1
Terrain proposé par un partenaire foncier selon disponibilités et autorisation de publicité au prix de 119 000 €. Hors droit d'enregistrement et frais de notaire. Maison proposée, avec un contrat de construction de maison individuelle, dans le cadre de la loi du 19/12/1990, au prix de 218 800 € (Hors branchements et raccordements, papiers peints, peintures, revêtement de sol dans les chambres, qui sont chiffrés dans les travaux qui restent à charge du client. Tarif modifiable sans préavis). Étiquette énergie : A. Différents modèles disponibles pour ce terrain. Assurances et garanties du constructeur comprises (RC professionnelle, décennale, dommage ouvrage).

Les informations sur les risques auxquels ce bien est exposé sont disponibles sur le site Géorisques : www.georisques.gouv.fr


Prix
  • Prix total : 337 800 €
  • Prix du modèle de maison : 218 800 €
  • Prix du terrain : 119 000 €

Terrain
  • Surface : 684 m²

Maison
  • Surface : 95 m²
  • Pièces : 5
  • Chambres : 3
  • Garage : 1

  • Être rappelé par un conseiller
  • Demander plus d’infos
  • Demande d'information
Vers-Pont-du-Gard (30210)

Programmes à proximité

INIMA
INIMA
Uzès (30700)

Appartements de 2 à 3 pièces
Livraison 4ème trimestre 2027

Aux portes de Nîmes
Aux portes de Nîmes
Rodilhan (30230)

Appartements de 2 à 3 pièces

Le Patio des Berges
Le Patio des Berges
Beaucaire (30300)

Appartements de 2 à 5 pièces
Livraison 2ème trimestre 2028

LE JARDIN D'ODETTE
LE JARDIN D'ODETTE
Nîmes (30900)

Appartements de 2 pièces
Livraison 2ème trimestre 2026

L'Orée du Parc
L'Orée du Parc
Nîmes (30000)

Appartements de 1 à 4 pièces

Les Terrasses du Colisée
Les Terrasses du Colisée
Nîmes (30000)

Appartements de 3 à 4 pièces
Livraison 1er trimestre 2025

Contacter MAISONS BALENCY pour recevoir plus d'informations

Remplissez le formulaire ci-dessous, vos informations sont transmises directement au constructeur qui vous contactera par email ou par téléphone afin de traiter votre demande. En savoir plus.

Voir tous nos programmes immobiliers neufs à Vers-Pont-du-Gard