Maison neuve, 90 m² - Vermelles (62980)

265 000 €
Vermelles (62980)

Proposée par MAISONS FRANCE CONFORT – 5 pièces - 3 chambres - terrain 744 m²

MAISONS FRANCE CONFORT
MAISONS FRANCE CONFORT
(188 avis)
  • Demande d'information
MAISON À CONSTRUIRE : ceci est une annonce d'une maison neuve à construire.
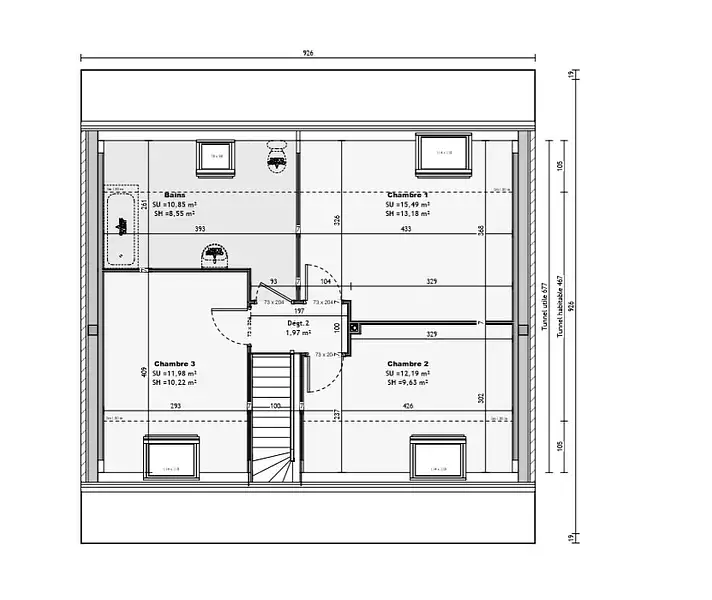
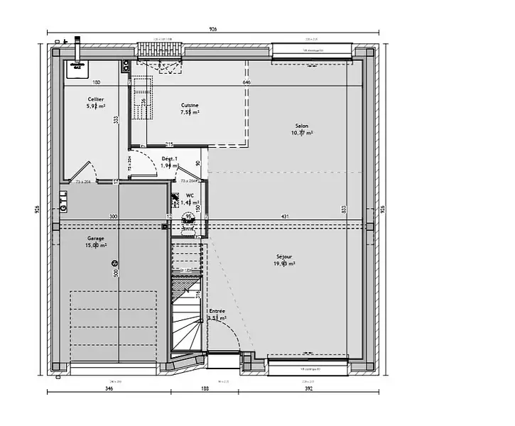
VENTE d'une maison de 5 pièces (90 m²) à Vermelles
Emplacement privilégié - À Vermelles (62980), maison neuve à vendre de 5 pièces, 2 niveaux, 90 m² de surface et 744 m² de terrain. Elle dispose de trois chambres, d'une cuisine et d'une salle de bains.
À dix minutes : gares, établissements scolaires, tennis, bibliothèque, commerces, boulangerie et bureau de poste. Accès autoroutes et nationales à 10 km. Belgique à 28 km. Lille à 26 km.
Cette maison de 5 pièces est à vendre pour la somme de 265 000 €.
N'hésitez pas à prendre contact avec notre agence (Sylvaine CHARLET : 06-77-74-11-09) pour obtenir de plus amples informations sur la maison.
Référence : SC2306843_3
Terrain proposé par un partenaire foncier selon disponibilités et autorisation de publicité au prix de 99 101 €. Hors droit d'enregistrement et frais de notaire. Terrain + Maison proposés au prix de 165 899 € (Hors branchements et raccordements, papiers peints, peintures, revêtement de sol dans les chambres. Tarif modifiable sans préavis). Etiquette énergie : A. Différents modèles disponibles pour ce terrain. Assurances et garanties du constructeur (RC professionnelle, décennale, dommage ouvrage, garantie de remboursement de l'acompte, livraison à prix et délai convenu) : https://www.maisons-france-confort.fr/mentions-legales/. HEXAOM Services est enregistré auprès de l'ORIAS en tant que Courtier en financement, Niveau 1, sous le numéro 14001345.

Les informations sur les risques auxquels ce bien est exposé sont disponibles sur le site Géorisques : www.georisques.gouv.fr


Prix
  • Prix total : 265 000 €
  • Prix du modèle de maison : 165 899 €
  • Prix du terrain : 99 101 €

Terrain
  • Surface : 744 m²

Maison
  • Surface : 90 m²
  • Pièces : 5
  • Chambres : 3
  • Garage : 1

  • Être rappelé par un conseiller
  • Demander plus d’infos
  • Demande d'information
Vermelles (62980)

Programmes à proximité

Côté Centre
Côté Centre
Lens (62300)

Appartements de 2 à 3 pièces
Livraison 2ème trimestre 2028

L'Esquisse
L'Esquisse
Lens (62300)

Appartements de 2 à 4 pièces et maisons de 4 à 5 pièces
Livraison 2ème trimestre 2028

EQUILIBRE
EQUILIBRE
Béthune (62400)

Appartements de 1 à 5 pièces
Livraison 2ème trimestre 2028

Les Balcons de Jade
Les Balcons de Jade
Laventie (62840)

Appartements de 3 à 4 pièces
Livraison 4ème trimestre 2027

ESPRIT COTTAGE
ESPRIT COTTAGE
Phalempin (59133)

Appartements de 4 pièces
Livraison 4ème trimestre 2027

En plein cœur de ville
En plein cœur de ville
Sainte-Catherine (62223)

Appartements de 2 à 4 pièces et maisons de 4 à 5 pièces
Livraison 3ème trimestre 2027

Contacter MAISONS FRANCE CONFORT pour recevoir plus d'informations

Remplissez le formulaire ci-dessous, vos informations sont transmises directement au constructeur qui vous contactera par email ou par téléphone afin de traiter votre demande. En savoir plus.

Voir tous nos programmes immobiliers neufs à Vermelles