Maison neuve, 105 m² - Vénissieux (69200)
299 900 €
Vénissieux (69200)
Proposée par MAISONS ALAIN MÉTRAL – 5 pièces - terrain 300 m²
|
|
| Maisons Alain Métral |
- Demande d'information
- Prendre rendez-vous
MAISON À CONSTRUIRE : ceci est une annonce d'une maison neuve à construire.
Maisons Alain Métral vous propose en exclusivité avec Nestenn Vénissieux ce projet de construction situé sur la commune de Vénissieux.
Venez découvrir ce terrain de 300 m² sans vis à vis, plat et déjà viabilisé (2 lots disponibles).
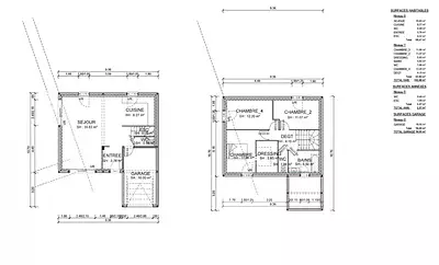
Nous avons imaginé une maison mitoyenne de 105 m² + garage de 16 m².
Vous retrouverez une surface de séjour de près de 50 m² au rdc + 3 chambres à l'étage de 18 m² (avec dressing), 12 m² et 11 m² ainsi qu'une salle de bains et un WC indépendant.
Les prestations seront à définir ensemble en fonction de vos envies (chauffage, carrelage, disposition intérieure de la maison ... ).
Terrain en accord avec notre partenaire foncier, sous réserve de disponibilité. Prix hors frais de notaire, Hors déco intérieur.
Photos non contractuelles. Projet conforme à la RE2020.
Les informations sur les risques auxquels ce bien est exposé sont disponibles sur le site Géorisques : www.georisques.gouv.fr
Venez découvrir ce terrain de 300 m² sans vis à vis, plat et déjà viabilisé (2 lots disponibles).
Nous avons imaginé une maison mitoyenne de 105 m² + garage de 16 m².
Vous retrouverez une surface de séjour de près de 50 m² au rdc + 3 chambres à l'étage de 18 m² (avec dressing), 12 m² et 11 m² ainsi qu'une salle de bains et un WC indépendant.
Les prestations seront à définir ensemble en fonction de vos envies (chauffage, carrelage, disposition intérieure de la maison ... ).
Terrain en accord avec notre partenaire foncier, sous réserve de disponibilité. Prix hors frais de notaire, Hors déco intérieur.
Photos non contractuelles. Projet conforme à la RE2020.
Les informations sur les risques auxquels ce bien est exposé sont disponibles sur le site Géorisques : www.georisques.gouv.fr
- Prix
-
- Prix total : 299 900 €
- Prix du modèle de maison : 143 200 €
- Prix du terrain : 156 700 €
- Terrain
-
- Surface : 300 m²
- Viabilisé : Oui.
- Maison
-
- Surface : 105 m²
- Pièces : 5
- Être rappelé par un conseiller
- Demander plus d’infos
- Demande d'information
Vénissieux (69200)
Maisons à proximité
Maison neuve, 95 m²
Vénissieux (69200)
Vénissieux (69200)
Maison de 6 pièces
Maison neuve, 120 m²
Vénissieux (69200)
Vénissieux (69200)
Maison de 6 pièces
Maison neuve, 95 m²
Vénissieux (69200)
Vénissieux (69200)
Maison de 6 pièces
Maison neuve, 105 m²
Vénissieux (69200)
Vénissieux (69200)
Maison de 5 pièces
Maison neuve, 115 m²
Corbas (69960)
Corbas (69960)
Maison de 4 pièces
Maison neuve, 125 m²
Feyzin (69320)
Feyzin (69320)
Maison de 6 pièces
Programmes à proximité
Pressensé Park
Vénissieux (69200)
Vénissieux (69200)
Appartements de 2 à 4 pièces
Livraison 4ème trimestre 2026
Le 349 - Moulin à vent
Vénissieux (69200)
Vénissieux (69200)
Appartements de 1 à 4 pièces
Livraison 2ème trimestre 2027
Patio Pressensé
Vénissieux (69200)
Vénissieux (69200)
Appartements de 4 pièces
Livraison 3ème trimestre 2025
L'Emeraude
Vénissieux (69200)
Vénissieux (69200)
Appartements de 2 à 4 pièces
Livraison 1er trimestre 2028
L'archipel
Vénissieux (69200)
Vénissieux (69200)
Appartements de 1 à 5 pièces
Livraison 1er trimestre 2026
SERENITY
Vénissieux (69200)
Vénissieux (69200)
Appartement de 1 pièce
Contacter MAISONS ALAIN MÉTRAL pour recevoir plus d'informations
Remplissez le formulaire ci-dessous, vos informations sont transmises directement au constructeur qui vous contactera par email ou par téléphone afin de traiter votre demande. En savoir plus.