Maison neuve, 100 m² - Trans-en-Provence (83720)

345 000 €
Trans-en-Provence (83720)

Proposée par MAISONS FRANCE CONFORT – 5 pièces - 4 chambres - terrain 700 m²

MAISONS FRANCE CONFORT
MAISONS FRANCE CONFORT
(244 avis)
  • Demande d'information
MAISON À CONSTRUIRE : ceci est une annonce d'une maison neuve à construire.
Votre villa neuve clé en main à 345 000 euros à Trans en Provence
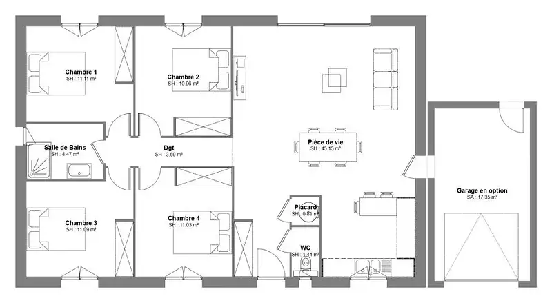
Maisons France Confort agence de Trans en Provence vous propose une belle villa de plain-pied située dans un environnement de qualité, à deux pas des commodités, sur un terrain de 700m² offrant une exposition plein sud.
Confort, modernité et performance :
Grand espace de vie lumineux
Cuisine ouverte contemporaine
4 chambres spacieuses
Une salle de bains moderne idéale pour toute la famille
Volets roulants électriques
Système domotique pour un quotidien simplifié
Performance énergétique RE2020 : Grâce à une isolation renforcée et un chauffage économique, cette villa vous assure un confort optimal tout au long de l'année.
Projet clé en main à 345 000 euros Ce prix comprend le terrain, la maison et les frais de raccordement.
Pour une étude personnalisée, contactez Véronique CHAUVET au O6 28 31 67 99
Maisons France Confort, constructeur familial depuis 1919. Leader en France de la maison individuelle sur mesure.
Référence : VC2343099_1
Terrain proposé par un partenaire foncier selon disponibilités et autorisation de publicité au prix de 139 000 €. Hors droit d'enregistrement et frais de notaire. Terrain + Maison proposés au prix de 206 000 € (Hors branchements et raccordements, papiers peints, peintures, revêtement de sol dans les chambres. Tarif modifiable sans préavis). Etiquette énergie : A. Différents modèles disponibles pour ce terrain. Assurances et garanties du constructeur (RC professionnelle, décennale, dommage ouvrage, garantie de remboursement de l'acompte, livraison à prix et délai convenu) : https://www.maisons-france-confort.fr/mentions-legales/. HEXAOM Services est enregistré auprès de l'ORIAS en tant que Courtier en financement, Niveau 1, sous le numéro 14001345.

Les informations sur les risques auxquels ce bien est exposé sont disponibles sur le site Géorisques : www.georisques.gouv.fr


Prix
  • Prix total : 345 000 €
  • Prix du modèle de maison : 206 000 €
  • Prix du terrain : 139 000 €

Terrain
  • Surface : 700 m²

Maison
  • Surface : 100 m²
  • Pièces : 5
  • Chambres : 4
  • Garage : 1

  • Être rappelé par un conseiller
  • Demander plus d’infos
  • Demande d'information
Trans-en-Provence (83720)

Programmes à proximité

FLEUR DU NIL
FLEUR DU NIL
Draguignan (83300)

Appartement
Livraison 4ème trimestre 2026

Les Terrasses du Dragon
Les Terrasses du Dragon
Draguignan (83300)

Appartements de 2 à 3 pièces
Livraison 2ème trimestre 2028

Le domaine de la Fée
Le domaine de la Fée
Draguignan (83300)

Appartements de 2 à 3 pièces
Livraison 2ème trimestre 2026

Les Jardins de Novaia
Les Jardins de Novaia
Draguignan (83300)

Appartements de 2 à 3 pièces
Livraison 3ème trimestre 2028

Le Domaine des Tourdres
Le Domaine des Tourdres
Draguignan (83300)

Appartements de 3 à 4 pièces
Livraison 3ème trimestre 2029

Le Patio des Lys
Le Patio des Lys
Le Muy (83490)

Appartements de 3 à 4 pièces
Livraison 2ème trimestre 2027

Contacter MAISONS FRANCE CONFORT pour recevoir plus d'informations

Remplissez le formulaire ci-dessous, vos informations sont transmises directement au constructeur qui vous contactera par email ou par téléphone afin de traiter votre demande. En savoir plus.

Voir tous nos programmes immobiliers neufs à Trans-en-Provence