Maison neuve, 94 m² - Trans-en-Provence (83720)

365 000 €
Trans-en-Provence (83720)

Proposée par MAISONS FRANCE CONFORT – 4 pièces - 3 chambres - terrain 699 m²

MAISONS FRANCE CONFORT
MAISONS FRANCE CONFORT
(244 avis)
  • Demande d'information
MAISON À CONSTRUIRE : ceci est une annonce d'une maison neuve à construire.
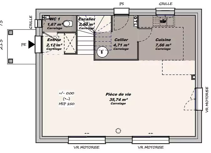
Cette maison s'adaptera parfaitement à un terrain en restanques ou une faible emprise au sol et vous permettra de réaliser des aménagements fonctionnels qui s'adapteront parfaitement à votre mode de vie. Elle vous offrira une surface d'environ 100m² habitable se composant : Au RDC, d'une entrée avec WC séparé, une cuisine ouverte sur séjour-salle à manger et un cellier / Au 1er étage, d'un palier desservant une SDB avec douche, baignoire, meuble double vasque et WC suspendu ainsi que 3 chambres et 1 bureau.
CONTACTEZ Alice GELOSA au 06 28 31 68 00 pour plus de renseignements - Maisons France Confort Trans en Provence
Référence : AG2394093_2
Terrain proposé par un partenaire foncier selon disponibilités et autorisation de publicité au prix de 139 000 €. Hors droit d'enregistrement et frais de notaire. Terrain + Maison proposés au prix de 226 000 € (Hors branchements et raccordements, papiers peints, peintures, revêtement de sol dans les chambres. Tarif modifiable sans préavis). Etiquette énergie : A. Différents modèles disponibles pour ce terrain. Assurances et garanties du constructeur (RC professionnelle, décennale, dommage ouvrage, garantie de remboursement de l'acompte, livraison à prix et délai convenu) : https://www.maisons-france-confort.fr/mentions-legales/. HEXAOM Services est enregistré auprès de l'ORIAS en tant que Courtier en financement, Niveau 1, sous le numéro 14001345.

Les informations sur les risques auxquels ce bien est exposé sont disponibles sur le site Géorisques : www.georisques.gouv.fr


Prix
  • Prix total : 365 000 €
  • Prix du modèle de maison : 226 000 €
  • Prix du terrain : 139 000 €

Terrain
  • Surface : 699 m²

Maison
  • Surface : 94 m²
  • Pièces : 4
  • Chambres : 3

  • Être rappelé par un conseiller
  • Demander plus d’infos
  • Demande d'information
Trans-en-Provence (83720)

Programmes à proximité

FLEUR DU NIL
FLEUR DU NIL
Draguignan (83300)

Appartement
Livraison 4ème trimestre 2026

Les Terrasses du Dragon
Les Terrasses du Dragon
Draguignan (83300)

Appartements de 2 à 3 pièces
Livraison 2ème trimestre 2028

Le domaine de la Fée
Le domaine de la Fée
Draguignan (83300)

Appartements de 2 pièces
Livraison 2ème trimestre 2026

Les Jardins de Novaia
Les Jardins de Novaia
Draguignan (83300)

Appartements de 2 à 3 pièces
Livraison 3ème trimestre 2028

Le Domaine des Tourdres
Le Domaine des Tourdres
Draguignan (83300)

Appartements de 3 à 4 pièces
Livraison 3ème trimestre 2029

Le Patio des Lys
Le Patio des Lys
Le Muy (83490)

Appartements de 3 à 4 pièces
Livraison 2ème trimestre 2027

Contacter MAISONS FRANCE CONFORT pour recevoir plus d'informations

Remplissez le formulaire ci-dessous, vos informations sont transmises directement au constructeur qui vous contactera par email ou par téléphone afin de traiter votre demande. En savoir plus.

Voir tous nos programmes immobiliers neufs à Trans-en-Provence