Maison neuve, 115 m² - Tourrettes (83440)

489 000 €
Tourrettes (83440)

Proposée par MAISONS DE MANON – 4 pièces - 4 chambres - terrain 1 500 m²

MAISONS DE MANON
MAISONS DE MANON
(92 avis)
  • Demande d'information
MAISON À CONSTRUIRE : ceci est une annonce d'une maison neuve à construire.
Tourrettes de Fayence (83440) a coté du golf de TERRE BLANCHE , au calme , ( tout a l'égout et viabilités Réalisées) .
Frederic CEFFIS (Maisons de Manon Callian) vous présente cette opération
.
Elle est proposée pour un budget global de 489 000 € ( + 18800 de frais de notaire) .
. Maisons de Manon (GROUPE HEXAOM) Permis accepté rapidement dans le cadre du lotissement obtenu .
Terain proposé en accord avec notre partenaire foncier (net vendeur a 235000€ )
Annonce proposée par un Agent Commercial Partenaire.
Référence : FC2281558_1
Terrain proposé par un partenaire foncier selon disponibilités et autorisation de publicité au prix de 235 000 €. Hors droit d'enregistrement et frais de notaire. Maison proposée, avec un contrat de construction de maison individuelle, dans le cadre de la loi du 19/12/1990, au prix de 254 000 € (Hors branchements et raccordements, papiers peints, peintures, revêtement de sol dans les chambres, qui sont chiffrés dans les travaux qui restent à charge du client. Tarif modifiable sans préavis). Étiquette énergie : A. Différents modèles disponibles pour ce terrain. Assurances et garanties du constructeur comprises (RC professionnelle, décennale, dommage ouvrage).

Les informations sur les risques auxquels ce bien est exposé sont disponibles sur le site Géorisques : www.georisques.gouv.fr


Prix
  • Prix total : 489 000 €
  • Prix du modèle de maison : 254 000 €
  • Prix du terrain : 235 000 €

Terrain
  • Surface : 1 500 m²

Maison
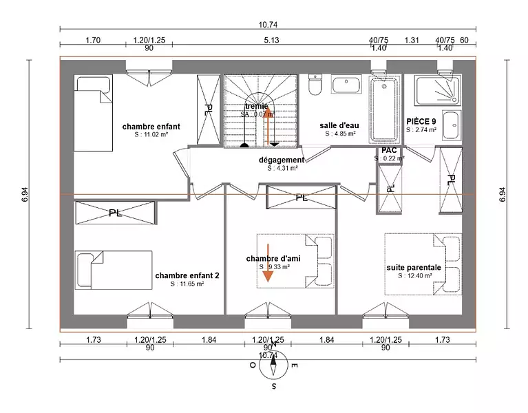
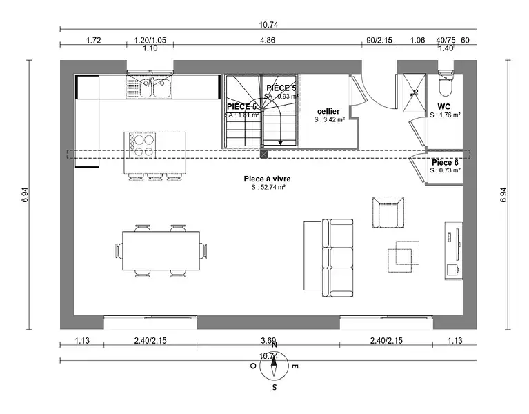
  • Surface : 115 m²
  • Pièces : 4
  • Chambres : 4

  • Être rappelé par un conseiller
  • Demander plus d’infos
  • Demande d'information
Tourrettes (83440)

Programmes à proximité

Coté Village
Coté Village
Auribeau-sur-Siagne (06810)

Appartements de 1 à 4 pièces
Livraison 2ème trimestre 2027

HAUTS D'AURIBEAU VILLAS TOITS
HAUTS D'AURIBEAU VILLAS TOITS
Auribeau-sur-Siagne (06810)

Appartements de 4 pièces
Livraison 2ème trimestre 2026

LES HAUTS D'AURIBEAU BASTIDES
LES HAUTS D'AURIBEAU BASTIDES
Auribeau-sur-Siagne (06810)

Appartement de 4 pièces
Livraison 1er trimestre 2026

LES HAUTS D'AURIBEAU
LES HAUTS D'AURIBEAU
Auribeau-sur-Siagne (06810)

Appartement de 3 pièces
Livraison 2ème trimestre 2026

VILLA ROSALIA
VILLA ROSALIA
Grasse (06130)

Appartements de 3 à 4 pièces
Livraison 4ème trimestre 2026

TERRA ESTRELLA
TERRA ESTRELLA
Puget-sur-Argens (83480)

Appartements de 2 à 4 pièces et maison de 4 pièces
Livraison 4ème trimestre 2027

Contacter MAISONS DE MANON pour recevoir plus d'informations

Remplissez le formulaire ci-dessous, vos informations sont transmises directement au constructeur qui vous contactera par email ou par téléphone afin de traiter votre demande. En savoir plus.

Voir tous nos programmes immobiliers neufs à Tourrettes