Maison neuve, 100 m² - Tourrettes (83440)

490 000 €
Tourrettes (83440)

Proposée par MAISONS DE MANON – 4 pièces - 4 chambres - terrain 1 500 m²

MAISONS DE MANON
MAISONS DE MANON
(95 avis)
  • Demande d'information
MAISON À CONSTRUIRE : ceci est une annonce d'une maison neuve à construire.
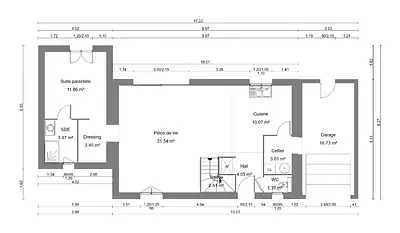
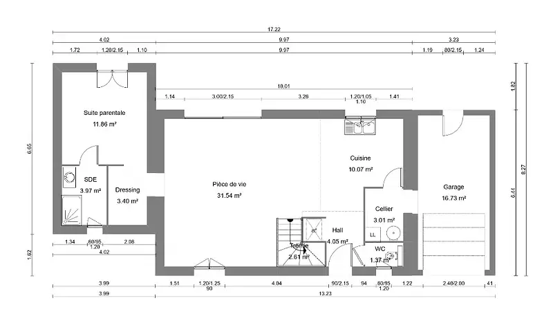
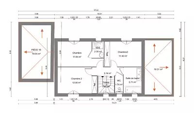
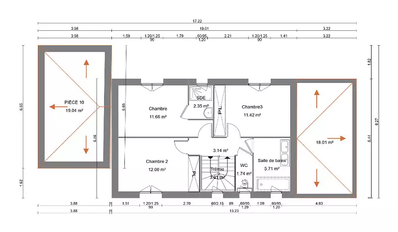
Les Maisons de Manon de Callian vous propose sur ce terrain diverses réalisations possible notamment une réalisation sur mesures de 120m² habitable à étage partiel. Il dispose de 4 chambres dont une suite parentale au rez de chaussée, trois salles d'eaux, un cellier attenant à un garage accolé ainsi qu'une belle pièce orienté sud à partir de 490 000€TTC (terrain inclus, hors frais de notaire, hors frais annexes, hors cuisine, hors peinture, garage et terrasse en option). Vous disposerez de nombreuses prestations de qualités, carrelage grand format, WC suspendu, chauffage réversible, domotique...et d'un réel accompagnement tout au long du projet. Pour plus d'informations contactez votre conseiller commercial des Maisons de Manon de Callian Mr Maugras Alexandre au O679268866
Annonce proposée par un Agent Commercial Partenaire.
Référence : AM2337111_2
Terrain proposé par un partenaire foncier selon disponibilités et autorisation de publicité au prix de 235 000 €. Hors droit d'enregistrement et frais de notaire. Terrain + Maison proposés au prix de 255 000 € (Hors branchements et raccordements, papiers peints, peintures, revêtement de sol dans les chambres. Tarif modifiable sans préavis). Etiquette énergie : A. Différents modèles disponibles pour ce terrain. Assurances et garanties du constructeur (RC professionnelle, décennale, dommage ouvrage, garantie de remboursement de l'acompte, livraison à prix et délai convenu) : https://www.maisons-de-manon.fr/informations-legales/. HEXAOM Services est enregistré auprès de l'ORIAS en tant que Courtier en financement, Niveau 1, sous le numéro 14001345.

Les informations sur les risques auxquels ce bien est exposé sont disponibles sur le site Géorisques : www.georisques.gouv.fr


Prix
  • Prix total : 490 000 €
  • Prix du modèle de maison : 255 000 €
  • Prix du terrain : 235 000 €

Terrain
  • Surface : 1 500 m²

Maison
  • Surface : 100 m²
  • Pièces : 4
  • Chambres : 4
  • Garage : 1

  • Être rappelé par un conseiller
  • Demander plus d’infos
  • Demande d'information
Tourrettes (83440)

Programmes à proximité

Coté Village
Coté Village
Auribeau-sur-Siagne (06810)

Appartements de 2 à 4 pièces
Livraison 2ème trimestre 2027

HAUTS D'AURIBEAU VILLAS TOITS
HAUTS D'AURIBEAU VILLAS TOITS
Auribeau-sur-Siagne (06810)

Appartement de 4 pièces
Livraison 2ème trimestre 2026

LES HAUTS D'AURIBEAU
LES HAUTS D'AURIBEAU
Auribeau-sur-Siagne (06810)

Appartement de 3 pièces
Livraison 2ème trimestre 2026

LES HAUTS D'AURIBEAU BASTIDES
LES HAUTS D'AURIBEAU BASTIDES
Auribeau-sur-Siagne (06810)

Appartement de 4 pièces
Livraison 1er trimestre 2026

VILLA ROSALIA
VILLA ROSALIA
Grasse (06130)

Appartements de 3 à 4 pièces
Livraison 4ème trimestre 2026

TERRA ESTRELLA
TERRA ESTRELLA
Puget-sur-Argens (83480)

Appartements de 2 à 4 pièces et maison de 4 pièces
Livraison 4ème trimestre 2027

Contacter MAISONS DE MANON pour recevoir plus d'informations

Remplissez le formulaire ci-dessous, vos informations sont transmises directement au constructeur qui vous contactera par email ou par téléphone afin de traiter votre demande. En savoir plus.

Voir tous nos programmes immobiliers neufs à Tourrettes