Maison neuve, 90 m² - Thaon (14610)

252 000 €
Thaon (14610)

Proposée par MAISONS FRANCE CONFORT – 5 pièces - 4 chambres - terrain 433 m²

MAISONS FRANCE CONFORT
MAISONS FRANCE CONFORT
  • Demande d'information
MAISON À CONSTRUIRE : ceci est une annonce d'une maison neuve à construire.
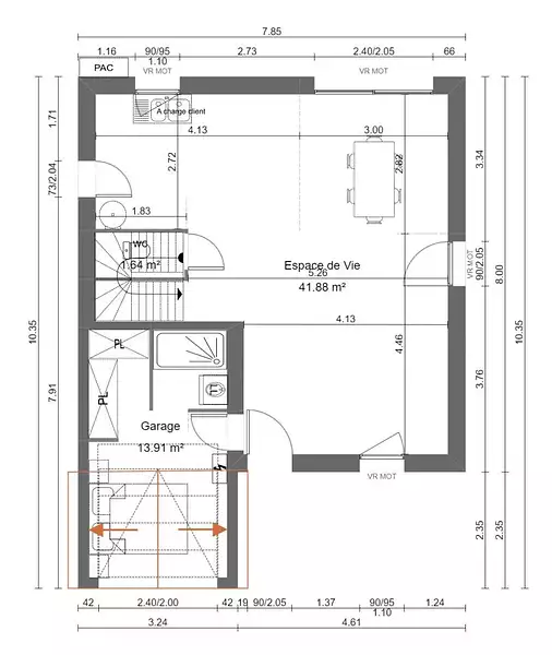
VENTE d'une maison de 5 pièces (90 m²) à Thaon
Idéalement située - À découvrir à Thaon (14610) : maison neuve 5 pièces en vente. 2 niveaux, surface de 90 m² et 433 m² de terrain. Elle compte quatre chambres, une cuisine et deux salles de bains.
À dix minutes : gares (Saint-Germain-en-Laye Bel-Air-Fourqueux T13 et Bretteville-Norrey), École Primaire Yvonne Guégan, tennis, boulangerie et épicerie. Accès nationales N13 et N814 à 8 km. Manche à 10 km. Caen à 10 km.
Cette maison de 5 pièces est à vendre pour la somme de 252 000 €.
.
Annonce proposée par un Agent Commercial Partenaire.
Référence : JS2333516_9
Terrain proposé par un partenaire foncier selon disponibilités et autorisation de publicité au prix de 102 000 €. Hors droit d'enregistrement et frais de notaire. Maison proposée, avec un contrat de construction de maison individuelle, dans le cadre de la loi du 19/12/1990, au prix de 150 000 € (Hors branchements et raccordements, papiers peints, peintures, revêtement de sol dans les chambres, qui sont chiffrés dans les travaux qui restent à charge du client. Tarif modifiable sans préavis). Étiquette énergie : A. Différents modèles disponibles pour ce terrain. Assurances et garanties du constructeur comprises (RC professionnelle, décennale, dommage ouvrage).

Les informations sur les risques auxquels ce bien est exposé sont disponibles sur le site Géorisques : www.georisques.gouv.fr


Prix
  • Prix total : 252 000 €
  • Prix du modèle de maison : 150 000 €
  • Prix du terrain : 102 000 €

Terrain
  • Surface : 433 m²

Maison
  • Surface : 90 m²
  • Pièces : 5
  • Chambres : 4
  • Garage : 1

  • Être rappelé par un conseiller
  • Demander plus d’infos
  • Demande d'information
Thaon (14610)

Programmes à proximité

VILLA EMERAUDE
VILLA EMERAUDE
Epron (14610)

Appartements de 2 à 4 pièces
Livraison 3ème trimestre 2026

Epilogue
Epilogue
Carpiquet (14650)

Appartement de 4 pièces
Livraison 4ème trimestre 2026

LES REFLETS DE NACRE
LES REFLETS DE NACRE
Courseulles-sur-Mer (14470)

Appartements de 2 à 3 pièces
Livraison 3ème trimestre 2027

SAPHIR
SAPHIR
Langrune-sur-Mer (14830)

Appartements de 2 à 4 pièces
Livraison 4ème trimestre 2027

Coeur des Crêtes PA7
Coeur des Crêtes PA7
Bretteville-sur-Odon (14760)

Appartements de 1 à 3 pièces
Livraison 4ème trimestre 2026

L'EDEN
L'EDEN
Caen (14000)

Appartements de 2 à 4 pièces
Livraison 2ème trimestre 2027

Contacter MAISONS FRANCE CONFORT pour recevoir plus d'informations

Remplissez le formulaire ci-dessous, vos informations sont transmises directement au constructeur qui vous contactera par email ou par téléphone afin de traiter votre demande. En savoir plus.

Voir tous nos programmes immobiliers neufs à Thaon