Maison neuve, 80 m² - Sorigny (37250)

240 389 €
Sorigny (37250)

Proposée par CONSTRUCTIONS IDEALE DEMEURE – 4 pièces - 3 chambres - terrain 593 m²

CONSTRUCTIONS IDEALE DEMEURE
CONSTRUCTIONS IDEALE DEMEURE
  • Demande d'information
MAISON À CONSTRUIRE : ceci est une annonce d'une maison neuve à construire.
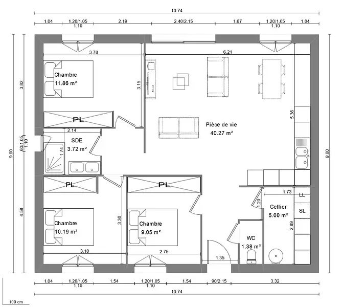
Belle maison plain pied de 80m² habitable, offrant une pièce à vivre de plus de 40 m², un sas d'entrée avec placard, 3 belles chambres, une grande salle d'eau avec douche, WC séparé en fond de dégagement.
CONSTRUCTIONS IDEALE DEMEURE a sélectionné avec un partenaire foncier un terrain pour construire cette maison.
Je reste disponible pour toutes demandes de renseignements, n'hésitez pas me contacter : Stéphane Digneton : °6.64.92.89.69
Référence : SD2266325_1
Terrain proposé par un partenaire foncier selon disponibilités et autorisation de publicité au prix de 105 389 €. Hors droit d'enregistrement et frais de notaire. Maison proposée, avec un contrat de construction de maison individuelle, dans le cadre de la loi du 19/12/1990, au prix de 135 000 € (Hors branchements et raccordements, papiers peints, peintures, revêtement de sol dans les chambres, qui sont chiffrés dans les travaux qui restent à charge du client. Tarif modifiable sans préavis). Étiquette énergie : A. Différents modèles disponibles pour ce terrain. Assurances et garanties du constructeur comprises (RC professionnelle, décennale, dommage ouvrage).

Les informations sur les risques auxquels ce bien est exposé sont disponibles sur le site Géorisques : www.georisques.gouv.fr


Prix
  • Prix total : 240 389 €
  • Prix du modèle de maison : 135 000 €
  • Prix du terrain : 105 389 €

Terrain
  • Surface : 593 m²

Maison
  • Surface : 80 m²
  • Pièces : 4
  • Chambres : 3

  • Être rappelé par un conseiller
  • Demander plus d’infos
  • Demande d'information
Sorigny (37250)

Programmes à proximité

CALICIA
CALICIA
Sorigny (37250)

Appartements de 1 à 3 pièces
Livraison 1er trimestre 2027

Verdéa
Verdéa
Joué-lès-Tours (37300)

Appartements de 1 à 2 pièces
Livraison 2ème trimestre 2027

Coeur de Ville
Coeur de Ville
Joué-lès-Tours (37300)

Appartements de 2 à 5 pièces
Livraison 4ème trimestre 2026

My Campus Jean Jaurès
My Campus Jean Jaurès
Joué-lès-Tours (37300)

Appartement de 1 pièce
Livraison 4ème trimestre 2025

APPARTEMENT TERRASSE/LIBERTE
APPARTEMENT TERRASSE/LIBERTE
La Riche (37520)

Appartement de 4 pièces
Livraison 3ème trimestre 2024

Les Dryades
Les Dryades
La Riche (37520)

Appartements de 3 à 4 pièces
Livraison 3ème trimestre 2025

Contacter CONSTRUCTIONS IDEALE DEMEURE pour recevoir plus d'informations

Remplissez le formulaire ci-dessous, vos informations sont transmises directement au constructeur qui vous contactera par email ou par téléphone afin de traiter votre demande. En savoir plus.

Voir tous nos programmes immobiliers neufs à Sorigny