Maison neuve, 130 m² - Sorgues (84700)

420 000 €
Sorgues (84700)

Proposée par MAISONS FRANCE CONFORT – 5 pièces - 5 chambres - terrain 900 m²

MAISONS FRANCE CONFORT
MAISONS FRANCE CONFORT
(153 avis)
  • Demande d'information
MAISON À CONSTRUIRE : ceci est une annonce d'une maison neuve à construire.
L'agence Maisons France Confort du Pontet vous propose, en accord avec son partenaire foncier et en exclusivité ce joli terrain de 900m² sur la commune de Sorgues.
Sorgues se situe à 10 minutes d'Avignon avec accès a l autoroute a 10mn .
Le terrain est exposé plein sud, il est viabilisés et se situe dans une zone très calme tout proche du centre ville.
Vous trouverez dans les alentours un hôpital, un centre commercial, un pôle santé, une école, collège, arrêt de bus etc...
votre villa personnalisée étage belles prestation
Pour plus d'informations, n'hésitez à contacter Lionel Montagne de l'agence de Maisons France Confort Le Pontet au O64897O812
Référence : LM2315509_3
Terrain proposé par un partenaire foncier selon disponibilités et autorisation de publicité au prix de 175 000 €. Hors droit d'enregistrement et frais de notaire. Terrain + Maison proposés au prix de 245 000 € (Hors branchements et raccordements, papiers peints, peintures, revêtement de sol dans les chambres. Tarif modifiable sans préavis). Etiquette énergie : A. Différents modèles disponibles pour ce terrain. Assurances et garanties du constructeur (RC professionnelle, décennale, dommage ouvrage, garantie de remboursement de l'acompte, livraison à prix et délai convenu) : https://www.maisons-france-confort.fr/mentions-legales/. HEXAOM Services est enregistré auprès de l'ORIAS en tant que Courtier en financement, Niveau 1, sous le numéro 14001345.

Les informations sur les risques auxquels ce bien est exposé sont disponibles sur le site Géorisques : www.georisques.gouv.fr


Prix
  • Prix total : 420 000 €
  • Prix du modèle de maison : 245 000 €
  • Prix du terrain : 175 000 €

Terrain
  • Surface : 900 m²

Maison
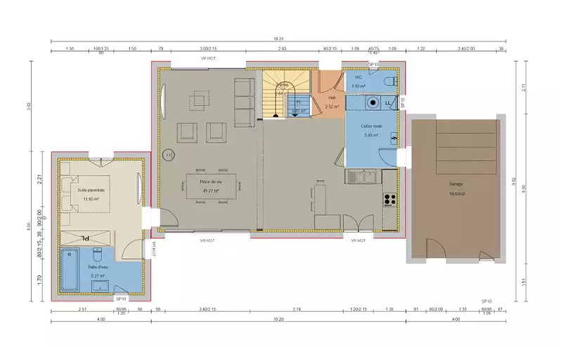
  • Surface : 130 m²
  • Pièces : 5
  • Chambres : 5

  • Être rappelé par un conseiller
  • Demander plus d’infos
  • Demande d'information
Sorgues (84700)

Programmes à proximité

ALICE PLATANA
ALICE PLATANA
Le Pontet (84130)

Appartements de 2 à 5 pièces
Livraison 4ème trimestre 2027

KOMEDIA
KOMEDIA
Avignon (84000)

Appartements de 2 à 5 pièces

CITY LIFE
CITY LIFE
Avignon (84000)

Appartement de 2 pièces

Canopée
Canopée
Avignon (84000)

Appartements de 2 à 4 pièces et maisons de 4 pièces
Livraison 4ème trimestre 2027

LE JARDIN DU PALAIS
LE JARDIN DU PALAIS
Avignon (84000)

Appartements de 2 à 5 pièces
Livraison 4ème trimestre 2027

LE CLOS DE LOUISE
LE CLOS DE LOUISE
Châteauneuf-de-Gadagne (84470)

Appartements de 2 à 3 pièces et maisons de 4 pièces
Livraison 2ème trimestre 2028

Contacter MAISONS FRANCE CONFORT pour recevoir plus d'informations

Remplissez le formulaire ci-dessous, vos informations sont transmises directement au constructeur qui vous contactera par email ou par téléphone afin de traiter votre demande. En savoir plus.

Voir tous nos programmes immobiliers neufs à Sorgues