Maison neuve, 149 m² - Sassenay (71530)
307 898 €
Sassenay (71530)
Proposée par BABEAU SEGUIN AGENCE DE CHALON-SUR-SAÔNE – CONSTRU – 5 pièces - 4 chambres - terrain 850 m²
|
|
| Babeau Seguin Agence de Chalon-sur-Saône – Constru |
- Demande d'information
- Prendre rendez-vous
MAISON À CONSTRUIRE : ceci est une annonce d'une maison neuve à construire.
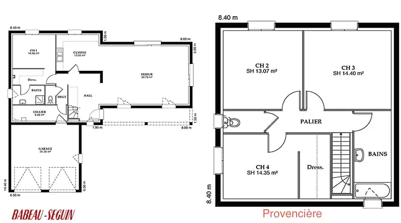
Sur ce terrain, nous vous proposons cette maison neuve, la Provencière, conçue par Babeau-Seguin, constructeur reconnu pour offrir le meilleur rapport qualité/prix du marché. Inspirée de la Provence, cette maison de 149 m² allie charme et modernité avec ses 4 chambres et ses 4 pièces.
La Provencière se distingue par son architecture élégante, avec une toiture disponible en 2 pans ou 4 pans, une dalle étage en béton pour une solidité accrue, et une tour avancée qui ajoute une touche de caractère unique. Une galerie complète ce tableau, offrant un espace extérieur agréable et convivial.
Les options les plus demandées par nos clients, telles que l'enduit bi-ton et les menuiseries en aluminium, sont disponibles pour personnaliser votre maison selon vos goûts et vos besoins.
Cette maison neuve est également basse consommation et conforme à la réglementation environnementale RE2020, garantissant des performances énergétiques optimales et un confort de vie exceptionnel.
Prestigieuse et attachante, la Provencière est idéale pour les terrains étroits, tout en conservant tous les avantages de ce modèle provençal. Avec une répartition des pièces idéale, la chambre parentale et les pièces de vie se trouvent au rez-de-chaussée, tandis que les autres chambres sont situées à l'étage.
Ne manquez pas cette opportunité unique de vivre dans une maison alliant tradition et modernité, conçue pour répondre à toutes vos attentes. Contactez-nous dès maintenant pour plus d'informations et pour découvrir cette maison d'exception.
Référence : 90901
Les informations sur les risques auxquels ce bien est exposé sont disponibles sur le site Géorisques : www.georisques.gouv.fr
La Provencière se distingue par son architecture élégante, avec une toiture disponible en 2 pans ou 4 pans, une dalle étage en béton pour une solidité accrue, et une tour avancée qui ajoute une touche de caractère unique. Une galerie complète ce tableau, offrant un espace extérieur agréable et convivial.
Les options les plus demandées par nos clients, telles que l'enduit bi-ton et les menuiseries en aluminium, sont disponibles pour personnaliser votre maison selon vos goûts et vos besoins.
Cette maison neuve est également basse consommation et conforme à la réglementation environnementale RE2020, garantissant des performances énergétiques optimales et un confort de vie exceptionnel.
Prestigieuse et attachante, la Provencière est idéale pour les terrains étroits, tout en conservant tous les avantages de ce modèle provençal. Avec une répartition des pièces idéale, la chambre parentale et les pièces de vie se trouvent au rez-de-chaussée, tandis que les autres chambres sont situées à l'étage.
Ne manquez pas cette opportunité unique de vivre dans une maison alliant tradition et modernité, conçue pour répondre à toutes vos attentes. Contactez-nous dès maintenant pour plus d'informations et pour découvrir cette maison d'exception.
Référence : 90901
Les informations sur les risques auxquels ce bien est exposé sont disponibles sur le site Géorisques : www.georisques.gouv.fr
- Prix
-
- Prix total : 307 898 €
- Prix du modèle de maison : 255 898 €
- Prix du terrain : 52 000 €
- Terrain
-
- Surface : 850 m²
- Maison
-
- Surface : 149 m²
- Pièces : 5
- Chambres : 4
- Être rappelé par un conseiller
- Demander plus d’infos
- Demande d'information
Sassenay (71530)
Maisons à proximité
Maison neuve, 100 m²
Sassenay (71530)
Sassenay (71530)
Maison de 5 pièces
Maison neuve, 73 m²
Sassenay (71530)
Sassenay (71530)
Maison de 3 pièces
Maison neuve, 95 m²
Allériot (71380)
Allériot (71380)
Maison de 4 pièces
Maison neuve, 73 m²
Allériot (71380)
Allériot (71380)
Maison de 3 pièces
Maison neuve, 114 m²
Allériot (71380)
Allériot (71380)
Maison de 5 pièces
Maison neuve, 80 m²
Allériot (71380)
Allériot (71380)
Maison de 3 pièces
Programmes à proximité
Domaine Suzanne
Beaune (21200)
Beaune (21200)
Appartements de 1 à 3 pièces
Livraison 2ème trimestre 2027
Les Allées du Parc
Beaune (21200)
Beaune (21200)
Appartements de 2 à 5 pièces et maison de 4 pièces
Livraison 2ème trimestre 2028
1ER CRU
Beaune (21200)
Beaune (21200)
Appartements de 1 à 4 pièces
Livraison 4ème trimestre 2027
Contacter BABEAU SEGUIN AGENCE DE CHALON-SUR-SAÔNE – CONSTRU pour recevoir plus d'informations
Remplissez le formulaire ci-dessous, vos informations sont transmises directement au constructeur qui vous contactera par email ou par téléphone afin de traiter votre demande. En savoir plus.