Maison neuve, 160 m² - Sartrouville (78500)

665 000 €
Sartrouville (78500)

Proposée par MAISONS BALENCY – 7 pièces - 4 chambres - terrain 510 m²

MAISONS BALENCY
MAISONS BALENCY
  • Demande d'information
MAISON À CONSTRUIRE : ceci est une annonce d'une maison neuve à construire.
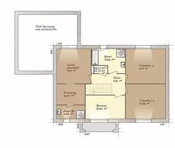
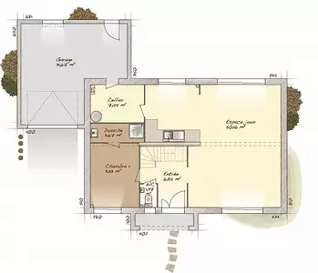
VENTE : maison de 7 pièces (160 m²) à Sartrouville
Paris à 15 min (Transilien J) - À découvrir idéalement située dans Sartrouville (78500) : maison neuve 7 pièces en vente, 2 niveaux, 160 m² et 510 m² de terrain. Elle offre quatre chambres, une cuisine et deux salles de bains.
À dix minutes : RER (lignes A et C), gares, établissements scolaires, tennis, commerces, boulangeries, supermarchés, bureau de poste et épiceries.
Cette maison de 7 pièces est proposée à l'achat pour 665 000 €.
. Maisons Balency Coignières est là pour vous accompagner dans tous vos projets immobiliers.
Annonce proposée par un Agent Commercial Partenaire.
Référence : AD2299835_1
Terrain proposé par un partenaire foncier selon disponibilités et autorisation de publicité au prix de 304 000 €. Hors droit d'enregistrement et frais de notaire. Maison proposée, avec un contrat de construction de maison individuelle, dans le cadre de la loi du 19/12/1990, au prix de 361 000 € (Hors branchements et raccordements, papiers peints, peintures, revêtement de sol dans les chambres, qui sont chiffrés dans les travaux qui restent à charge du client. Tarif modifiable sans préavis). Étiquette énergie : A. Différents modèles disponibles pour ce terrain. Assurances et garanties du constructeur comprises (RC professionnelle, décennale, dommage ouvrage).

Les informations sur les risques auxquels ce bien est exposé sont disponibles sur le site Géorisques : www.georisques.gouv.fr


Prix
  • Prix total : 665 000 €
  • Prix du modèle de maison : 361 000 €
  • Prix du terrain : 304 000 €

Terrain
  • Surface : 510 m²

Maison
  • Surface : 160 m²
  • Pièces : 7
  • Chambres : 4
  • Garage : 1

  • Être rappelé par un conseiller
  • Demander plus d’infos
  • Demande d'information
Sartrouville (78500)

Maisons à proximité

Echo
Echo
Sartrouville (78500)

Appartements de 1 à 4 pièces et maison de 5 pièces
Livraison 4ème trimestre 2028

Programmes à proximité

Echo
Echo
Sartrouville (78500)

Appartements de 1 à 4 pièces et maison de 5 pièces
Livraison 4ème trimestre 2028

VOLTIGE - Bail Réel et Solidaire
VOLTIGE - Bail Réel et Solidaire
Sartrouville (78500)

Appartement de 2 pièces
Livraison 1er trimestre 2027

EQUILIA
EQUILIA
Sartrouville (78500)

Appartements de 2 à 3 pièces
Livraison 3ème trimestre 2027

HORIZON
HORIZON
Sartrouville (78500)

Appartements de 1 à 4 pièces
Livraison 2ème trimestre 2028

Quai Sartori
Quai Sartori
Sartrouville (78500)

Appartements de 2 à 3 pièces
Livraison 4ème trimestre 2026

CENTRAL JAU.BERT - Nue Propriété
CENTRAL JAU.BERT - Nue Propriété
Sartrouville (78500)

Appartements de 1 à 3 pièces
Livraison 3ème trimestre 2027

Contacter MAISONS BALENCY pour recevoir plus d'informations

Remplissez le formulaire ci-dessous, vos informations sont transmises directement au constructeur qui vous contactera par email ou par téléphone afin de traiter votre demande. En savoir plus.

Voir tous nos programmes immobiliers neufs à Sartrouville