Maison neuve, 123 m² - Sainte-Cécile (85110)
318 068 €
Sainte-Cécile (85110)
Proposée par MAISONS NATUREA LA ROCHE SUR YON – 6 pièces - 4 chambres - terrain 446 m²
|
|
| Maisons Naturea La Roche sur Yon |
- Demande d'information
- Prendre rendez-vous
MAISON À CONSTRUIRE : ceci est une annonce d'une maison neuve à construire.
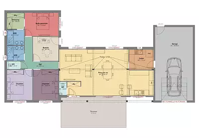
A saisir. Au centre d'un triangle Chantonnay, Les Herbiers et La Roche Sur Yon, profitez de cette belle opportunité avec ce terrain de 446 m², proche de toutes commodités, idéalement exposé et entièrement viabilisé, pour réaliser ensemble votre projet de construction ?? Maison Contemporaine à Construire – Ossature Bois – 123 m² Habitables ?? Projet neuf – Personnalisable selon vos envies Vous rêvez d’une maison moderne, éco-performante et confortable ? Découvrez ce projet de construction d’une maison contemporaine en ossature bois, à l’architecture élégante mêlant toiture bac acier et toit plat, offrant une surface habitable de 123 m², pensée pour le bien-être au quotidien. ?? Composition de la maison : • Pièce de vie lumineuse de 53 m² avec grandes baies vitrées, exposée pour un maximum de lumière naturelle • Cuisine ouverte sur le séjour, idéale pour la convivialité • 3 chambres, dont une suite parentale avec salle d’eau privative et dressing • 2 salles de bain modernes et fonctionnelles • 1 bureau, parfait pour le télétravail ou une salle de jeux • Cellier attenant à la cuisine, pour un rangement optimal • Grand garage de 39,51 m² avec accès direct à la maison ?? Caractéristiques : • Construction en ossature bois : performance thermique, confort et respect de l’environnement • Design contemporain avec finitions soignées • Possibilité de personnaliser les plans et les aménagements intérieurs ?? Idéal pour : Une famille en quête d’un cadre de vie moderne, durable et chaleureux, ou pour un projet de résidence principale dans un environnement calme et naturel. ________________________________________ ?? Contactez-nous dès maintenant pour plus d’informations ou pour une étude personnalisée de votre projet !
Référence : VT-LA -2500612
Les informations sur les risques auxquels ce bien est exposé sont disponibles sur le site Géorisques : www.georisques.gouv.fr
Référence : VT-LA -2500612
Les informations sur les risques auxquels ce bien est exposé sont disponibles sur le site Géorisques : www.georisques.gouv.fr
- Prix
-
- Prix total : 318 068 €
- Prix du modèle de maison : N.C.
- Prix du terrain : N.C.
- Terrain
-
- Surface : 446 m²
- Maison
-
- Surface : 123 m²
- Pièces : 6
- Chambres : 4
- Être rappelé par un conseiller
- Demander plus d’infos
- Demande d'information
Sainte-Cécile (85110)
Maisons à proximité
Maison neuve, 69 m²
Sainte-Cécile (85110)
Sainte-Cécile (85110)
Maison de 3 pièces
Maison neuve, 64 m²
Sainte-Cécile (85110)
Sainte-Cécile (85110)
Maison de 3 pièces
Maison neuve, 90 m²
Sainte-Cécile (85110)
Sainte-Cécile (85110)
Maison de 4 pièces
Maison neuve, 80 m²
Sainte-Cécile (85110)
Sainte-Cécile (85110)
Maison de 4 pièces
Maison neuve, 70 m²
Sainte-Cécile (85110)
Sainte-Cécile (85110)
Maison de 3 pièces
Maison neuve, 92 m²
Sainte-Cécile (85110)
Sainte-Cécile (85110)
Maison de 5 pièces
Programmes à proximité
Le Domaine des Sablières
Les Herbiers (85500)
Les Herbiers (85500)
Appartements de 2 à 3 pièces
Livraison 4ème trimestre 2027
Domaine de la Forge
Les Herbiers (85500)
Les Herbiers (85500)
Appartements de 1 à 5 pièces
Livraison 2ème trimestre 2028
Les Boiseries du Landreau
Les Herbiers (85500)
Les Herbiers (85500)
Appartements de 2 à 4 pièces
Livraison 4ème trimestre 2026
Contacter MAISONS NATUREA LA ROCHE SUR YON pour recevoir plus d'informations
Remplissez le formulaire ci-dessous, vos informations sont transmises directement au constructeur qui vous contactera par email ou par téléphone afin de traiter votre demande. En savoir plus.