Maison neuve, 105 m² - Saint-Romain-Lachalm (43620)

219 000 €
Saint-Romain-Lachalm (43620)

Proposée par MAISONS PUNCH SAINT-ÉTIENNE – 5 pièces - 4 chambres - terrain 1 000 m²

Maisons Punch Saint-Étienne
Maisons Punch Saint-Étienne
(70 avis)
  • Demande d'information
MAISON À CONSTRUIRE : ceci est une annonce d'une maison neuve à construire.
Sur la commune de Saint-Romain-Lachalm, dans un cadre paisible, Maisons Punch vous propose un projet de construction sur un terrain de 1000m² entièrement viabilisé .
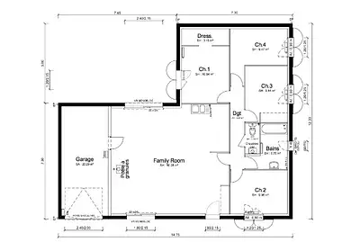
Vous serez séduit par notre modèle en L de 104m² vous offrant une grande pièce de vie et 4 chambres spacieuses avec un grand garage de 20m².
Aux normes RE 2020 de nombreuses options équiperont votre future maison.
En choisissant Maisons Punch vous optez pour la qualité et le savoir-faire. Nous mettons notre expertise à votre service pour réaliser la maison de vos rêves, dans le respect de vos attentes et de votre budget. Référence : 2949 GALLAND Nadia
Terrain proposé et vendu par notre partenaire foncier selon disponibilités, le constructeur n’étant pas mandaté pour réaliser la vente du terrain. Prix terrain inclus : 55 000 € Frais de notaire non inclus : € Prix maison inclus : 164 000 € VRD non inclus : € Hors aménagements extérieurs (extensions, terrasse, piscine etc), papiers peints, peintures, moquettes dans les chambres (tarif en vigueur au 20 mai 2025, modifiable sans préavis, prix variables suivant les prestations souhaitées). Hors frais d’hypothèque. Différents modèles disponibles pour chaque terrain. Assurance RC professionnelle/décennale/dommage ouvrage groupe Aviva. Garantie de remboursement de l'acompte/livraison à prix et délai convenu CGI.

Les informations sur les risques auxquels ce bien est exposé sont disponibles sur le site Géorisques : www.georisques.gouv.fr


Prix
  • Prix total : 219 000 €
  • Prix du modèle de maison : 164 000 €
  • Prix du terrain : 55 000 €

Terrain
  • Surface : 1 000 m²

Maison
  • Surface : 105 m²
  • Pièces : 5
  • Chambres : 4
  • Salle de bains : 1
  • Garage : 1
  • Surface garage : 20 m²

  • Être rappelé par un conseiller
  • Demander plus d’infos
  • Demande d'information
Saint-Romain-Lachalm (43620)

Programmes à proximité

Dernier studio disponible
Dernier studio disponible
Saint-Étienne (42000)

Appartement de 1 pièce
Livraison 4ème trimestre 2025

DOCKS 42
DOCKS 42
Saint-Étienne (42000)

Appartements de 2 à 4 pièces
Livraison 3ème trimestre 2027

COEUR VERT
COEUR VERT
Saint-Étienne (42000)

Appartements de 3 à 5 pièces
Livraison 1er trimestre 2026

LE COLOMBIER
LE COLOMBIER
Saint-Jean-Bonnefonds (42650)

Appartements de 2 à 4 pièces et maisons de 4 à 5 pièces
Livraison 4ème trimestre 2027

L'OREE DU PARC
L'OREE DU PARC
Villars (42390)

Appartements de 2 à 4 pièces
Livraison 4ème trimestre 2026

Contacter MAISONS PUNCH SAINT-ÉTIENNE pour recevoir plus d'informations

Remplissez le formulaire ci-dessous, vos informations sont transmises directement au constructeur qui vous contactera par email ou par téléphone afin de traiter votre demande. En savoir plus.

Voir tous nos programmes immobiliers neufs à Saint-Romain-Lachalm