Maison neuve, 102 m² - Saint-priest-bramefant (63310)
196 415 €
Saint-priest-bramefant (63310)
Proposée par CERCLE ENTREPRISE AGENCE DE VICHY (AUVERGNE) – 5 pièces - 4 chambres - terrain 900 m²
|
|
| Cercle entreprise Agence de Vichy (Auvergne) |
- Demande d'information
- Prendre rendez-vous
MAISON À CONSTRUIRE : ceci est une annonce d'une maison neuve à construire.
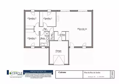
Nous vous proposons cette maison neuve, baptisée Cairanne, un modèle d'exception qui allie esthétique, fonctionnalité et performance énergétique. Avec une surface habitable de 102 m², cette maison à construire se distingue par son plan en T, offrant une organisation de l'espace à la fois originale et optimisée pour le confort de toute la famille.
La Cairanne se compose de 4 pièces lumineuses, dont 4 chambres spacieuses, promettant ainsi un espace de vie agréable et adapté à tous les modes de vie. La pièce de vie principale, d'une superficie impressionnante de plus de 50 m², intègre une cuisine ouverte, créant un espace convivial où il fait bon se retrouver. Cette maison est également équipée d'un garage intégré, pratique et sécurisant pour votre véhicule ou pour un espace de rangement supplémentaire.
Conçue pour répondre aux attentes les plus exigeantes, la Cairanne intègre les options les plus prisées telles que la domotique, pour une maison connectée et intelligente, des menuiseries en aluminium, alliant durabilité et esthétique, ainsi qu'une terrasse bétonnée, idéale pour profiter des beaux jours.
Cette maison neuve est un véritable engagement vers l'avenir, puisqu'elle est basse consommation et conforme à la norme RE2020. Cette réglementation environnementale garantit une excellente performance thermique, réduisant ainsi vos dépenses énergétiques tout en respectant l'environnement. La conception de la Cairanne a été pensée pour maximiser l'efficacité énergétique, grâce à son plan en T qui favorise une meilleure distribution de la chaleur et une luminosité optimale dans toutes les pièces.
La forme de la maison Cairanne permet non seulement de créer des espaces de vie chaleureux et intimes à l'intérieur, mais aussi d'offrir un cadre de vie extérieur des plus agréables. Son design actuel et ses fonctionnalités modernes en font un modèle très recherché, parfaitement adapté aux familles désireuses de combiner confort, modernité et respect de l'environnement.
Ne
Référence : 17919
Les informations sur les risques auxquels ce bien est exposé sont disponibles sur le site Géorisques : www.georisques.gouv.fr
La Cairanne se compose de 4 pièces lumineuses, dont 4 chambres spacieuses, promettant ainsi un espace de vie agréable et adapté à tous les modes de vie. La pièce de vie principale, d'une superficie impressionnante de plus de 50 m², intègre une cuisine ouverte, créant un espace convivial où il fait bon se retrouver. Cette maison est également équipée d'un garage intégré, pratique et sécurisant pour votre véhicule ou pour un espace de rangement supplémentaire.
Conçue pour répondre aux attentes les plus exigeantes, la Cairanne intègre les options les plus prisées telles que la domotique, pour une maison connectée et intelligente, des menuiseries en aluminium, alliant durabilité et esthétique, ainsi qu'une terrasse bétonnée, idéale pour profiter des beaux jours.
Cette maison neuve est un véritable engagement vers l'avenir, puisqu'elle est basse consommation et conforme à la norme RE2020. Cette réglementation environnementale garantit une excellente performance thermique, réduisant ainsi vos dépenses énergétiques tout en respectant l'environnement. La conception de la Cairanne a été pensée pour maximiser l'efficacité énergétique, grâce à son plan en T qui favorise une meilleure distribution de la chaleur et une luminosité optimale dans toutes les pièces.
La forme de la maison Cairanne permet non seulement de créer des espaces de vie chaleureux et intimes à l'intérieur, mais aussi d'offrir un cadre de vie extérieur des plus agréables. Son design actuel et ses fonctionnalités modernes en font un modèle très recherché, parfaitement adapté aux familles désireuses de combiner confort, modernité et respect de l'environnement.
Ne
Référence : 17919
Les informations sur les risques auxquels ce bien est exposé sont disponibles sur le site Géorisques : www.georisques.gouv.fr
- Prix
-
- Prix total : 196 415 €
- Prix du modèle de maison : 173 415 €
- Prix du terrain : 23 000 €
- Terrain
-
- Surface : 900 m²
- Maison
-
- Surface : 102 m²
- Pièces : 5
- Chambres : 4
- Être rappelé par un conseiller
- Demander plus d’infos
- Demande d'information
Saint-priest-bramefant (63310)
Maisons à proximité
Maison neuve, 88 m²
Saint-Priest-Bramefant (63310)
Saint-Priest-Bramefant (63310)
Maison de 4 pièces
Maison neuve, 90 m²
Saint-Priest-Bramefant (63310)
Saint-Priest-Bramefant (63310)
Maison de 4 pièces
Maison neuve, 90 m²
Saint-Priest-Bramefant (63310)
Saint-Priest-Bramefant (63310)
Maison de 4 pièces
Maison neuve, 105 m²
Saint-Priest-Bramefant (63310)
Saint-Priest-Bramefant (63310)
Maison de 5 pièces
Maison neuve, 87 m²
Mons (63310)
Mons (63310)
Maison de 4 pièces
Maison neuve, 89 m²
Mons (63310)
Mons (63310)
Maison de 5 pièces
Programmes à proximité
A 10min à pied du centre-ville de Vichy
Vichy (03200)
Vichy (03200)
Appartements de 2 à 4 pièces
Livraison 4ème trimestre 2027
Contacter CERCLE ENTREPRISE AGENCE DE VICHY (AUVERGNE) pour recevoir plus d'informations
Remplissez le formulaire ci-dessous, vos informations sont transmises directement au constructeur qui vous contactera par email ou par téléphone afin de traiter votre demande. En savoir plus.
Voir tous nos programmes immobiliers neufs à Saint-Priest-Bramefant