Maison neuve, 87 m² - Mons (63310)
189 012 €
Mons (63310)
Proposée par MAISON ET JARDIN – 4 pièces - 3 chambres - terrain 1 044 m²
|
|
| Maison et Jardin |
- Demande d'information
- Prendre rendez-vous
MAISON À CONSTRUIRE : ceci est une annonce d'une maison neuve à construire.
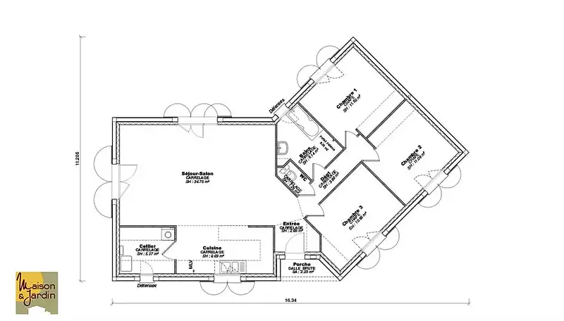
Nous vous proposons cette maison neuve, baptisée Eva, un modèle de construction qui allie élégance et fonctionnalité sur une surface habitable de 87 m². Conçue pour répondre aux attentes des familles modernes, Eva se distingue par son architecture en V, offrant une séparation optimale entre la partie jour et la partie nuit, garantissant ainsi intimité et confort pour tous les membres de la famille.
Cette maison se compose de 4 pièces lumineuses et spacieuses, dont 3 chambres accueillantes, parfaites pour une famille cherchant à s'établir dans un espace de vie harmonieux et bien organisé. Le design intérieur est pensé pour maximiser l'espace et la lumière naturelle, créant une atmosphère chaleureuse et accueillante dès le seuil franchi.
L'Eva est disponible avec une toiture à 2 ou 4 versants, vous permettant de choisir le style qui s'harmonise le mieux avec vos préférences esthétiques et les caractéristiques de votre terrain. De plus, ce modèle intègre un garage, solution pratique pour sécuriser votre véhicule et stocker vos équipements, tout en conservant l'élégance de la structure globale. Pour ceux qui préfèrent maximiser l'espace de vie, Eva est également proposée sans garage, offrant ainsi une flexibilité totale pour répondre à vos besoins spécifiques.
Une attention particulière a été portée à la performance énergétique de la maison Eva, conçue pour être basse consommation et pleinement conforme à la réglementation environnementale RE2020. Cette maison neuve représente non seulement un choix responsable pour l'environnement, mais elle vous permettra également de réaliser d'importantes économies d'énergie sur le long terme.
Choisir Eva, c'est opter pour une maison qui s'adapte à votre vie, offrant des options hautement demandées par nos clients, telles que la personnalisation des espaces et une efficacité énergétique optimale. Vivez l'expérience d'une maison neuve qui allie confort, style et respect de l'environnement. Eva est la promesse d'un foyer où il fai
Référence : 14001
Les informations sur les risques auxquels ce bien est exposé sont disponibles sur le site Géorisques : www.georisques.gouv.fr
Cette maison se compose de 4 pièces lumineuses et spacieuses, dont 3 chambres accueillantes, parfaites pour une famille cherchant à s'établir dans un espace de vie harmonieux et bien organisé. Le design intérieur est pensé pour maximiser l'espace et la lumière naturelle, créant une atmosphère chaleureuse et accueillante dès le seuil franchi.
L'Eva est disponible avec une toiture à 2 ou 4 versants, vous permettant de choisir le style qui s'harmonise le mieux avec vos préférences esthétiques et les caractéristiques de votre terrain. De plus, ce modèle intègre un garage, solution pratique pour sécuriser votre véhicule et stocker vos équipements, tout en conservant l'élégance de la structure globale. Pour ceux qui préfèrent maximiser l'espace de vie, Eva est également proposée sans garage, offrant ainsi une flexibilité totale pour répondre à vos besoins spécifiques.
Une attention particulière a été portée à la performance énergétique de la maison Eva, conçue pour être basse consommation et pleinement conforme à la réglementation environnementale RE2020. Cette maison neuve représente non seulement un choix responsable pour l'environnement, mais elle vous permettra également de réaliser d'importantes économies d'énergie sur le long terme.
Choisir Eva, c'est opter pour une maison qui s'adapte à votre vie, offrant des options hautement demandées par nos clients, telles que la personnalisation des espaces et une efficacité énergétique optimale. Vivez l'expérience d'une maison neuve qui allie confort, style et respect de l'environnement. Eva est la promesse d'un foyer où il fai
Référence : 14001
Les informations sur les risques auxquels ce bien est exposé sont disponibles sur le site Géorisques : www.georisques.gouv.fr
- Prix
-
- Prix total : 189 012 €
- Prix du modèle de maison : 165 000 €
- Prix du terrain : 24 012 €
- Terrain
-
- Surface : 1 044 m²
- Maison
-
- Surface : 87 m²
- Pièces : 4
- Chambres : 3
- Être rappelé par un conseiller
- Demander plus d’infos
- Demande d'information
Mons (63310)
Maisons à proximité
Maison neuve, 89 m²
Mons (63310)
Mons (63310)
Maison de 5 pièces
Maison neuve, 88 m²
Mons (63310)
Mons (63310)
Maison de 4 pièces
Maison neuve, 91 m²
Mons (63310)
Mons (63310)
Maison de 5 pièces
Maison neuve, 102 m²
Saint-Priest-Bramefant (63310)
Saint-Priest-Bramefant (63310)
Maison de 5 pièces
Maison neuve, 88 m²
Saint-Priest-Bramefant (63310)
Saint-Priest-Bramefant (63310)
Maison de 4 pièces
Maison neuve, 90 m²
Saint-Priest-Bramefant (63310)
Saint-Priest-Bramefant (63310)
Maison de 4 pièces
Programmes à proximité
A 10min à pied du centre-ville de Vichy
Vichy (03200)
Vichy (03200)
Appartements de 1 à 4 pièces
Livraison 4ème trimestre 2027
Contacter MAISON ET JARDIN pour recevoir plus d'informations
Remplissez le formulaire ci-dessous, vos informations sont transmises directement au constructeur qui vous contactera par email ou par téléphone afin de traiter votre demande. En savoir plus.