Maison neuve, 93 m² - Saint-Pourçain-sur-Sioule (03500)
181 070 €
Saint-Pourçain-sur-Sioule (03500)
Proposée par CERCLE ENTREPRISE AGENCE DE VICHY (AUVERGNE) – 4 pièces - 3 chambres - terrain 713 m²
|
|
| Cercle entreprise Agence de Vichy (Auvergne) |
- Demande d'information
- Prendre rendez-vous
MAISON À CONSTRUIRE : ceci est une annonce d'une maison neuve à construire.
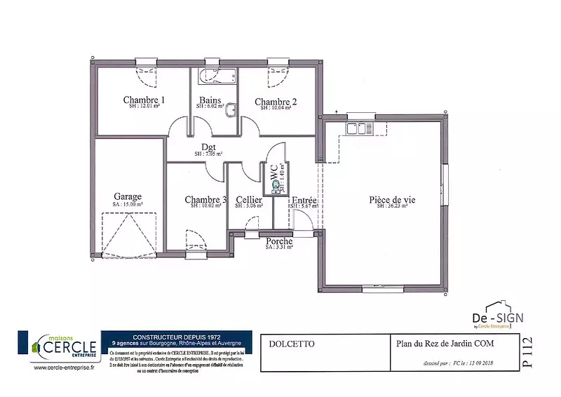
Nous vous proposons cette maison neuve, baptisée ""Dolcetto"", un modèle de résidence qui allie élégance et fonctionnalité sur une surface habitable de 93 m². Conçue pour s'adapter harmonieusement à des terrains de dimensions modestes, cette maison de plain-pied se distingue par son architecture intelligente, avec deux volumes décalés permettant une intégration optimale et un porche d'accueil chaleureux devant le hall.
La ""Dolcetto"" est une habitation lumineuse par excellence, bénéficiant d'une triple orientation dans la partie vie, ce qui maximise l'ensoleillement tout au long de la journée. Elle se compose de quatre pièces principales, dont trois chambres confortables, une salle de bains centrale, un cellier pratique, un WC séparé, ainsi qu'un garage attenant, répondant ainsi parfaitement aux besoins d'une famille moderne.
Cette maison est conçue dans le respect des normes RE2020, garantissant une performance énergétique de premier ordre. Elle est synonyme de basse consommation, une caractéristique essentielle pour les acquéreurs conscients de l'importance de l'efficacité énergétique et soucieux de l'environnement. Parmi les options les plus plébiscitées, les panneaux solaires se distinguent, offrant une source d'énergie renouvelable pour réduire encore davantage les dépenses énergétiques et assurer une autonomie accrue.
La ""Dolcetto"" est donc une proposition idéale pour ceux qui cherchent à investir dans une maison neuve, économique et respectueuse de l'environnement, sans faire de compromis sur le confort et le style de vie. Avec ses espaces bien pensés et sa conception orientée vers la luminosité, elle promet un cadre de vie des plus agréables pour toute la famille.
Référence : 14606
Les informations sur les risques auxquels ce bien est exposé sont disponibles sur le site Géorisques : www.georisques.gouv.fr
La ""Dolcetto"" est une habitation lumineuse par excellence, bénéficiant d'une triple orientation dans la partie vie, ce qui maximise l'ensoleillement tout au long de la journée. Elle se compose de quatre pièces principales, dont trois chambres confortables, une salle de bains centrale, un cellier pratique, un WC séparé, ainsi qu'un garage attenant, répondant ainsi parfaitement aux besoins d'une famille moderne.
Cette maison est conçue dans le respect des normes RE2020, garantissant une performance énergétique de premier ordre. Elle est synonyme de basse consommation, une caractéristique essentielle pour les acquéreurs conscients de l'importance de l'efficacité énergétique et soucieux de l'environnement. Parmi les options les plus plébiscitées, les panneaux solaires se distinguent, offrant une source d'énergie renouvelable pour réduire encore davantage les dépenses énergétiques et assurer une autonomie accrue.
La ""Dolcetto"" est donc une proposition idéale pour ceux qui cherchent à investir dans une maison neuve, économique et respectueuse de l'environnement, sans faire de compromis sur le confort et le style de vie. Avec ses espaces bien pensés et sa conception orientée vers la luminosité, elle promet un cadre de vie des plus agréables pour toute la famille.
Référence : 14606
Les informations sur les risques auxquels ce bien est exposé sont disponibles sur le site Géorisques : www.georisques.gouv.fr
- Prix
-
- Prix total : 181 070 €
- Prix du modèle de maison : 160 370 €
- Prix du terrain : 20 700 €
- Terrain
-
- Surface : 713 m²
- Maison
-
- Surface : 93 m²
- Pièces : 4
- Chambres : 3
- Être rappelé par un conseiller
- Demander plus d’infos
- Demande d'information
Saint-Pourçain-sur-Sioule (03500)
Maisons à proximité
Maison neuve, 105 m²
Saint-Pourçain-sur-Sioule (03500)
Saint-Pourçain-sur-Sioule (03500)
Maison de 5 pièces
Maison neuve, 90 m²
Saint-Pourçain-sur-Sioule (03500)
Saint-Pourçain-sur-Sioule (03500)
Maison de 4 pièces
Maison neuve, 106 m²
Louchy-Montfand (03500)
Louchy-Montfand (03500)
Maison de 5 pièces
Maison neuve, 103 m²
Paray-sous-Briailles (03500)
Paray-sous-Briailles (03500)
Maison de 5 pièces
Maison neuve, 80 m²
Paray-sous-Briailles (03500)
Paray-sous-Briailles (03500)
Maison de 4 pièces
Maison neuve, 89 m²
Paray-sous-Briailles (03500)
Paray-sous-Briailles (03500)
Maison de 4 pièces
Programmes à proximité
A 10min à pied du centre-ville de Vichy
Vichy (03200)
Vichy (03200)
Appartements de 1 à 4 pièces
Livraison 4ème trimestre 2027
Contacter CERCLE ENTREPRISE AGENCE DE VICHY (AUVERGNE) pour recevoir plus d'informations
Remplissez le formulaire ci-dessous, vos informations sont transmises directement au constructeur qui vous contactera par email ou par téléphone afin de traiter votre demande. En savoir plus.
Voir tous nos programmes immobiliers neufs à Saint-Pourçain-sur-Sioule