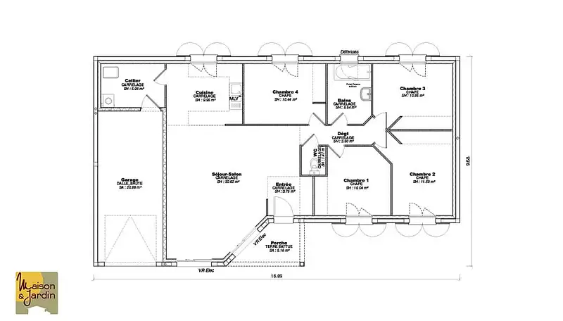
Maison neuve, 103 m² - Paray-sous-Briailles (03500)
210 000 €
Paray-sous-Briailles (03500)
Proposée par MAISON ET JARDIN – 5 pièces - 4 chambres - terrain 1 500 m²
|
|
| Maison et Jardin |
- Demande d'information
- Prendre rendez-vous
MAISON À CONSTRUIRE : ceci est une annonce d'une maison neuve à construire.
Offrez-vous un havre de paix avec ce terrain exceptionnel de 1 500 m² en légère pente, situé à Paray-sous-Briailles, dans l’Allier. Ce terrain viabilisé présente un cadre unique, propice à la construction de la maison plain pied de vos rêves. Avec un environnement arboré et sans vis-à-vis, vous profiterez d’un calme absolu tout en bénéficiant d’une qualité de vie remarquable. Ce projet de construction vous permettra de réaliser une propriété en parfaite adéquation avec vos désirs et vos besoins.
Située en Auvergne-Rhône-Alpes, Paray-sous-Briailles est une commune qui séduira les amateurs de nature et de tranquillité. À proximité, vous trouverez de nombreuses commodités telles que des épiceries, des infrastructures scolaires et diverses activités de plein air. La région est également réputée pour ses paysages enchanteurs et son patrimoine culturel, offrant des possibilités d’exploration et de loisirs variées. Le cadre verdoyant de cette localité garantit un cadre de vie agréable et épanouissant.
Contactez-nous dès aujourd’hui pour plus d’informations et imaginez dès maintenant votre future maison à Paray-sous-Briailles !
À noter qu’en tant que constructeur, nous ne sommes pas mandatés pour réaliser la vente de ce terrain.
Il est également prévu l’installation d’un assainissement individuel, déjà inclus dans le prix de vente si vous optez pour l’offre maison + terrain.
(Le projet Maison + terrain inclus les frais de notaire pour l’achat du terrain, le coût de viabilisation de la parcelle, l’assainissement individuel, l’assurance dommage ouvrage ainsi que l’étude de sol G2 obligatoire).
+ de 80 autres modèles possibles. D’autres terrains sont disponibles dans le secteur.
Contactez votre conseiller commercial: Anthony GRASSI
Référence : 16243
Les informations sur les risques auxquels ce bien est exposé sont disponibles sur le site Géorisques : www.georisques.gouv.fr
- Prix
-
- Prix total : 210 000 €
- Prix du modèle de maison : 185 000 €
- Prix du terrain : 25 000 €
- Terrain
-
- Surface : 1 500 m²
- Maison
-
- Surface : 103 m²
- Pièces : 5
- Chambres : 4
- Être rappelé par un conseiller
- Demander plus d’infos
- Demande d'information
Paray-sous-Briailles (03500)
Maisons à proximité
Maison neuve, 90 m²
Varennes-sur-Allier (03150)
Varennes-sur-Allier (03150)
Maison de 4 pièces
Maison neuve, 97 m²
Varennes-sur-Allier (03150)
Varennes-sur-Allier (03150)
Maison de 5 pièces
Maison neuve, 80 m²
Varennes-sur-Allier (03150)
Varennes-sur-Allier (03150)
Maison de 4 pièces
Maison neuve, 80 m²
Varennes-sur-Allier (03150)
Varennes-sur-Allier (03150)
Maison de 4 pièces
Maison neuve, 105 m²
Saint-Pourçain-sur-Sioule (03500)
Saint-Pourçain-sur-Sioule (03500)
Maison de 5 pièces
Maison neuve, 93 m²
Saint-Pourçain-sur-Sioule (03500)
Saint-Pourçain-sur-Sioule (03500)
Maison de 4 pièces
Programmes à proximité
A 10min à pied du centre-ville de Vichy
Vichy (03200)
Vichy (03200)
Appartements de 2 à 4 pièces
Livraison 4ème trimestre 2027
Contacter MAISON ET JARDIN pour recevoir plus d'informations
Remplissez le formulaire ci-dessous, vos informations sont transmises directement au constructeur qui vous contactera par email ou par téléphone afin de traiter votre demande. En savoir plus.
Voir tous nos programmes immobiliers neufs à Paray-sous-Briailles