Maison neuve, 90 m² - Saint-Père-en-Retz (44320)

228 609 €
Saint-Père-en-Retz (44320)

Proposée par MAISONS PRIVAT AGENCE DE PORNIC (44) – 4 pièces - 3 chambres - terrain 305 m²

Maisons Privat Agence de Pornic (44)
Maisons Privat Agence de Pornic (44)
  • Demande d'information
MAISON À CONSTRUIRE : ceci est une annonce d'une maison neuve à construire.
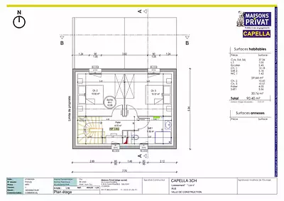
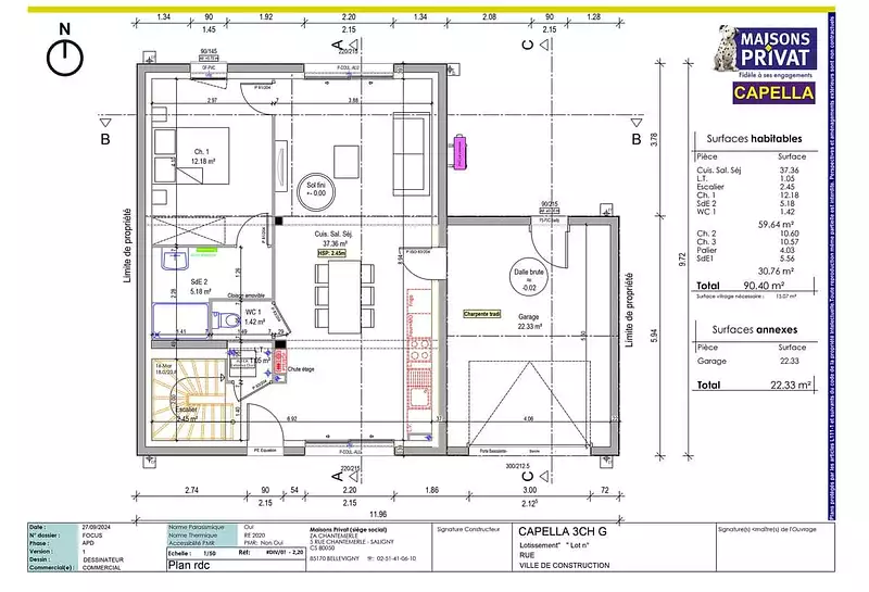
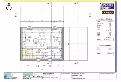
Sur ce terrain, nous vous proposons une maison contemporaine pensée pour le bien-être de toute la famille. Avec ses 90,57 m² de surface habitable et ses espaces lumineux cette maison à étage est idéale pour ceux qui recherchent un cadre de vie agréable et fonctionnel.
Un intérieur chaleureux et optimisé
Dès l’entrée, découvrez une belle pièce de vie de 37 m², spacieuse et lumineuse grâce à ses larges ouvertures donnant sur le jardin . L’espace salon-salle à manger se prolonge harmonieusement avec une cuisine ouverte, idéale pour partager des moments conviviaux.
Le rez-de-chaussée accueille également une suite parentale confortable de 12,18 m², garantissant calme et intimité. Une salle d’eau moderne et des WC indépendants complètent ce niveau.
Un étage conçu pour la famille
À l’étage, deux chambres de 10,70 m² et 10,74 m² offrent un espace de vie agréable pour les enfants ou les invités. Une grande salle d’eau de 5,56 m² ainsi qu’un palier pouvant être aménagé en coin bureau ou espace détente complètent ce niveau.
Sur cette version, un garage peut être ajouté en option.
* Prix indiqué hors branchements, hors sanitaires, hors revêtement des sols et des murs. Assurance dommages ouvrages incluse.
Référence : 62082

Les informations sur les risques auxquels ce bien est exposé sont disponibles sur le site Géorisques : www.georisques.gouv.fr


Prix
  • Prix total : 228 609 €
  • Prix du modèle de maison : 161 009 €
  • Prix du terrain : 67 600 €

Terrain
  • Surface : 305 m²

Maison
  • Surface : 90 m²
  • Pièces : 4
  • Chambres : 3

  • Être rappelé par un conseiller
  • Demander plus d’infos
  • Demande d'information
Saint-Père-en-Retz (44320)

Programmes à proximité

IMPULSION
IMPULSION
Saint-Père-en-Retz (44320)

Appartements de 2 à 4 pièces
Livraison 4ème trimestre 2027

JADELIA
JADELIA
Saint-Michel-Chef-Chef (44730)

Appartements de 2 à 3 pièces
Livraison 4ème trimestre 2027

ALBATROS
ALBATROS
Saint-Brevin-les-Pins (44250)

Appartements de 2 à 3 pièces
Livraison 4ème trimestre 2027

La Pinède
La Pinède
Saint-Brevin-les-Pins (44250)

Appartements de 2 à 5 pièces
Livraison 4ème trimestre 2026

Villa Floria
Villa Floria
Pornic (44210)

Appartements de 3 pièces
Livraison 4ème trimestre 2027

Vert Emeraude
Vert Emeraude
Pornic (44210)

Appartements de 2 à 5 pièces
Livraison 4ème trimestre 2027

Contacter MAISONS PRIVAT AGENCE DE PORNIC (44) pour recevoir plus d'informations

Remplissez le formulaire ci-dessous, vos informations sont transmises directement au constructeur qui vous contactera par email ou par téléphone afin de traiter votre demande. En savoir plus.

Voir tous nos programmes immobiliers neufs à Saint-Père-en-Retz