Maison neuve, 90 m² - Saint-Père-en-Retz (44320)

232 291 €
Saint-Père-en-Retz (44320)

Proposée par MAISONS PRIVAT AGENCE DE PORNIC (44) – 4 pièces - 3 chambres - terrain 295 m²

Maisons Privat Agence de Pornic (44)
Maisons Privat Agence de Pornic (44)
  • Demande d'information
MAISON À CONSTRUIRE : ceci est une annonce d'une maison neuve à construire.
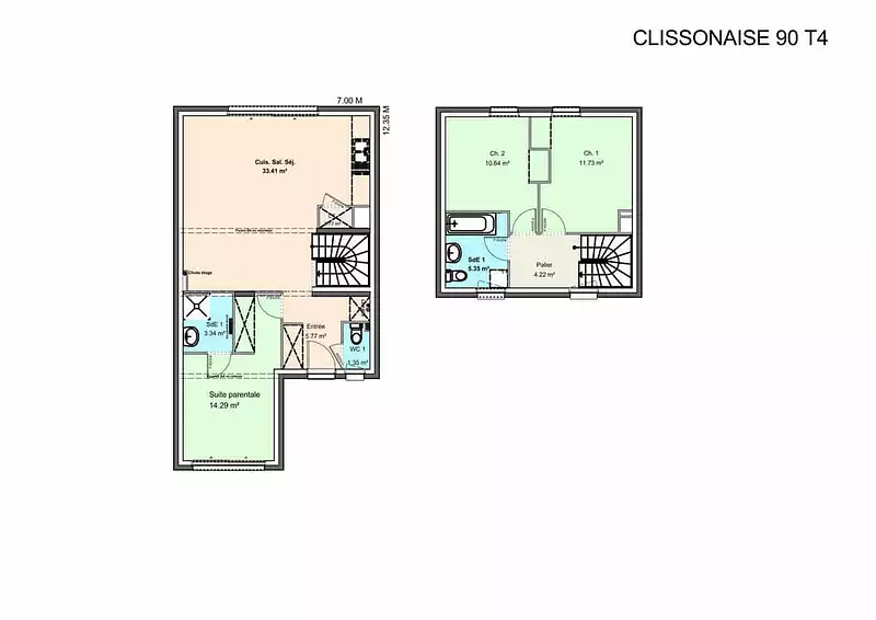
Sur ce terrain, nous vous proposons cette maison neuve : la Clissonnaise, une charmante maison à étage de 90 m². Conçue par Maisons Privat, constructeur centenaire avec les meilleurs avis clients de la région, cette demeure est idéale pour les primo-accédants, les couples ou les familles.
La Clissonnaise se compose de 4 pièces, dont 3 chambres spacieuses, et offre un cadre de vie confortable et moderne. Grâce à ses baies coulissantes, la maison bénéficie d'une luminosité naturelle exceptionnelle. La dalle étage en béton assure une solidité et une isolation optimales, conformes aux normes RT2020.
Cette maison neuve est basse consommation et conforme à la RE2020, garantissant des économies d'énergie significatives et un confort thermique tout au long de l'année. Parfaitement adaptée aux terrains étroits, la Clissonnaise optimise chaque mètre carré pour offrir un espace de vie fonctionnel et agréable.
Les options les plus demandées par nos clients sont également disponibles pour personnaliser votre maison selon vos besoins : une deuxième salle de bains pour plus de confort, une baie à galandage pour une ouverture maximale sur l'extérieur, un carport pour abriter votre véhicule, ou encore un garage accolé pour plus de praticité.
Achetez votre nouvelle demeure à étage comme vous la souhaitez et profitez d'un espace de vie convivial avec cuisine ouverte. La Clissonnaise est disponible dans des dimensions allant de 70 à 110 m², permettant de nombreuses configurations en fonction de la composition de votre famille.
Ne manquez pas cette opportunité unique de devenir propriétaire d'une maison neuve, moderne et économe en énergie, conçue par Maisons Privat, le constructeur de confiance de la région.
Référence : 62083

Les informations sur les risques auxquels ce bien est exposé sont disponibles sur le site Géorisques : www.georisques.gouv.fr


Prix
  • Prix total : 232 291 €
  • Prix du modèle de maison : 165 591 €
  • Prix du terrain : 66 700 €

Terrain
  • Surface : 295 m²

Maison
  • Surface : 90 m²
  • Pièces : 4
  • Chambres : 3

  • Être rappelé par un conseiller
  • Demander plus d’infos
  • Demande d'information
Saint-Père-en-Retz (44320)

Programmes à proximité

IMPULSION
IMPULSION
Saint-Père-en-Retz (44320)

Appartements de 2 à 4 pièces
Livraison 4ème trimestre 2027

JADELIA
JADELIA
Saint-Michel-Chef-Chef (44730)

Appartements de 2 à 3 pièces
Livraison 4ème trimestre 2027

ALBATROS
ALBATROS
Saint-Brevin-les-Pins (44250)

Appartements de 2 à 3 pièces
Livraison 4ème trimestre 2027

La Pinède
La Pinède
Saint-Brevin-les-Pins (44250)

Appartements de 2 à 5 pièces
Livraison 4ème trimestre 2026

Villa Floria
Villa Floria
Pornic (44210)

Appartements de 3 pièces
Livraison 4ème trimestre 2027

Vert Emeraude
Vert Emeraude
Pornic (44210)

Appartements de 2 à 5 pièces
Livraison 4ème trimestre 2027

Contacter MAISONS PRIVAT AGENCE DE PORNIC (44) pour recevoir plus d'informations

Remplissez le formulaire ci-dessous, vos informations sont transmises directement au constructeur qui vous contactera par email ou par téléphone afin de traiter votre demande. En savoir plus.

Voir tous nos programmes immobiliers neufs à Saint-Père-en-Retz