Maison neuve, 85 m² - Saint-Pantaléon-de-Larche (19600)
200 757 €
Saint-Pantaléon-de-Larche (19600)
Proposée par BABEAU SEGUIN AGENCE DE BRIVE LA GAILLARDE – CORRE – 4 pièces - 3 chambres - terrain 1 600 m²
|
|
| Babeau Seguin Agence de Brive la Gaillarde – Corre |
- Demande d'information
- Prendre rendez-vous
MAISON À CONSTRUIRE : ceci est une annonce d'une maison neuve à construire.
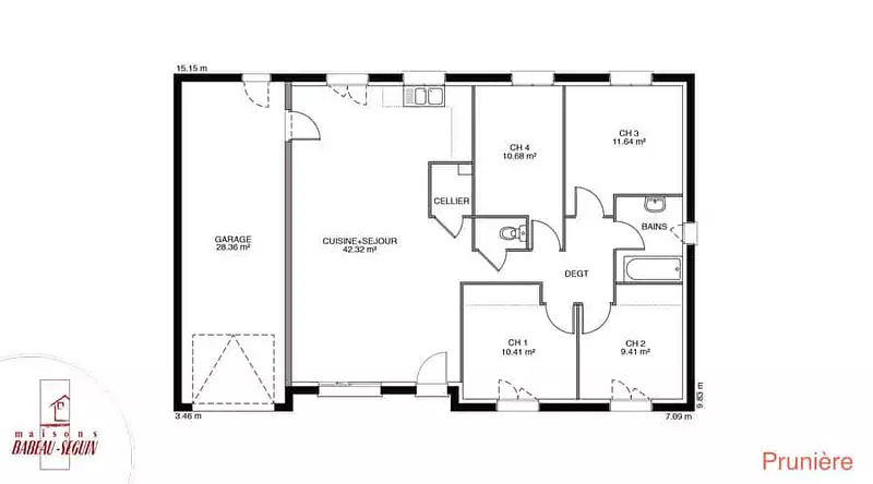
Sur ce terrain, nous vous proposons cette maison neuve, modèle Prunière, l’un des modèles les plus vendus par Babeau-Seguin, constructeur offrant le meilleur rapport qualité/prix du marché. Figurant dans le top 5 des maisons individuelles Babeau-Seguin, cette maison plain-pied Prunière séduit par son renfoncement qui casse la monotonie de la façade avant et offre un abri de seuil.
Avec une surface de 85 m², cette maison traditionnelle comprend 4 pièces, dont 3 chambres, et un garage intégré. Elle se décline en versions à 2 pans ou 4 pans, selon vos préférences. Parfaitement équipée, la Prunière est en effet la maison à petit prix par excellence.
En plus de son design attrayant, cette maison neuve est basse consommation et conforme à la RE2020, garantissant ainsi des performances énergétiques optimales et un confort de vie inégalé.
Ne manquez pas cette opportunité de construire la maison de vos rêves avec Babeau-Seguin, le constructeur qui allie qualité, prix et satisfaction client.
Référence : 92550
Les informations sur les risques auxquels ce bien est exposé sont disponibles sur le site Géorisques : www.georisques.gouv.fr
Avec une surface de 85 m², cette maison traditionnelle comprend 4 pièces, dont 3 chambres, et un garage intégré. Elle se décline en versions à 2 pans ou 4 pans, selon vos préférences. Parfaitement équipée, la Prunière est en effet la maison à petit prix par excellence.
En plus de son design attrayant, cette maison neuve est basse consommation et conforme à la RE2020, garantissant ainsi des performances énergétiques optimales et un confort de vie inégalé.
Ne manquez pas cette opportunité de construire la maison de vos rêves avec Babeau-Seguin, le constructeur qui allie qualité, prix et satisfaction client.
Référence : 92550
Les informations sur les risques auxquels ce bien est exposé sont disponibles sur le site Géorisques : www.georisques.gouv.fr
- Prix
-
- Prix total : 200 757 €
- Prix du modèle de maison : 156 857 €
- Prix du terrain : 43 900 €
- Terrain
-
- Surface : 1 600 m²
- Maison
-
- Surface : 85 m²
- Pièces : 4
- Chambres : 3
- Être rappelé par un conseiller
- Demander plus d’infos
- Demande d'information
Saint-Pantaléon-de-Larche (19600)
Maisons à proximité
Maison neuve, 100 m²
Saint-Pantaléon-de-Larche (19600)
Saint-Pantaléon-de-Larche (19600)
Maison de 4 pièces
Maison neuve, 92 m²
Saint-Pantaléon-de-Larche (19600)
Saint-Pantaléon-de-Larche (19600)
Maison de 4 pièces
Maison neuve, 65 m²
Saint-Pantaléon-de-Larche (19600)
Saint-Pantaléon-de-Larche (19600)
Maison de 3 pièces
Maison neuve, 59 m²
Saint-Pantaléon-de-Larche (19600)
Saint-Pantaléon-de-Larche (19600)
Maison de 2 pièces
Maison neuve, 79 m²
Saint-Pantaléon-de-Larche (19600)
Saint-Pantaléon-de-Larche (19600)
Maison de 4 pièces
Maison neuve, 88 m²
Saint-Pantaléon-de-Larche (19600)
Saint-Pantaléon-de-Larche (19600)
Maison de 4 pièces
Programmes à proximité
RÉSIDENCE PARENTH'EZE
Brive-la-Gaillarde (19100)
Brive-la-Gaillarde (19100)
Appartements de 2 pièces
Livraison 4ème trimestre 2026
Gen'Eze
Brive-la-Gaillarde (19100)
Brive-la-Gaillarde (19100)
Appartements de 2 à 4 pièces
Livraison 1er trimestre 2028
LE CLOS MERIDIEN
Brive-la-Gaillarde (19100)
Brive-la-Gaillarde (19100)
Appartements de 2 à 5 pièces
Livraison 2ème trimestre 2027
Contacter BABEAU SEGUIN AGENCE DE BRIVE LA GAILLARDE – CORRE pour recevoir plus d'informations
Remplissez le formulaire ci-dessous, vos informations sont transmises directement au constructeur qui vous contactera par email ou par téléphone afin de traiter votre demande. En savoir plus.
Voir tous nos programmes immobiliers neufs à Saint-Pantaléon-de-Larche