Maison neuve, 88 m² - Saint-Pantaléon-de-Larche (19600)
184 028 €
Saint-Pantaléon-de-Larche (19600)
Proposée par BABEAU SEGUIN AGENCE DE BRIVE LA GAILLARDE – CORRE – 4 pièces - 3 chambres - terrain 449 m²
|
|
| Babeau Seguin Agence de Brive la Gaillarde – Corre |
- Demande d'information
- Prendre rendez-vous
MAISON À CONSTRUIRE : ceci est une annonce d'une maison neuve à construire.
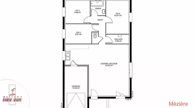
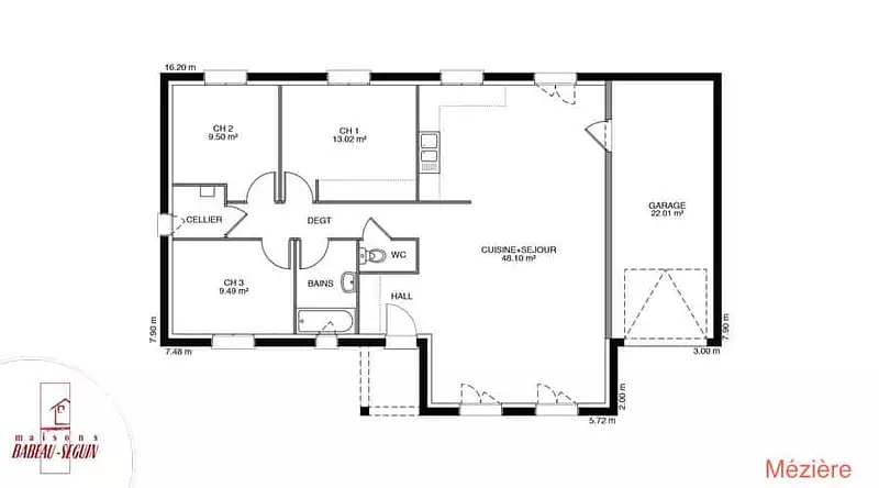
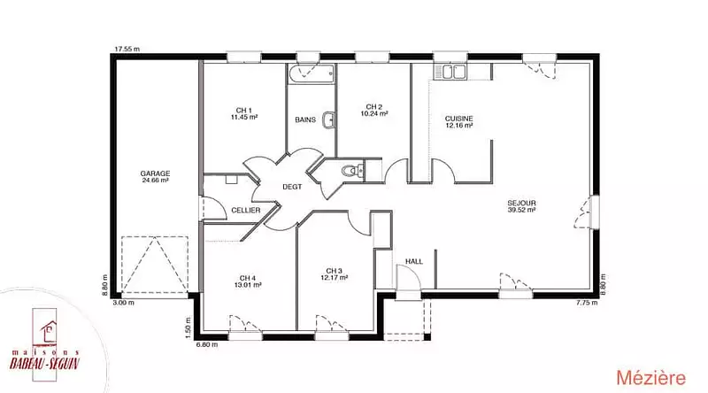
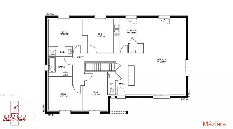
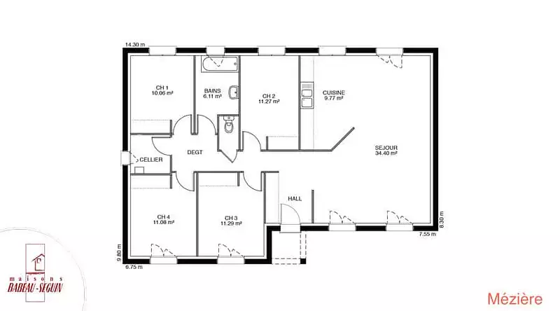
Sur ce terrain, nous vous proposons cette maison neuve, modèle Mézière, conçue par Babeau-Seguin, constructeur offrant le meilleur rapport qualité/prix du marché. Avec une surface de 88 m², cette maison de plain-pied saura répondre aux attentes de nombreuses familles grâce à ses 3 chambres et ses 4 pièces.
La Mézière se distingue par son plan en L, disponible en version 2 pans ou 4 pans, offrant ainsi une grande flexibilité pour s'adapter à vos besoins et à vos envies. Véritable maison sur mesure, elle séduit par ses nombreuses versions et options, permettant de créer un espace de vie unique et personnalisé.
Parmi les options les plus demandées par nos clients, vous trouverez les menuiseries en aluminium, la domotique pour une maison connectée, ainsi que la possibilité d'ajouter un garage ou un sous-sol. Ces options vous permettront de profiter pleinement de votre nouvelle maison, tout en bénéficiant des dernières innovations en matière de confort et de sécurité.
Cette maison neuve est également basse consommation et conforme à la réglementation environnementale RE2020, garantissant ainsi des performances énergétiques optimales et un impact réduit sur l'environnement. Vous pourrez ainsi réaliser des économies d'énergie tout en contribuant à la préservation de notre planète.
Véritable coup de cœur pour de nombreux clients Babeau-Seguin, la Mézière est une maison facilement modifiable, ce qui justifie pleinement son succès. Craquerez-vous aussi pour elle ? N'attendez plus pour découvrir cette maison d'exception et contactez-nous dès maintenant pour plus d'informations.
Référence : 90657
Les informations sur les risques auxquels ce bien est exposé sont disponibles sur le site Géorisques : www.georisques.gouv.fr
La Mézière se distingue par son plan en L, disponible en version 2 pans ou 4 pans, offrant ainsi une grande flexibilité pour s'adapter à vos besoins et à vos envies. Véritable maison sur mesure, elle séduit par ses nombreuses versions et options, permettant de créer un espace de vie unique et personnalisé.
Parmi les options les plus demandées par nos clients, vous trouverez les menuiseries en aluminium, la domotique pour une maison connectée, ainsi que la possibilité d'ajouter un garage ou un sous-sol. Ces options vous permettront de profiter pleinement de votre nouvelle maison, tout en bénéficiant des dernières innovations en matière de confort et de sécurité.
Cette maison neuve est également basse consommation et conforme à la réglementation environnementale RE2020, garantissant ainsi des performances énergétiques optimales et un impact réduit sur l'environnement. Vous pourrez ainsi réaliser des économies d'énergie tout en contribuant à la préservation de notre planète.
Véritable coup de cœur pour de nombreux clients Babeau-Seguin, la Mézière est une maison facilement modifiable, ce qui justifie pleinement son succès. Craquerez-vous aussi pour elle ? N'attendez plus pour découvrir cette maison d'exception et contactez-nous dès maintenant pour plus d'informations.
Référence : 90657
Les informations sur les risques auxquels ce bien est exposé sont disponibles sur le site Géorisques : www.georisques.gouv.fr
- Prix
-
- Prix total : 184 028 €
- Prix du modèle de maison : 147 028 €
- Prix du terrain : 37 000 €
- Terrain
-
- Surface : 449 m²
- Maison
-
- Surface : 88 m²
- Pièces : 4
- Chambres : 3
- Être rappelé par un conseiller
- Demander plus d’infos
- Demande d'information
Saint-Pantaléon-de-Larche (19600)
Maisons à proximité
Maison neuve, 100 m²
Saint-Pantaléon-de-Larche (19600)
Saint-Pantaléon-de-Larche (19600)
Maison de 5 pièces
Maison neuve, 85 m²
Saint-Pantaléon-de-Larche (19600)
Saint-Pantaléon-de-Larche (19600)
Maison de 4 pièces
Maison neuve, 100 m²
Saint-Pantaléon-de-Larche (19600)
Saint-Pantaléon-de-Larche (19600)
Maison de 4 pièces
Maison neuve, 92 m²
Saint-Pantaléon-de-Larche (19600)
Saint-Pantaléon-de-Larche (19600)
Maison de 4 pièces
Maison neuve, 65 m²
Saint-Pantaléon-de-Larche (19600)
Saint-Pantaléon-de-Larche (19600)
Maison de 3 pièces
Maison neuve, 59 m²
Saint-Pantaléon-de-Larche (19600)
Saint-Pantaléon-de-Larche (19600)
Maison de 2 pièces
Programmes à proximité
Gen'Eze
Brive-la-Gaillarde (19100)
Brive-la-Gaillarde (19100)
Appartements de 2 à 4 pièces
Livraison 1er trimestre 2028
LE CLOS MERIDIEN
Brive-la-Gaillarde (19100)
Brive-la-Gaillarde (19100)
Appartements de 2 à 5 pièces
Livraison 2ème trimestre 2027
RÉSIDENCE PARENTH'EZE
Brive-la-Gaillarde (19100)
Brive-la-Gaillarde (19100)
Appartements de 2 pièces
Livraison 4ème trimestre 2026
Contacter BABEAU SEGUIN AGENCE DE BRIVE LA GAILLARDE – CORRE pour recevoir plus d'informations
Remplissez le formulaire ci-dessous, vos informations sont transmises directement au constructeur qui vous contactera par email ou par téléphone afin de traiter votre demande. En savoir plus.
Voir tous nos programmes immobiliers neufs à Saint-Pantaléon-de-Larche