Maison neuve, 80 m² - Saint-Pantaléon-de-Larche (19600)
167 143 €
Saint-Pantaléon-de-Larche (19600)
Proposée par BABEAU SEGUIN AGENCE DE BRIVE LA GAILLARDE – CORRE – 4 pièces - 3 chambres - terrain 415 m²
|
|
| Babeau Seguin Agence de Brive la Gaillarde – Corre |
- Demande d'information
- Prendre rendez-vous
MAISON À CONSTRUIRE : ceci est une annonce d'une maison neuve à construire.
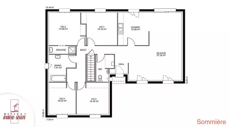
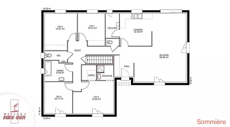
Sur ce terrain, nous vous proposons cette maison neuve, la Sommière, conçue par Babeau-Seguin, constructeur offrant le meilleur rapport qualité/prix du marché. Avec une surface de 80 m², cette maison moderne de plain-pied en L se distingue par son design élégant et ses nombreuses options de personnalisation.
La Sommière dispose de 3 chambres spacieuses et de 4 pièces bien agencées, offrant un cadre de vie confortable et fonctionnel. Vous avez la possibilité de choisir entre un toit à 2 pans ou à 4 pans, selon vos préférences esthétiques et architecturales. De plus, cette maison peut être équipée d'un garage ou d'un sous-sol en option, répondant ainsi à vos besoins spécifiques en termes de rangement et de stationnement.
Cette maison neuve est basse consommation et conforme à la réglementation environnementale RE2020, garantissant des performances énergétiques optimales et un impact réduit sur l'environnement. En choisissant la Sommière, vous optez pour une habitation éco-responsable et économique.
La Sommière est disponible en plus de 10 versions, allant d'une surface de 78 m² à 148 m², ce qui en fait la maison plain-pied la plus déclinée de toute notre gamme. Elle s’adapte parfaitement aux besoins et aux attentes de chacun, que vous soyez une famille en quête d'espace ou un couple recherchant un cadre de vie moderne et pratique.
Ne manquez pas cette opportunité unique de faire construire une maison sur mesure, parfaitement adaptée à vos envies et à votre mode de vie. Contactez-nous dès maintenant pour plus d'informations et pour découvrir toutes les possibilités offertes par le modèle Sommière.
Référence : 90661
Les informations sur les risques auxquels ce bien est exposé sont disponibles sur le site Géorisques : www.georisques.gouv.fr
La Sommière dispose de 3 chambres spacieuses et de 4 pièces bien agencées, offrant un cadre de vie confortable et fonctionnel. Vous avez la possibilité de choisir entre un toit à 2 pans ou à 4 pans, selon vos préférences esthétiques et architecturales. De plus, cette maison peut être équipée d'un garage ou d'un sous-sol en option, répondant ainsi à vos besoins spécifiques en termes de rangement et de stationnement.
Cette maison neuve est basse consommation et conforme à la réglementation environnementale RE2020, garantissant des performances énergétiques optimales et un impact réduit sur l'environnement. En choisissant la Sommière, vous optez pour une habitation éco-responsable et économique.
La Sommière est disponible en plus de 10 versions, allant d'une surface de 78 m² à 148 m², ce qui en fait la maison plain-pied la plus déclinée de toute notre gamme. Elle s’adapte parfaitement aux besoins et aux attentes de chacun, que vous soyez une famille en quête d'espace ou un couple recherchant un cadre de vie moderne et pratique.
Ne manquez pas cette opportunité unique de faire construire une maison sur mesure, parfaitement adaptée à vos envies et à votre mode de vie. Contactez-nous dès maintenant pour plus d'informations et pour découvrir toutes les possibilités offertes par le modèle Sommière.
Référence : 90661
Les informations sur les risques auxquels ce bien est exposé sont disponibles sur le site Géorisques : www.georisques.gouv.fr
- Prix
-
- Prix total : 167 143 €
- Prix du modèle de maison : 133 643 €
- Prix du terrain : 33 500 €
- Terrain
-
- Surface : 415 m²
- Maison
-
- Surface : 80 m²
- Pièces : 4
- Chambres : 3
- Être rappelé par un conseiller
- Demander plus d’infos
- Demande d'information
Saint-Pantaléon-de-Larche (19600)
Maisons à proximité
Maison neuve, 100 m²
Saint-Pantaléon-de-Larche (19600)
Saint-Pantaléon-de-Larche (19600)
Maison de 5 pièces
Maison neuve, 85 m²
Saint-Pantaléon-de-Larche (19600)
Saint-Pantaléon-de-Larche (19600)
Maison de 4 pièces
Maison neuve, 100 m²
Saint-Pantaléon-de-Larche (19600)
Saint-Pantaléon-de-Larche (19600)
Maison de 4 pièces
Maison neuve, 92 m²
Saint-Pantaléon-de-Larche (19600)
Saint-Pantaléon-de-Larche (19600)
Maison de 4 pièces
Maison neuve, 65 m²
Saint-Pantaléon-de-Larche (19600)
Saint-Pantaléon-de-Larche (19600)
Maison de 3 pièces
Maison neuve, 59 m²
Saint-Pantaléon-de-Larche (19600)
Saint-Pantaléon-de-Larche (19600)
Maison de 2 pièces
Programmes à proximité
Gen'Eze
Brive-la-Gaillarde (19100)
Brive-la-Gaillarde (19100)
Appartements de 2 à 4 pièces
Livraison 1er trimestre 2028
LE CLOS MERIDIEN
Brive-la-Gaillarde (19100)
Brive-la-Gaillarde (19100)
Appartements de 2 à 5 pièces
Livraison 2ème trimestre 2027
RÉSIDENCE PARENTH'EZE
Brive-la-Gaillarde (19100)
Brive-la-Gaillarde (19100)
Appartements de 2 pièces
Livraison 4ème trimestre 2026
Contacter BABEAU SEGUIN AGENCE DE BRIVE LA GAILLARDE – CORRE pour recevoir plus d'informations
Remplissez le formulaire ci-dessous, vos informations sont transmises directement au constructeur qui vous contactera par email ou par téléphone afin de traiter votre demande. En savoir plus.
Voir tous nos programmes immobiliers neufs à Saint-Pantaléon-de-Larche