Maison neuve, 89 m² - Saint-Pantaléon-de-Larche (19600)
181 632 €
Saint-Pantaléon-de-Larche (19600)
Proposée par BABEAU SEGUIN AGENCE DE BRIVE LA GAILLARDE – CORRE – 4 pièces - 3 chambres - terrain 505 m²
|
|
| Babeau Seguin Agence de Brive la Gaillarde – Corre |
- Demande d'information
- Prendre rendez-vous
MAISON À CONSTRUIRE : ceci est une annonce d'une maison neuve à construire.
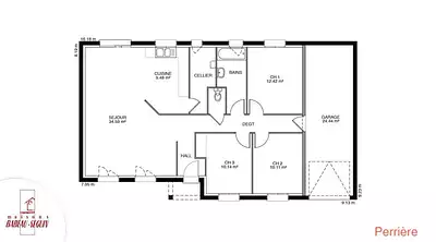
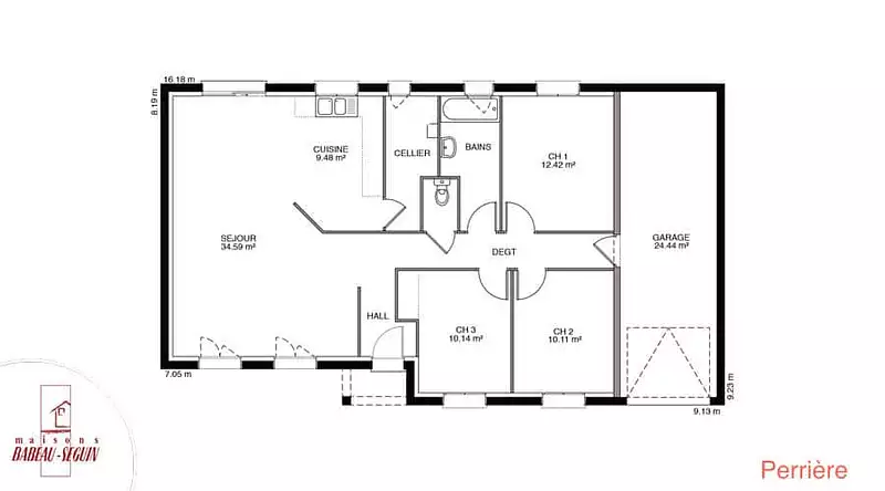
Sur ce terrain, nous vous proposons cette maison neuve Perrière de 89 m², conçue par Babeau-Seguin, le constructeur offrant le meilleur rapport qualité/prix du marché. Cette maison traditionnelle se distingue par une avancée de toit qui protège les portes-fenêtres de la façade avant ainsi que la porte d’entrée, ajoutant à la fois charme et fonctionnalité.
La Perrière dispose de 4 pièces, dont 3 chambres, ce qui en fait une maison familiale par excellence. Vous avez la possibilité de choisir entre une toiture à 2 pans ou à 4 pans, selon vos préférences esthétiques. De plus, ce modèle peut être agrémenté d’un garage ou d’un sous-sol, disponibles en option, pour répondre à vos besoins spécifiques.
Cette maison neuve est basse consommation et conforme à la RE2020, garantissant des performances énergétiques optimales et un respect des normes environnementales actuelles. Avec un très bon rapport qualité/prix et tout le savoir-faire de Babeau-Seguin, la Perrière est une maison à prix réduit sans pour autant être une maison low-cost.
Le plan de cette maison est personnalisable en fonction de votre mode de vie, vous permettant de créer un espace qui vous ressemble. Ne manquez pas cette opportunité de construire la maison de vos rêves sur ce terrain !
Référence : 90667
Les informations sur les risques auxquels ce bien est exposé sont disponibles sur le site Géorisques : www.georisques.gouv.fr
La Perrière dispose de 4 pièces, dont 3 chambres, ce qui en fait une maison familiale par excellence. Vous avez la possibilité de choisir entre une toiture à 2 pans ou à 4 pans, selon vos préférences esthétiques. De plus, ce modèle peut être agrémenté d’un garage ou d’un sous-sol, disponibles en option, pour répondre à vos besoins spécifiques.
Cette maison neuve est basse consommation et conforme à la RE2020, garantissant des performances énergétiques optimales et un respect des normes environnementales actuelles. Avec un très bon rapport qualité/prix et tout le savoir-faire de Babeau-Seguin, la Perrière est une maison à prix réduit sans pour autant être une maison low-cost.
Le plan de cette maison est personnalisable en fonction de votre mode de vie, vous permettant de créer un espace qui vous ressemble. Ne manquez pas cette opportunité de construire la maison de vos rêves sur ce terrain !
Référence : 90667
Les informations sur les risques auxquels ce bien est exposé sont disponibles sur le site Géorisques : www.georisques.gouv.fr
- Prix
-
- Prix total : 181 632 €
- Prix du modèle de maison : 142 632 €
- Prix du terrain : 39 000 €
- Terrain
-
- Surface : 505 m²
- Maison
-
- Surface : 89 m²
- Pièces : 4
- Chambres : 3
- Être rappelé par un conseiller
- Demander plus d’infos
- Demande d'information
Saint-Pantaléon-de-Larche (19600)
Maisons à proximité
Maison neuve, 100 m²
Saint-Pantaléon-de-Larche (19600)
Saint-Pantaléon-de-Larche (19600)
Maison de 5 pièces
Maison neuve, 85 m²
Saint-Pantaléon-de-Larche (19600)
Saint-Pantaléon-de-Larche (19600)
Maison de 4 pièces
Maison neuve, 100 m²
Saint-Pantaléon-de-Larche (19600)
Saint-Pantaléon-de-Larche (19600)
Maison de 4 pièces
Maison neuve, 92 m²
Saint-Pantaléon-de-Larche (19600)
Saint-Pantaléon-de-Larche (19600)
Maison de 4 pièces
Maison neuve, 65 m²
Saint-Pantaléon-de-Larche (19600)
Saint-Pantaléon-de-Larche (19600)
Maison de 3 pièces
Maison neuve, 59 m²
Saint-Pantaléon-de-Larche (19600)
Saint-Pantaléon-de-Larche (19600)
Maison de 2 pièces
Programmes à proximité
LE CLOS MERIDIEN
Brive-la-Gaillarde (19100)
Brive-la-Gaillarde (19100)
Appartements de 2 à 5 pièces
Livraison 2ème trimestre 2027
Gen'Eze
Brive-la-Gaillarde (19100)
Brive-la-Gaillarde (19100)
Appartements de 2 à 4 pièces
Livraison 1er trimestre 2028
RÉSIDENCE PARENTH'EZE
Brive-la-Gaillarde (19100)
Brive-la-Gaillarde (19100)
Appartements de 2 pièces
Livraison 4ème trimestre 2026
Contacter BABEAU SEGUIN AGENCE DE BRIVE LA GAILLARDE – CORRE pour recevoir plus d'informations
Remplissez le formulaire ci-dessous, vos informations sont transmises directement au constructeur qui vous contactera par email ou par téléphone afin de traiter votre demande. En savoir plus.
Voir tous nos programmes immobiliers neufs à Saint-Pantaléon-de-Larche