Maison neuve, 125 m² - Saint-Michel-Chef-Chef (44730)

626 841 €
Saint-Michel-Chef-Chef (44730)

Proposée par MAISONS PRIVAT AGENCE DE PORNIC (44) – 5 pièces - 4 chambres - terrain 875 m²

Maisons Privat Agence de Pornic (44)
Maisons Privat Agence de Pornic (44)
  • Demande d'information
MAISON À CONSTRUIRE : ceci est une annonce d'une maison neuve à construire.
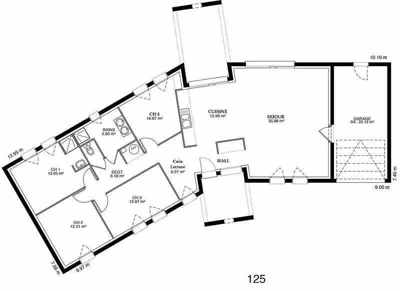
Sur ce terrain, nous vous proposons cette maison neuve : Vertium, une maison contemporaine qui peut voir très grand. Déclinable en quatre versions, sur des surfaces comprises entre 85 et 125 m², le modèle Vertium est une maison contemporaine de plain-pied qui offre une multitude de choix pour s’adapter aux différents modes de vie et compositions familiales.
Vertium, une magnifique demeure de style architecte.
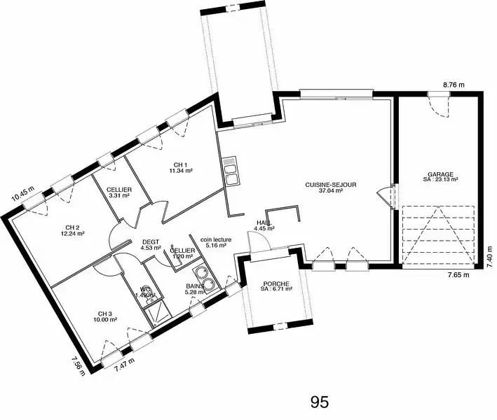
Bâtie en deux ailes, avec un porche de chaque côté, cette habitation évoque la forme du papillon avec son plan en V. Dans l’une des ailes se situent les chambres, au nombre de quatre, avec la salle d’eau, le tout autour d’un dégagement. Le vaste séjour-cuisine avec hall d’entrée occupe l’autre aile, avec le garage intégré à son extrémité.
Les options les plus demandées par nos clients, telles que la terrasse bétonnée, le plancher chauffant et les menuiseries en aluminium, sont disponibles pour personnaliser votre maison selon vos envies.
Cette maison neuve est basse consommation et conforme à la RE2020, garantissant une performance énergétique optimale et un confort de vie exceptionnel.
Le constructeur, Maisons Privat, est un constructeur centenaire avec les meilleurs avis clients de la région, vous assurant ainsi une qualité de construction irréprochable et un accompagnement personnalisé tout au long de votre projet.
Ne manquez pas cette opportunité unique de devenir propriétaire de la maison Vertium, une demeure moderne et élégante, parfaitement adaptée à vos besoins et à votre style de vie. Contactez-nous dès aujourd'hui pour plus d'informations et pour planifier une visite.
Référence : 56721

Les informations sur les risques auxquels ce bien est exposé sont disponibles sur le site Géorisques : www.georisques.gouv.fr


Prix
  • Prix total : 626 841 €
  • Prix du modèle de maison : 276 841 €
  • Prix du terrain : 350 000 €

Terrain
  • Surface : 875 m²

Maison
  • Surface : 125 m²
  • Pièces : 5
  • Chambres : 4

  • Être rappelé par un conseiller
  • Demander plus d’infos
  • Demande d'information
Saint-Michel-Chef-Chef (44730)

Programmes à proximité

IMPULSION
IMPULSION
Saint-Père-en-Retz (44320)

Appartements de 2 à 4 pièces
Livraison 4ème trimestre 2027

JADELIA
JADELIA
Saint-Michel-Chef-Chef (44730)

Appartements de 2 à 3 pièces
Livraison 4ème trimestre 2027

ALBATROS
ALBATROS
Saint-Brevin-les-Pins (44250)

Appartements de 2 à 3 pièces
Livraison 4ème trimestre 2027

La Pinède
La Pinède
Saint-Brevin-les-Pins (44250)

Appartements de 2 à 5 pièces
Livraison 1er trimestre 2027

VILLA MARIA
VILLA MARIA
Pornic (44210)

Appartements de 2 à 4 pièces
Livraison 4ème trimestre 2026

Les Allées de la Ria
Les Allées de la Ria
Pornic (44210)

Appartements de 2 à 4 pièces
Livraison 2ème trimestre 2027

Contacter MAISONS PRIVAT AGENCE DE PORNIC (44) pour recevoir plus d'informations

Remplissez le formulaire ci-dessous, vos informations sont transmises directement au constructeur qui vous contactera par email ou par téléphone afin de traiter votre demande. En savoir plus.

Voir tous nos programmes immobiliers neufs à Saint-Michel-Chef-Chef