Maison neuve, 165 m² - Saint-Maur-des-Fossés (94100)

980 000 €
Saint-Maur-des-Fossés (94100)

Proposée par BERVAL – 8 pièces - 6 chambres - terrain 253 m²

BERVAL
BERVAL
  • Demande d'information
MAISON À CONSTRUIRE : ceci est une annonce d'une maison neuve à construire.
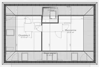
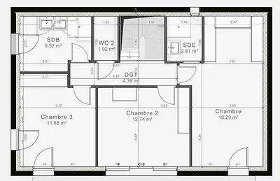
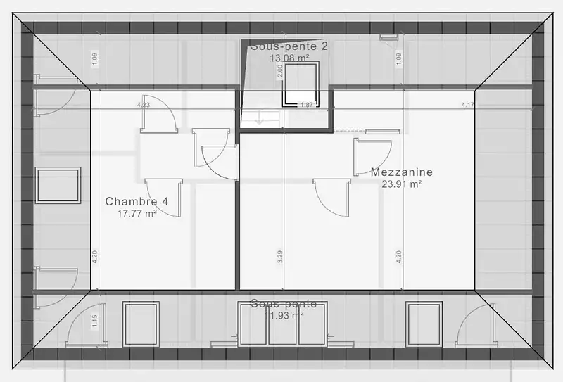
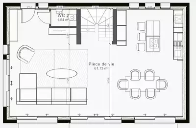
Projet de construction d'une surface de 165m2. Sous sol possible.
Situation:
10 minutes à pied de la gare RER Saint Maur Créteil et le Parc de Saint Maur.
5 minutes à pied des Bords de Marne.
Terrain d'une surface de 253m2.
Projet sur mesure dessiné en fonction de vos attentes.
Référence : CP2376823_1
Les annonces de terrains constructibles sont sélectionnées auprès de nos partenaires fonciers. Ces derniers sont soit des professionnels dûment habilités à la transaction immobilière, soit des particuliers. Terrains, selon disponibilité, pour la construction de maisons neuves, avec un contrat de construction de maison individuelle, dans le cadre de la loi du 19/12/1990. Les terrains sélectionnés sont disponibles à la date de la première parution de l’annonce. En aucun cas Maisons Berval ou ses collaborateurs ne sont propriétaires des terrains , ne jouent un rôle d’intermédiation ou de négociation sur la transaction et ne participent à la vente. Prix indiqués par nos partenaires fonciers.

Les informations sur les risques auxquels ce bien est exposé sont disponibles sur le site Géorisques : www.georisques.gouv.fr


Prix
  • Prix total : 980 000 €
  • Prix du modèle de maison : 500 000 €
  • Prix du terrain : 480 000 €

Terrain
  • Surface : 253 m²

Maison
  • Surface : 165 m²
  • Pièces : 8
  • Chambres : 6

  • Être rappelé par un conseiller
  • Demander plus d’infos
  • Demande d'information
Saint-Maur-des-Fossés (94100)

Programmes à proximité

Avenue Cavaignac
Avenue Cavaignac
Saint-Maur-des-Fossés (94100)

Appartements de 2 à 3 pièces
Livraison 4ème trimestre 2027

La Closerie
La Closerie
Saint-Maur-des-Fossés (94100)

Appartements de 1 à 3 pièces
Livraison 2ème trimestre 2027

87 Bellechasse
87 Bellechasse
La Varenne-Saint-Hilaire (94210)

Appartements de 1 à 5 pièces
Livraison 4ème trimestre 2027

Résidence 1906
Résidence 1906
Champigny-sur-Marne (94500)

Appartements de 1 à 4 pièces
Livraison 4ème trimestre 2027

Le Paris de L'Elégance
Le Paris de L'Elégance
Champigny-sur-Marne (94500)

Appartements de 1 à 5 pièces
Livraison 1er trimestre 2027

Duo Verde
Duo Verde
Champigny-sur-Marne (94500)

Appartements de 2 à 4 pièces
Livraison 4ème trimestre 2027

Contacter BERVAL pour recevoir plus d'informations

Remplissez le formulaire ci-dessous, vos informations sont transmises directement au constructeur qui vous contactera par email ou par téléphone afin de traiter votre demande. En savoir plus.

Voir tous nos programmes immobiliers neufs à Saint-Maur-des-Fossés