Maison neuve, 73 m² - Saint-Loup-Cammas (31140)

257 087 €
Saint-Loup-Cammas (31140)

Proposée par MAISONS FRANCE CONFORT – 4 pièces - 2 chambres - terrain 1 266 m²

MAISONS FRANCE CONFORT
MAISONS FRANCE CONFORT
(309 avis)
  • Demande d'information
MAISON À CONSTRUIRE : ceci est une annonce d'une maison neuve à construire.
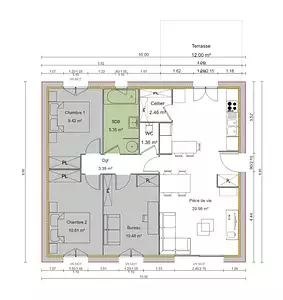
L'agence Maisons France Confort d'AUCAMVILLE vous présente ce nouveau projet terrain + maison à 2 minutes de PECHBONNIEU . ACTUA 73 est un modèle de maison traditionnelle économe et entièrement personnalisable. Elle se compose d'une entrée, un séjour/cuisine de 30m², un cellier, un WC et un espace nuit composé de 3 chambres et une salle de bains. Le garage de 15m² en option est accolé à la maison et accessible par la cuisine.
Au coeur de la campagne toulousaine, sur une parcelle constructible de 1266 m², vous profiterez des toutes les commodités à seulement 2 minutes. Vous pourrez accéder à Toulouse en 15 minutes.
.
PRIX : 257 087 € HF
Annonce proposée par un Agent Commercial Partenaire.
Référence : XF2334271_5
Terrain proposé par un partenaire foncier selon disponibilités et autorisation de publicité au prix de 130 000 €. Hors droit d'enregistrement et frais de notaire. Maison proposée, avec un contrat de construction de maison individuelle, dans le cadre de la loi du 19/12/1990, au prix de 127 087 € (Hors branchements et raccordements, papiers peints, peintures, revêtement de sol dans les chambres, qui sont chiffrés dans les travaux qui restent à charge du client. Tarif modifiable sans préavis). Étiquette énergie : A. Différents modèles disponibles pour ce terrain. Assurances et garanties du constructeur comprises (RC professionnelle, décennale, dommage ouvrage).

Les informations sur les risques auxquels ce bien est exposé sont disponibles sur le site Géorisques : www.georisques.gouv.fr


Prix
  • Prix total : 257 087 €
  • Prix du modèle de maison : 127 087 €
  • Prix du terrain : 130 000 €

Terrain
  • Surface : 1 266 m²

Maison
  • Surface : 73 m²
  • Pièces : 4
  • Chambres : 2

  • Être rappelé par un conseiller
  • Demander plus d’infos
  • Demande d'information
Saint-Loup-Cammas (31140)

Programmes à proximité

INTIMIST'
INTIMIST'
L'Union (31240)

Appartement de 5 pièces
Livraison 2ème trimestre 2024

Vents d'Union
Vents d'Union
L'Union (31240)

Appartement
Livraison 1er trimestre 2026

Horizon Malpagat
Horizon Malpagat
L'Union (31240)

Appartements de 2 à 4 pièces
Livraison 4ème trimestre 2027

CŒUR L'UNION
CŒUR L'UNION
L'Union (31240)

Appartements de 2 à 4 pièces
Livraison 4ème trimestre 2026

Quercia
Quercia
Castelginest (31780)

Appartements de 3 à 4 pièces
Livraison 2ème trimestre 2027

Le Patio de Charlary
Le Patio de Charlary
Rouffiac-Tolosan (31180)

Appartements de 2 à 3 pièces et maisons de 4 pièces
Livraison 4ème trimestre 2026

Contacter MAISONS FRANCE CONFORT pour recevoir plus d'informations

Remplissez le formulaire ci-dessous, vos informations sont transmises directement au constructeur qui vous contactera par email ou par téléphone afin de traiter votre demande. En savoir plus.

Voir tous nos programmes immobiliers neufs à Saint-Loup-Cammas