Maison neuve, 110 m² - Saint-Loup (03150)
241 008 €
Saint-Loup (03150)
Proposée par MAISON ET JARDIN – 4 pièces - 3 chambres - terrain 1 050 m²
|
|
| Maison et Jardin |
- Demande d'information
- Prendre rendez-vous
MAISON À CONSTRUIRE : ceci est une annonce d'une maison neuve à construire.
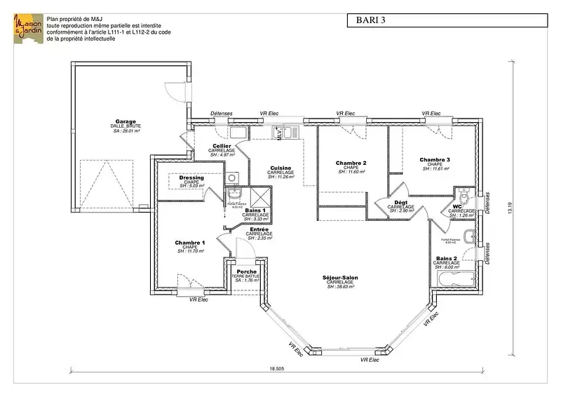
Nous vous proposons cette maison neuve, baptisée ""Bari"", un modèle de résidence qui allie confort, modernité et respect de l'environnement. Conçue pour répondre aux attentes des familles contemporaines, cette maison de 110 m² offre un cadre de vie idéal avec ses 3 chambres et ses 4 pièces soigneusement agencées pour maximiser l'espace et la luminosité.
La Bari se distingue par sa suite parentale spacieuse, offrant intimité et confort aux parents. Cette pièce est complétée par une deuxième salle de bains, garantissant ainsi une fonctionnalité optimale pour toute la famille. Le garage intégré ajoute une commodité supplémentaire, facilitant le quotidien et offrant un espace de rangement ou de stationnement sécurisé pour votre véhicule.
Parmi les options les plus plébiscitées par nos clients, la Bari intègre des caractéristiques de haute qualité qui répondent aux besoins de confort et d'efficacité énergétique. Cette maison est conçue pour être basse consommation, s'inscrivant parfaitement dans les exigences de la norme RE2020. Cela signifie que vous bénéficierez non seulement d'une réduction significative de vos factures énergétiques, mais aussi d'un impact environnemental minimisé, grâce à l'utilisation de matériaux et de technologies respectueuses de l'environnement.
La Bari est donc la promesse d'un foyer chaleureux, durable et économique, conçu pour s'adapter à l'évolution de votre famille tout en contribuant à la préservation de notre planète. Ne manquez pas l'opportunité de construire la maison de vos rêves, une maison qui répond à vos attentes d'aujourd'hui et anticipe celles de demain.
Référence : 13935
Les informations sur les risques auxquels ce bien est exposé sont disponibles sur le site Géorisques : www.georisques.gouv.fr
La Bari se distingue par sa suite parentale spacieuse, offrant intimité et confort aux parents. Cette pièce est complétée par une deuxième salle de bains, garantissant ainsi une fonctionnalité optimale pour toute la famille. Le garage intégré ajoute une commodité supplémentaire, facilitant le quotidien et offrant un espace de rangement ou de stationnement sécurisé pour votre véhicule.
Parmi les options les plus plébiscitées par nos clients, la Bari intègre des caractéristiques de haute qualité qui répondent aux besoins de confort et d'efficacité énergétique. Cette maison est conçue pour être basse consommation, s'inscrivant parfaitement dans les exigences de la norme RE2020. Cela signifie que vous bénéficierez non seulement d'une réduction significative de vos factures énergétiques, mais aussi d'un impact environnemental minimisé, grâce à l'utilisation de matériaux et de technologies respectueuses de l'environnement.
La Bari est donc la promesse d'un foyer chaleureux, durable et économique, conçu pour s'adapter à l'évolution de votre famille tout en contribuant à la préservation de notre planète. Ne manquez pas l'opportunité de construire la maison de vos rêves, une maison qui répond à vos attentes d'aujourd'hui et anticipe celles de demain.
Référence : 13935
Les informations sur les risques auxquels ce bien est exposé sont disponibles sur le site Géorisques : www.georisques.gouv.fr
- Prix
-
- Prix total : 241 008 €
- Prix du modèle de maison : 220 008 €
- Prix du terrain : 21 000 €
- Terrain
-
- Surface : 1 050 m²
- Maison
-
- Surface : 110 m²
- Pièces : 4
- Chambres : 3
- Être rappelé par un conseiller
- Demander plus d’infos
- Demande d'information
Saint-Loup (03150)
Maisons à proximité
Maison neuve, 88 m²
Saint-Loup (03150)
Saint-Loup (03150)
Maison de 4 pièces
Maison neuve, 97 m²
Varennes-sur-Allier (03150)
Varennes-sur-Allier (03150)
Maison de 5 pièces
Maison neuve, 80 m²
Varennes-sur-Allier (03150)
Varennes-sur-Allier (03150)
Maison de 4 pièces
Maison neuve, 84 m²
Paray-sous-Briailles (03500)
Paray-sous-Briailles (03500)
Maison de 4 pièces
Maison neuve, 120 m²
Paray-sous-Briailles (03500)
Paray-sous-Briailles (03500)
Maison de 5 pièces
Maison neuve, 105 m²
Saint-Pourçain-sur-Sioule (03500)
Saint-Pourçain-sur-Sioule (03500)
Maison de 5 pièces
Programmes à proximité
A 10min à pied du centre-ville de Vichy
Vichy (03200)
Vichy (03200)
Appartements de 2 à 4 pièces
Livraison 4ème trimestre 2027
Contacter MAISON ET JARDIN pour recevoir plus d'informations
Remplissez le formulaire ci-dessous, vos informations sont transmises directement au constructeur qui vous contactera par email ou par téléphone afin de traiter votre demande. En savoir plus.