Maison neuve, 88 m² - Saint-Jean-la-Bussière (69550)
235 000 €
Saint-Jean-la-Bussière (69550)
Proposée par MAISONS PUNCH VILLEFRANCHE – 4 pièces - 3 chambres - terrain 1 074 m²
|
|
| Maisons Punch Villefranche |
| (816 avis) |
- Demande d'information
- Prendre rendez-vous
MAISON À CONSTRUIRE : ceci est une annonce d'une maison neuve à construire.
Profitez du prêt à taux O% et de nos OFFRES "ANNIVERSAIRE 50 ANS" pour réaliser votre rêve !
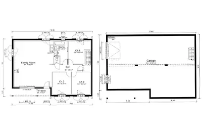
Devenez propriétaire de cette magnifique maison de 100 m² - 4 chambres - un garage en sous sol de 110 m² à Saint-Jean-la-Bussière !
DERNIER TERRAIN DISPONIBLE !
Au rez-de-chaussée, vous serez séduit par un sous sol complet de 110 m².
L'étage bénéficie d'une grande pièce de vie ouverte de 45 m², lumineuse grâce à sa grande baie vitrée. L’espace nuit comprend 4 chambres de 11 m², une salle de bain avec baignoire/douche au choix et un wc indépendant.
Ce que je vous propose :
-> Maisons sur-mesure, choisissez la disposition, les matériaux, les finitions…
-> Des prix compétitifs et un financement adapté à votre budget
-> Un accompagnement tout au long de votre projet (de l’achat du terrain à la remise des clés)
-> Une construction rapide dans le respect des délais
En ce moment profitez de notre offre anniversaire (valable jusqu'au 31/12/2025) :
10 M² OFFERT + UNE CUISINE TOUTE EQUIPEE + PLACARDS, PARQUETS DANS TOUTES LES CHAMBRES, PEINTURE ET FAÏENCE OFFERTS !
Pour plus de renseignements :
-> Contactez directement votre commerciale CAROLINE GUILLEMAUD ou répondez à cette annonce
Référence : 3148 SIQUET CAROLINE
Terrain proposé et vendu par notre partenaire foncier selon disponibilités, le constructeur n’étant pas mandaté pour réaliser la vente du terrain. Prix terrain inclus : 65 000 € Frais de notaire non inclus : € Prix maison inclus : 170 000 € VRD non inclus : € Hors aménagements extérieurs (extensions, terrasse, piscine etc), papiers peints, peintures, moquettes dans les chambres (tarif en vigueur au 20 mai 2025, modifiable sans préavis, prix variables suivant les prestations souhaitées). Hors frais d’hypothèque. Différents modèles disponibles pour chaque terrain. Assurance RC professionnelle/décennale/dommage ouvrage groupe Aviva. Garantie de remboursement de l'acompte/livraison à prix et délai convenu CGI.
Les informations sur les risques auxquels ce bien est exposé sont disponibles sur le site Géorisques : www.georisques.gouv.fr
Devenez propriétaire de cette magnifique maison de 100 m² - 4 chambres - un garage en sous sol de 110 m² à Saint-Jean-la-Bussière !
DERNIER TERRAIN DISPONIBLE !
Au rez-de-chaussée, vous serez séduit par un sous sol complet de 110 m².
L'étage bénéficie d'une grande pièce de vie ouverte de 45 m², lumineuse grâce à sa grande baie vitrée. L’espace nuit comprend 4 chambres de 11 m², une salle de bain avec baignoire/douche au choix et un wc indépendant.
Ce que je vous propose :
-> Maisons sur-mesure, choisissez la disposition, les matériaux, les finitions…
-> Des prix compétitifs et un financement adapté à votre budget
-> Un accompagnement tout au long de votre projet (de l’achat du terrain à la remise des clés)
-> Une construction rapide dans le respect des délais
En ce moment profitez de notre offre anniversaire (valable jusqu'au 31/12/2025) :
10 M² OFFERT + UNE CUISINE TOUTE EQUIPEE + PLACARDS, PARQUETS DANS TOUTES LES CHAMBRES, PEINTURE ET FAÏENCE OFFERTS !
Pour plus de renseignements :
-> Contactez directement votre commerciale CAROLINE GUILLEMAUD ou répondez à cette annonce
Référence : 3148 SIQUET CAROLINE
Terrain proposé et vendu par notre partenaire foncier selon disponibilités, le constructeur n’étant pas mandaté pour réaliser la vente du terrain. Prix terrain inclus : 65 000 € Frais de notaire non inclus : € Prix maison inclus : 170 000 € VRD non inclus : € Hors aménagements extérieurs (extensions, terrasse, piscine etc), papiers peints, peintures, moquettes dans les chambres (tarif en vigueur au 20 mai 2025, modifiable sans préavis, prix variables suivant les prestations souhaitées). Hors frais d’hypothèque. Différents modèles disponibles pour chaque terrain. Assurance RC professionnelle/décennale/dommage ouvrage groupe Aviva. Garantie de remboursement de l'acompte/livraison à prix et délai convenu CGI.
Les informations sur les risques auxquels ce bien est exposé sont disponibles sur le site Géorisques : www.georisques.gouv.fr
- Prix
-
- Prix total : 235 000 €
- Prix du modèle de maison : 170 000 €
- Prix du terrain : 65 000 €
- Terrain
-
- Surface : 1 074 m²
- Maison
-
- Surface : 88 m²
- Pièces : 4
- Chambres : 3
- Salle de bains : 1
- Garage : 1
- Surface garage : 98 m²
- Être rappelé par un conseiller
- Demander plus d’infos
- Demande d'information
Saint-Jean-la-Bussière (69550)
Maisons à proximité
Maison neuve, 100 m²
Saint-Jean-la-Bussière (69550)
Saint-Jean-la-Bussière (69550)
Maison de 5 pièces
Maison neuve, 80 m²
Saint-Jean-la-Bussière (69550)
Saint-Jean-la-Bussière (69550)
Maison de 4 pièces
Maison neuve, 94 m²
Saint-Jean-la-Bussière (69550)
Saint-Jean-la-Bussière (69550)
Maison de 4 pièces
Maison neuve, 94 m²
Amplepuis (69550)
Amplepuis (69550)
Maison de 4 pièces
Maison neuve, 80 m²
Amplepuis (69550)
Amplepuis (69550)
Maison de 4 pièces
Maison neuve, 80 m²
Amplepuis (69550)
Amplepuis (69550)
Maison de 4 pièces
Programmes à proximité
ECRIN PROVIDENCE
Tarare (69170)
Tarare (69170)
Appartements de 2 à 4 pièces
Livraison 1er trimestre 2028
Le 24 Carnot
Roanne (42300)
Roanne (42300)
Appartements de 2 à 4 pièces
Livraison 3ème trimestre 2026
Le Jardin Mirandole
Roanne (42300)
Roanne (42300)
Appartements de 2 à 4 pièces
Livraison 1er trimestre 2028
Contacter MAISONS PUNCH VILLEFRANCHE pour recevoir plus d'informations
Remplissez le formulaire ci-dessous, vos informations sont transmises directement au constructeur qui vous contactera par email ou par téléphone afin de traiter votre demande. En savoir plus.
Voir tous nos programmes immobiliers neufs à Saint-Jean-la-Bussière