Maison neuve, 79 m² - Saint-Jean-de-Monts (85160)

209 900 €
Saint-Jean-de-Monts (85160)

Proposée par LMP CONSTRUCTEUR – 2 pièces - 3 chambres - terrain 470 m²

LMP CONSTRUCTEUR
LMP CONSTRUCTEUR
  • Demande d'information
MAISON À CONSTRUIRE : ceci est une annonce d'une maison neuve à construire.
************* REALISEZ VOTRE PROJET A SEULEMENT 10 MINUTES DE LA MER ****************
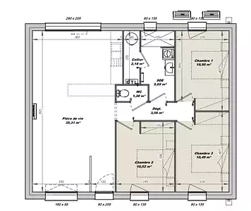
Saint-Jean-de-Monts : maison F2 (79 m²) à vendre
Idéalement située - Maison neuve 2 pièces en vente à Saint-Jean-de-Monts (85160) avec une surface de 79 m² et de 470 m² de terrain. Elle compte trois chambres, une cuisine et une salle de bains.
Proche établissements scolaires, commerces, boulangeries, supermarchés, bureau de poste et épicerie. Marché Place Yole hebdomadaire. Océan Atlantique à 793 m.
Cette maison de 2 pièces est à vendre pour la somme de 209 900 €.
. LMP Constructeur Saint-Gilles-Croix-de-Vie vous accompagne à toutes les étapes de l'achat et dans tous vos projets immobiliers.
************* REALISEZ VOTRE PROJET A SEULEMENT 10 MINUTES DE LA MER ****************
Référence : NR2247999_4
Terrain proposé par un partenaire foncier selon disponibilités et autorisation de publicité au prix de 75 600 €. Hors droit d'enregistrement et frais de notaire. Maison proposée, avec un contrat de construction de maison individuelle, dans le cadre de la loi du 19/12/1990, au prix de 134 300 € (Hors branchements et raccordements, papiers peints, peintures, revêtement de sol dans les chambres, qui sont chiffrés dans les travaux qui restent à charge du client. Tarif modifiable sans préavis). Étiquette énergie : A. Différents modèles disponibles pour ce terrain. Assurances et garanties du constructeur comprises (RC professionnelle, décennale, dommage ouvrage).

Les informations sur les risques auxquels ce bien est exposé sont disponibles sur le site Géorisques : www.georisques.gouv.fr


Prix
  • Prix total : 209 900 €
  • Prix du modèle de maison : 134 300 €
  • Prix du terrain : 75 600 €

Terrain
  • Surface : 470 m²

Maison
  • Surface : 79 m²
  • Pièces : 2
  • Chambres : 3

  • Être rappelé par un conseiller
  • Demander plus d’infos
  • Demande d'information
Saint-Jean-de-Monts (85160)

Programmes à proximité

Bleu Rivage
Bleu Rivage
Saint-Jean-de-Monts (85160)

Appartements de 1 à 4 pièces
Livraison 2ème trimestre 2028

La villa Saint-Jean
La villa Saint-Jean
Saint-Jean-de-Monts (85160)

Appartements de 2 à 4 pièces
Livraison 1er trimestre 2026

Villa Barena
Villa Barena
La Barre-de-Monts (85550)

Appartements de 2 à 3 pièces
Livraison 3ème trimestre 2028

Domaine des Aubrais - Apparts
Domaine des Aubrais - Apparts
Saint-Hilaire-de-Riez (85270)

Appartements de 2 à 3 pièces
Livraison 3ème trimestre 2027

LE NAUTILIA
LE NAUTILIA
Saint-Gilles-Croix-de-Vie (85800)

Appartements de 2 à 3 pièces
Livraison 1er trimestre 2027

Contacter LMP CONSTRUCTEUR pour recevoir plus d'informations

Remplissez le formulaire ci-dessous, vos informations sont transmises directement au constructeur qui vous contactera par email ou par téléphone afin de traiter votre demande. En savoir plus.

Voir tous nos programmes immobiliers neufs à Saint-Jean-de-Monts