Maison neuve, 85 m² - Saint-Donat-sur-l'Herbasse (26260)
273 411 €
Saint-Donat-sur-l'Herbasse (26260)
Proposée par MAISONS FRANCE CONFORT – 4 pièces - 3 chambres - terrain 651 m²
|
|
| MAISONS FRANCE CONFORT |
| (120 avis) |
- Demande d'information
- Prendre rendez-vous
MAISON À CONSTRUIRE : ceci est une annonce d'une maison neuve à construire.
Devenez propriétaire à MARGES (26260) - Maison 85 m² + Terrain - 273411 €
Maisons France Confort - vous propose, dans un nouveau lotissement, à proximité immédiate de , la construction d'une maison moderne de 85 m² parfaitement pensée pour les primo-accédants.
Atouts de votre projet :
Maison neuve, moderne et économe en énergie
Espaces fonctionnels et lumineux
Terrain idéalement situé, proche des écoles, commerces et services
Accession facilitée grâce au PTZ (Prêt à Taux Zéro)
Prix clé en main :273411 € (terrain + maison)
Contactez Amandine Maggioni, votre conseillère Maisons France Confort, et donnez vie à votre projet dès aujourd'hui au 06 26 23 28 93 .
Déjà plus de 100 000 familles nous ont fait confiance, pourquoi pas vous ?
Avec Maisons France Confort, vous bénéficiez de l'expérience du constructeur N°1 en France ainsi que de toutes les garanties du contrat CCMI pour construire en toute sérénité.
Référence : AM2354234_2
Terrain proposé par un partenaire foncier selon disponibilités et autorisation de publicité au prix de 89 500 €. Hors droit d'enregistrement et frais de notaire. Terrain + Maison proposés au prix de 183 911 € (Hors branchements et raccordements, papiers peints, peintures, revêtement de sol dans les chambres. Tarif modifiable sans préavis). Etiquette énergie : A. Différents modèles disponibles pour ce terrain. Assurances et garanties du constructeur (RC professionnelle, décennale, dommage ouvrage, garantie de remboursement de l'acompte, livraison à prix et délai convenu) : https://www.maisons-france-confort.fr/mentions-legales/. HEXAOM Services est enregistré auprès de l'ORIAS en tant que Courtier en financement, Niveau 1, sous le numéro 14001345.
Les informations sur les risques auxquels ce bien est exposé sont disponibles sur le site Géorisques : www.georisques.gouv.fr
Maisons France Confort - vous propose, dans un nouveau lotissement, à proximité immédiate de , la construction d'une maison moderne de 85 m² parfaitement pensée pour les primo-accédants.
Atouts de votre projet :
Maison neuve, moderne et économe en énergie
Espaces fonctionnels et lumineux
Terrain idéalement situé, proche des écoles, commerces et services
Accession facilitée grâce au PTZ (Prêt à Taux Zéro)
Prix clé en main :273411 € (terrain + maison)
Contactez Amandine Maggioni, votre conseillère Maisons France Confort, et donnez vie à votre projet dès aujourd'hui au 06 26 23 28 93 .
Déjà plus de 100 000 familles nous ont fait confiance, pourquoi pas vous ?
Avec Maisons France Confort, vous bénéficiez de l'expérience du constructeur N°1 en France ainsi que de toutes les garanties du contrat CCMI pour construire en toute sérénité.
Référence : AM2354234_2
Terrain proposé par un partenaire foncier selon disponibilités et autorisation de publicité au prix de 89 500 €. Hors droit d'enregistrement et frais de notaire. Terrain + Maison proposés au prix de 183 911 € (Hors branchements et raccordements, papiers peints, peintures, revêtement de sol dans les chambres. Tarif modifiable sans préavis). Etiquette énergie : A. Différents modèles disponibles pour ce terrain. Assurances et garanties du constructeur (RC professionnelle, décennale, dommage ouvrage, garantie de remboursement de l'acompte, livraison à prix et délai convenu) : https://www.maisons-france-confort.fr/mentions-legales/. HEXAOM Services est enregistré auprès de l'ORIAS en tant que Courtier en financement, Niveau 1, sous le numéro 14001345.
Les informations sur les risques auxquels ce bien est exposé sont disponibles sur le site Géorisques : www.georisques.gouv.fr
- Prix
-
- Prix total : 273 411 €
- Prix du modèle de maison : 183 911 €
- Prix du terrain : 89 500 €
- Terrain
-
- Surface : 651 m²
- Maison
-
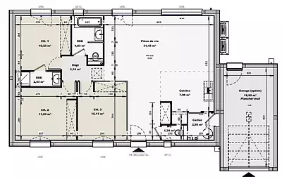
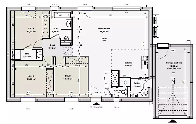
- Surface : 85 m²
- Pièces : 4
- Chambres : 3
- Garage : 1
- Être rappelé par un conseiller
- Demander plus d’infos
- Demande d'information
Saint-Donat-sur-l'Herbasse (26260)
Maisons à proximité
Maison neuve, 120 m²
Saint-Donat-sur-l'Herbasse (26260)
Saint-Donat-sur-l'Herbasse (26260)
Maison de 5 pièces
Maison neuve, 85 m²
Margès (26260)
Margès (26260)
Maison de 4 pièces
Maison neuve, 136 m²
Margès (26260)
Margès (26260)
Maison de 5 pièces
Maison neuve, 90 m²
Margès (26260)
Margès (26260)
Maison de 4 pièces
Maison neuve, 70 m²
Margès (26260)
Margès (26260)
Maison de 3 pièces
Maison neuve, 115 m²
Margès (26260)
Margès (26260)
Maison de 5 pièces
Programmes à proximité
Les Jardins du Cèdre
Valence (26000)
Valence (26000)
Appartements de 2 à 5 pièces
Livraison 3ème trimestre 2027
Contacter MAISONS FRANCE CONFORT pour recevoir plus d'informations
Remplissez le formulaire ci-dessous, vos informations sont transmises directement au constructeur qui vous contactera par email ou par téléphone afin de traiter votre demande. En savoir plus.
Voir tous nos programmes immobiliers neufs à Saint-Donat-sur-l'Herbasse