Maison neuve, 90 m² - Saint-Cyr-les-Vignes (42210)
265 000 €
Saint-Cyr-les-Vignes (42210)
Proposée par MAISONS PUNCH SAINT-ÉTIENNE – 4 pièces - 3 chambres - terrain 700 m²
|
|
| Maisons Punch Saint-Étienne |
| (71 avis) |
- Demande d'information
- Prendre rendez-vous
MAISON À CONSTRUIRE : ceci est une annonce d'une maison neuve à construire.
PROJET DE CONSTRUCTION – MAISON 90 M² AVEC SOUS-SOL COMPLET – SAINT-CYR-LES-VIGNES (42)
Sur la commune prisée de Saint-Cyr-les-Vignes (42210), Maisons Punch, constructeur de maisons individuelles reconnu dans la Loire, vous propose un projet de construction clé en main sur un terrain constructible de 700 m², situé dans un environnement calme et résidentiel.
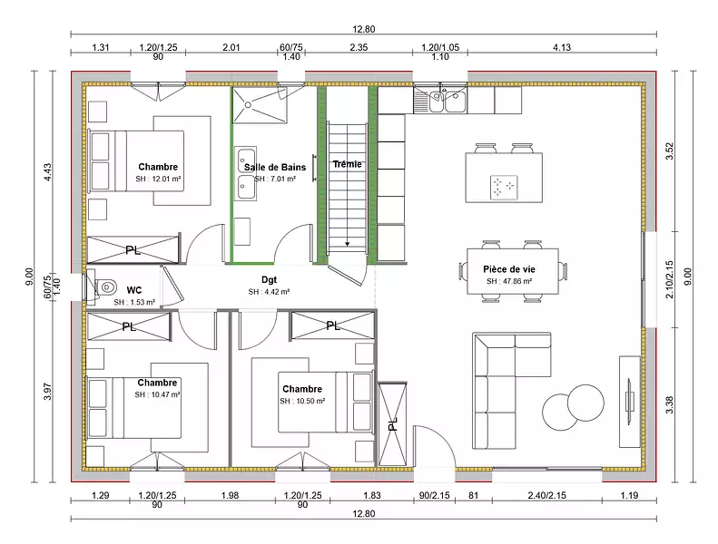
Ce projet propose une maison individuelle de 90 m² habitables, implantée sur un sous-sol complet de 100 m², offrant de nombreuses possibilités d’aménagement et de stockage.
Description du projet
Maison individuelle neuve
Surface habitable : 90 m²
3 chambres lumineuses
Belle pièce de vie avec cuisine ouverte
Salle de bains familiale
WC séparés
Sous-sol complet de 100 m² (garage, atelier, stockage ou espace aménageable)
Construction conforme à la réglementation environnementale RE 2020
Prestations et plans personnalisables selon votre projet de vie
Les atouts du projet
Maison neuve avec sous-sol complet, très recherchée dans le secteur
Grand terrain de 700 m²
Projet idéal pour une famille ou un premier achat
Maison fonctionnelle et économe en énergie
Environnement calme et cadre de vie agréable
Accompagnement global : étude de financement, conception des plans, permis de construire et suivi de chantier
Constructeur local reconnu : Maisons Punch
Localisation
Saint-Cyr-les-Vignes (42210)
Proximité de Montrond-les-Bains, Feurs et accès rapide aux grands axes
Commerces, écoles et services à proximité
Secteur résidentiel recherché dans la Loire
Contact
Pour plus d’informations et une étude personnalisée de votre projet de construction, contactez Maisons Punch – Nadia Galland 06.27.91.33.45
Projet maison + terrain rare à Saint-Cyr-les-Vignes.
Référence : 3162 GALLAND Nadia
Terrain proposé et vendu par notre partenaire foncier selon disponibilités, le constructeur n’étant pas mandaté pour réaliser la vente du terrain. Prix terrain inclus : 65 000 € Frais de notaire non inclus : € Prix maison inclus : 200 000 € VRD non inclus : € Hors aménagements extérieurs (extensions, terrasse, piscine etc), papiers peints, peintures, moquettes dans les chambres (tarif en vigueur au 20 mai 2025, modifiable sans préavis, prix variables suivant les prestations souhaitées). Hors frais d’hypothèque. Différents modèles disponibles pour chaque terrain. Assurance RC professionnelle/décennale/dommage ouvrage groupe Aviva. Garantie de remboursement de l'acompte/livraison à prix et délai convenu CGI. Partenaire financier : à préciser Le numéro de TVA intracommunautaire : FR 14 498 627 272 00012 Contact : contact@maisons-punch.fr
Les informations sur les risques auxquels ce bien est exposé sont disponibles sur le site Géorisques : www.georisques.gouv.fr
Sur la commune prisée de Saint-Cyr-les-Vignes (42210), Maisons Punch, constructeur de maisons individuelles reconnu dans la Loire, vous propose un projet de construction clé en main sur un terrain constructible de 700 m², situé dans un environnement calme et résidentiel.
Ce projet propose une maison individuelle de 90 m² habitables, implantée sur un sous-sol complet de 100 m², offrant de nombreuses possibilités d’aménagement et de stockage.
Description du projet
Maison individuelle neuve
Surface habitable : 90 m²
3 chambres lumineuses
Belle pièce de vie avec cuisine ouverte
Salle de bains familiale
WC séparés
Sous-sol complet de 100 m² (garage, atelier, stockage ou espace aménageable)
Construction conforme à la réglementation environnementale RE 2020
Prestations et plans personnalisables selon votre projet de vie
Les atouts du projet
Maison neuve avec sous-sol complet, très recherchée dans le secteur
Grand terrain de 700 m²
Projet idéal pour une famille ou un premier achat
Maison fonctionnelle et économe en énergie
Environnement calme et cadre de vie agréable
Accompagnement global : étude de financement, conception des plans, permis de construire et suivi de chantier
Constructeur local reconnu : Maisons Punch
Localisation
Saint-Cyr-les-Vignes (42210)
Proximité de Montrond-les-Bains, Feurs et accès rapide aux grands axes
Commerces, écoles et services à proximité
Secteur résidentiel recherché dans la Loire
Contact
Pour plus d’informations et une étude personnalisée de votre projet de construction, contactez Maisons Punch – Nadia Galland 06.27.91.33.45
Projet maison + terrain rare à Saint-Cyr-les-Vignes.
Référence : 3162 GALLAND Nadia
Terrain proposé et vendu par notre partenaire foncier selon disponibilités, le constructeur n’étant pas mandaté pour réaliser la vente du terrain. Prix terrain inclus : 65 000 € Frais de notaire non inclus : € Prix maison inclus : 200 000 € VRD non inclus : € Hors aménagements extérieurs (extensions, terrasse, piscine etc), papiers peints, peintures, moquettes dans les chambres (tarif en vigueur au 20 mai 2025, modifiable sans préavis, prix variables suivant les prestations souhaitées). Hors frais d’hypothèque. Différents modèles disponibles pour chaque terrain. Assurance RC professionnelle/décennale/dommage ouvrage groupe Aviva. Garantie de remboursement de l'acompte/livraison à prix et délai convenu CGI. Partenaire financier : à préciser Le numéro de TVA intracommunautaire : FR 14 498 627 272 00012 Contact : contact@maisons-punch.fr
Les informations sur les risques auxquels ce bien est exposé sont disponibles sur le site Géorisques : www.georisques.gouv.fr
- Prix
-
- Prix total : 265 000 €
- Prix du modèle de maison : 200 000 €
- Prix du terrain : 65 000 €
- Terrain
-
- Surface : 700 m²
- Maison
-
- Surface : 90 m²
- Pièces : 4
- Chambres : 3
- Salle de bains : 1
- Garage : 1
- Surface garage : 100 m²
- Être rappelé par un conseiller
- Demander plus d’infos
- Demande d'information
Saint-Cyr-les-Vignes (42210)
Maisons à proximité
Maison neuve, 94 m²
Saint-Cyr-les-Vignes (42210)
Saint-Cyr-les-Vignes (42210)
Maison de 4 pièces
Maison neuve, 90 m²
Saint-Cyr-les-Vignes (42210)
Saint-Cyr-les-Vignes (42210)
Maison de 4 pièces
Maison neuve, 94 m²
Saint-Cyr-les-Vignes (42210)
Saint-Cyr-les-Vignes (42210)
Maison de 4 pièces
Maison neuve, 98 m²
Saint-Cyr-les-Vignes (42210)
Saint-Cyr-les-Vignes (42210)
Maison de 5 pièces
Maison neuve, 98 m²
Saint-Cyr-les-Vignes (42210)
Saint-Cyr-les-Vignes (42210)
Maison de 5 pièces
Maison neuve, 94 m²
Saint-Cyr-les-Vignes (42210)
Saint-Cyr-les-Vignes (42210)
Maison de 4 pièces
Programmes à proximité
FLOREA
Sainte-Foy-l'Argentière (69610)
Sainte-Foy-l'Argentière (69610)
Appartements de 2 à 4 pièces
Livraison 1er trimestre 2026
LES HIRONDELLES
Andrézieux-Bouthéon (42160)
Andrézieux-Bouthéon (42160)
Appartements de 2 à 5 pièces
Livraison 4ème trimestre 2027
L'OREE DU PARC
Villars (42390)
Villars (42390)
Appartements de 2 à 4 pièces
Livraison 4ème trimestre 2026
Les Terrasses d'Elynn
La Talaudière (42350)
La Talaudière (42350)
Appartements de 3 à 4 pièces et maison de 4 pièces
Livraison 4ème trimestre 2027
Contacter MAISONS PUNCH SAINT-ÉTIENNE pour recevoir plus d'informations
Remplissez le formulaire ci-dessous, vos informations sont transmises directement au constructeur qui vous contactera par email ou par téléphone afin de traiter votre demande. En savoir plus.
Voir tous nos programmes immobiliers neufs à Saint-Cyr-les-Vignes