Maison neuve, 84 m² - Rouans (44640)

360 000 €
Rouans (44640)

Proposée par MAISONS TRADILIGNES – 4 pièces - 3 chambres - terrain 3 128 m²

MAISONS TRADILIGNES
MAISONS TRADILIGNES
  • Demande d'information
MAISON À CONSTRUIRE : ceci est une annonce d'une maison neuve à construire.
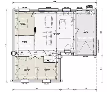
Maison F4 (84 m²) en vente à Rouans
PROCHE DE NANTES - MAISON 4 PIÈCES NEUVE
En vente proche du littoral atlantique et à 22 km de Nantes, découvrez cette maison de 4 pièces de plain-pied de 84 m² et de 3 128 m² de terrain à Rouans (44640).
Elle compte trois chambres, une cuisine et une salle de bains. Cette maison est neuve.
L'École Primaire Privée Saint Martin et l'École Primaire Publique Jules Verne sont implantées à moins de 10 minutes, tout comme une crèche. Niveau transports en commun, il y a les gares Saint-Hilaire-de-Chaléons et Sainte-Pazanne à moins de 10 minutes en voiture. L'autoroute A82 et les nationales N165, N444 et N844 sont accessibles à moins de 19 km. On trouve un tennis, un commerce, une boulangerie, un bureau de poste et une épicerie à proximité.
Son prix de vente est de 360 000 €.
Contactez Vincent COUCHAUX (tél : 06-74-86-07-98) pour toute information sur la maison. Faites de vos projets immobiliers une réalité avec Maisons Tradilignes Pornic.
Référence : VC2306561_1
Terrain proposé par un partenaire foncier selon disponibilités et autorisation de publicité au prix de 192 875 €. Hors droit d'enregistrement et frais de notaire. Terrain + Maison proposés au prix de 167 125 € (Hors branchements et raccordements, papiers peints, peintures, revêtement de sol dans les chambres. Tarif modifiable sans préavis). Etiquette énergie : A. Différents modèles disponibles pour ce terrain. Assurances et garanties du constructeur (RC professionnelle, décennale, dommage ouvrage, garantie de remboursement de l'acompte, livraison à prix et délai convenu) : https://www.tradilignes.fr/mentions-legales/.

Les informations sur les risques auxquels ce bien est exposé sont disponibles sur le site Géorisques : www.georisques.gouv.fr


Prix
  • Prix total : 360 000 €
  • Prix du modèle de maison : 167 125 €
  • Prix du terrain : 192 875 €

Terrain
  • Surface : 3 128 m²

Maison
  • Surface : 84 m²
  • Pièces : 4
  • Chambres : 3
  • Garage : 1

  • Être rappelé par un conseiller
  • Demander plus d’infos
  • Demande d'information
Rouans (44640)

Programmes à proximité

Le Clos des Asphodèles
Le Clos des Asphodèles
Le Pellerin (44640)

Appartement de 2 pièces
Livraison 4ème trimestre 2026

IMPULSION
IMPULSION
Saint-Père-en-Retz (44320)

Appartements de 2 à 4 pièces
Livraison 4ème trimestre 2027

Les Terrasses des Floralies
Les Terrasses des Floralies
Saint-Herblain (44800)

Appartements de 1 à 5 pièces
Livraison 4ème trimestre 2026

Cîméa
Cîméa
Saint-Herblain (44800)

Appartements de 1 à 4 pièces
Livraison 4ème trimestre 2027

AUTOGREEN
AUTOGREEN
Saint-Herblain (44800)

Appartements de 4 à 5 pièces
Livraison 3ème trimestre 2027

LAND ART
LAND ART
Saint-Herblain (44800)

Appartements de 2 à 4 pièces
Livraison 4ème trimestre 2027

Contacter MAISONS TRADILIGNES pour recevoir plus d'informations

Remplissez le formulaire ci-dessous, vos informations sont transmises directement au constructeur qui vous contactera par email ou par téléphone afin de traiter votre demande. En savoir plus.

Voir tous nos programmes immobiliers neufs à Rouans