Maison neuve, 70 m² - Ploumoguer (29810)
233 000 €
Ploumoguer (29810)
Proposée par MAISONS DE L'AVENIR – 3 pièces - 2 chambres - terrain 400 m²
|
|
| MAISONS DE L'AVENIR |
| (63 avis) |
- Demande d'information
- Prendre rendez-vous
MAISON À CONSTRUIRE : ceci est une annonce d'une maison neuve à construire.
Ploumoguer : maison de 3 pièces (70 m²) en vente
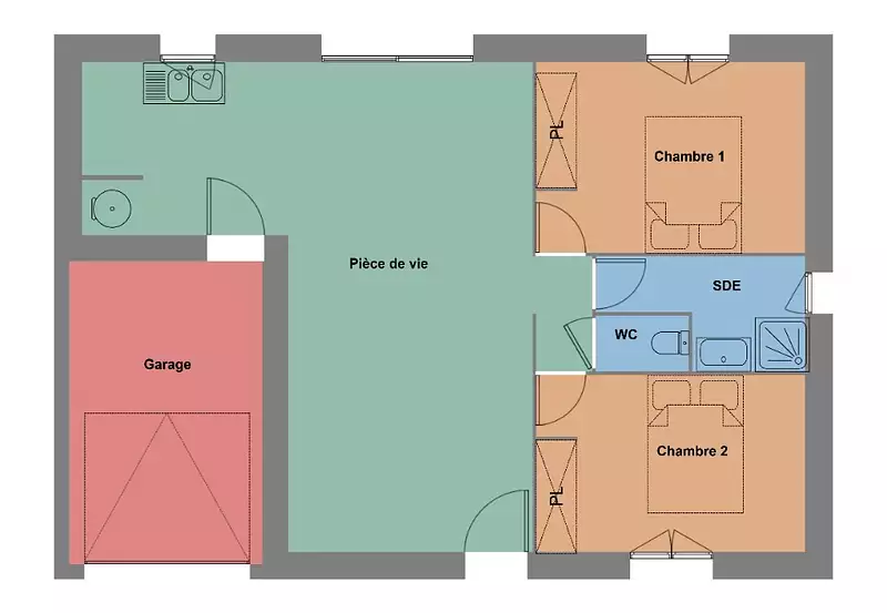
En centre-ville - À découvrir à Ploumoguer (29810) : maison idéal investisseurs 3 pièces en vente, 70 m² de surface et 400 m² de terrain. Elle dispose de deux chambres, d'une cuisine et d'une salle de bains.
À proximité : écoles, tennis, bibliothèque, boulangerie et supérette.Brest à 15 km.
Le prix de vente de cette maison de 3 pièces est de 233 000 €.
. Maisons de l'Avenir Guipavas est là pour vous accompagner dans tous vos projets immobiliers.
Référence : JR2329648_4
Maisons de l’Avenir, constructeur de maisons individuelles, propose en collaboration avec ses partenaires fonciers, une sélection de terrains constructibles, selon disponibilité, pour la construction de maisons neuves définies par le constructeur, avec un contrat de construction de maison individuelle, dans le cadre de la loi du 19/12/1990. Prix net, hors frais notariés, d'enregistrement et de publicité foncière
Terrain proposé au prix de : 56 000 €
Maison proposée au prix de : 177 000 €
Etiquette énergie : A. Assurances et garanties du constructeur (RC professionnelle, décennale, dommage ouvrage, Garantie de livraison à prix et délai convenu).
Les informations sur les risques auxquels ce bien est exposé sont disponibles sur le site Géorisques : www.georisques.gouv.fr
En centre-ville - À découvrir à Ploumoguer (29810) : maison idéal investisseurs 3 pièces en vente, 70 m² de surface et 400 m² de terrain. Elle dispose de deux chambres, d'une cuisine et d'une salle de bains.
À proximité : écoles, tennis, bibliothèque, boulangerie et supérette.Brest à 15 km.
Le prix de vente de cette maison de 3 pièces est de 233 000 €.
. Maisons de l'Avenir Guipavas est là pour vous accompagner dans tous vos projets immobiliers.
Référence : JR2329648_4
Maisons de l’Avenir, constructeur de maisons individuelles, propose en collaboration avec ses partenaires fonciers, une sélection de terrains constructibles, selon disponibilité, pour la construction de maisons neuves définies par le constructeur, avec un contrat de construction de maison individuelle, dans le cadre de la loi du 19/12/1990. Prix net, hors frais notariés, d'enregistrement et de publicité foncière
Terrain proposé au prix de : 56 000 €
Maison proposée au prix de : 177 000 €
Etiquette énergie : A. Assurances et garanties du constructeur (RC professionnelle, décennale, dommage ouvrage, Garantie de livraison à prix et délai convenu).
Les informations sur les risques auxquels ce bien est exposé sont disponibles sur le site Géorisques : www.georisques.gouv.fr
- Prix
-
- Prix total : 233 000 €
- Prix du modèle de maison : 177 000 €
- Prix du terrain : 56 000 €
- Terrain
-
- Surface : 400 m²
- Maison
-
- Surface : 70 m²
- Pièces : 3
- Chambres : 2
- Garage : 1
- Être rappelé par un conseiller
- Demander plus d’infos
- Demande d'information
Ploumoguer (29810)
Maisons à proximité
Maison neuve, 120 m²
Ploumoguer (29810)
Ploumoguer (29810)
Maison de 4 pièces
Maison neuve, 70 m²
Ploumoguer (29810)
Ploumoguer (29810)
Maison de 4 pièces
Maison neuve, 139 m²
Ploumoguer (29810)
Ploumoguer (29810)
Maison de 5 pièces
Maison neuve, 85 m²
Ploumoguer (29810)
Ploumoguer (29810)
Maison de 4 pièces
Maison neuve, 100 m²
Ploumoguer (29810)
Ploumoguer (29810)
Maison de 5 pièces
Maison neuve, 95 m²
Ploumoguer (29810)
Ploumoguer (29810)
Maison de 4 pièces
Programmes à proximité
LES HAUTS DU BOIS - BAT B
Saint-Renan (29290)
Saint-Renan (29290)
Appartements de 2 à 3 pièces
Livraison 2ème trimestre 2028
LES HAUTS DU BOIS
Saint-Renan (29290)
Saint-Renan (29290)
Appartements de 2 à 3 pièces
Livraison 1er trimestre 2028
DOMAINE DE LA SOURCE
Brest (29200)
Brest (29200)
Appartements de 2 à 4 pièces et maisons de 4 pièces
Livraison 4ème trimestre 2027
IROISE
Brest (29200)
Brest (29200)
Appartements de 2 à 4 pièces
Les Allées de la plage
Brest (29200)
Brest (29200)
Appartements de 3 à 4 pièces
LE SECRET
Brest (29200)
Brest (29200)
Appartements de 2 à 4 pièces
Livraison 4ème trimestre 2025
Contacter MAISONS DE L'AVENIR pour recevoir plus d'informations
Remplissez le formulaire ci-dessous, vos informations sont transmises directement au constructeur qui vous contactera par email ou par téléphone afin de traiter votre demande. En savoir plus.