Maison neuve, 95 m² - Plouguerneau (29880)

297 831 €
Plouguerneau (29880)

Proposée par MAISONS DE L'AVENIR – 5 pièces - 4 chambres - terrain 505 m²

MAISONS DE L'AVENIR
MAISONS DE L'AVENIR
(63 avis)
  • Demande d'information
MAISON À CONSTRUIRE : ceci est une annonce d'une maison neuve à construire.
Plouguerneau : maison de 5 pièces (95 m²) à vendre
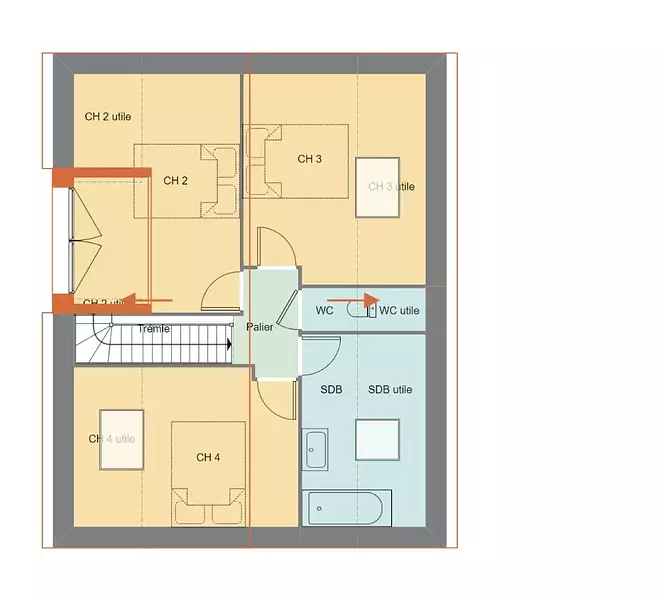
En centre-ville - À vendre à Plouguerneau (29880) : maison neuve 5 pièces de 95 m² et de 505 m² de terrain. Elle inclut quatre chambres, une cuisine et deux salles de bains.
Proche écoles, tennis, boulangeries, commerces, supermarchés, supérette et bureau de poste. Marché Place de l'Europe le jeudi matin. Nationale N12 à 20 km. Brest à 22 km.
Cette maison de 5 pièces est à vendre pour la somme de 297 831 €.
Prenez contact avec notre agence (ALKIS Sami) pour toute question sur la maison, sur les démarches à suivre ou sur les modalités de vente. Maisons de l'Avenir Guipavas vous accompagne dans tous vos projets immobiliers et à toutes les étapes de votre projet.
Référence : SA2337703_1
Maisons de l’Avenir, constructeur de maisons individuelles, propose en collaboration avec ses partenaires fonciers, une sélection de terrains constructibles, selon disponibilité, pour la construction de maisons neuves définies par le constructeur, avec un contrat de construction de maison individuelle, dans le cadre de la loi du 19/12/1990. Prix net, hors frais notariés, d'enregistrement et de publicité foncière
Terrain proposé au prix de : 59 000 €
Maison proposée au prix de : 238 831 €
Etiquette énergie : A. Assurances et garanties du constructeur (RC professionnelle, décennale, dommage ouvrage, Garantie de livraison à prix et délai convenu).


Les informations sur les risques auxquels ce bien est exposé sont disponibles sur le site Géorisques : www.georisques.gouv.fr


Prix
  • Prix total : 297 831 €
  • Prix du modèle de maison : 238 831 €
  • Prix du terrain : 59 000 €

Terrain
  • Surface : 505 m²

Maison
  • Surface : 95 m²
  • Pièces : 5
  • Chambres : 4
  • Garage : 1

  • Être rappelé par un conseiller
  • Demander plus d’infos
  • Demande d'information
Plouguerneau (29880)

Programmes à proximité

KOYA 3
KOYA 3
Guipavas (29490)

Appartements de 2 pièces
Livraison 2ème trimestre 2028

KOYA 2
KOYA 2
Guipavas (29490)

Appartements de 3 à 4 pièces
Livraison 1er trimestre 2027

LES HAUTS DU BOIS - BAT B
LES HAUTS DU BOIS - BAT B
Saint-Renan (29290)

Appartements de 2 à 3 pièces
Livraison 2ème trimestre 2028

LES HAUTS DU BOIS
LES HAUTS DU BOIS
Saint-Renan (29290)

Appartements de 2 à 3 pièces
Livraison 1er trimestre 2028

DOMAINE DE LA SOURCE
DOMAINE DE LA SOURCE
Brest (29200)

Appartements de 2 à 4 pièces et maisons de 4 pièces
Livraison 4ème trimestre 2027

LE SECRET
LE SECRET
Brest (29200)

Appartements de 2 à 4 pièces
Livraison 4ème trimestre 2025

Contacter MAISONS DE L'AVENIR pour recevoir plus d'informations

Remplissez le formulaire ci-dessous, vos informations sont transmises directement au constructeur qui vous contactera par email ou par téléphone afin de traiter votre demande. En savoir plus.

Voir tous nos programmes immobiliers neufs à Plouguerneau